Leben mit Aussicht

Villa im Bauhaus-Stil nutzt perfekt das abschüssige Gelände

_DSC2283_43_700pixel

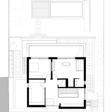
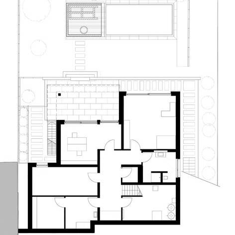
Nach langer Suche hatten die Bauherren von Guckes & Partner Architekten ihr Traumgrundstück gefunden – mit herrlicher Aussicht. Die Architekten mussten allerdings einen Höhenunterschied von circa acht Metern zwischen Straße und unterer Grundstückgrenze in die Planungen einbeziehen. Daher sieht man der Villa von der Straße her ihre wahre Größe nicht an: Präsentiert sich die eher geschlossene Fassade aus weißem Putz und Travertin hier wie ein zweigeschossiger Bau, strecken sich von der Gartenseite aus drei Geschosse mit großen Glasfenstern und großzügigen Außenbereichen in die Höhe. So erfüllt sich ein Wunsch der Bauherren. Diese lieben japanisch anmutende Gärten und wollten die herrliche Aussicht in ihr Domizil integrieren. Möglichst viele Räume sollten Blicke auf die Stadt und den Garten mit Teich ermöglichen. Die warmen Erdtöne der Fensterrahmen der hellen Villa im Bauhaus-Stil harmonieren dabei gelungen mit dem Travertin an den Fassaden ebenso wie mit dem Naturstein der Außenanlagen (Muschelkalk). Der Farbton wiederholt sich auch am Dachrandprofil, dem Garagentor und bei den Schlosserarbeiten. Während der Bauarbeiten erschwerte übrigens die abschüssige Lage den Zugang zum Grundstück, da die Baustelle nur von oben zu erreichen war. Das erforderte eine Umplanung der typischen Arbeitsabläufe. Im Inneren lädt der Eingangsbereich Ankommende zur Kommunikation und zum Sitzen ein. Die sich anschließenden großzügigen und offenen Raumstrukturen wirken durch Einbauschränke und dezente Beleuchung klar und minimalistisch. Der große Küchen- und Essbereich profitiert ebenso vom Blick auf die Stadt wie das Masterbad, das auch als Wellnessbereich dient. Der „Elternbereich“ mit Bad und Sauna ist im Obergeschoss angesiedelt, während sich der „Kinderbereich“ im Untergeschoss befindet. Aufgrund der Hanglage haben auch hier die Wohn- und Aufenthaltsräume große bodentiefe Schiebeelemente und gewährleisten neben dem Ausblick einen ebenerdigen Ausgang in den Garten. Lediglich die Nebenräume im Untergeschoss „verschwinden“ aufgrund der Hanglage in der Erde. Die Räume im unteren Geschoss wurden so konzipiert, dass sie bei veränderten Lebensumständen auch als separate Wohneinheit genutzt werden können.

Eine wie freischwebend wirkende Treppe verbindet Erd- und Obergeschoss und ermöglicht eine Kommunikation zwischen beiden Etagen. Große, beleuchtete Spiegel vergrößern einige Räume optisch, Occhio-Leuchten im Esszimmer oder eine Terzani-Leuchte im Eingangs- und Treppenbereich sind Blickfänger. Die Architekt:innen, die mit den Bauherren bereits früher zusammengearbeitet hatten, haben die Gesamtplanung inklusive der Gartenanlagen übernommen und das als Smart Home konzipierte Haus in vielerlei Hinsicht für die Zukunft ausgelegt: Der Fußboden wird über eine Luftwasserwärmepumpe beheizt, die im Sommer zur Temperierung genutzt werden kann, und eine PV-Anlage dient der Eigenstromnutzung (Heizung, Teichtechnik, E-Auto). Zudem kann zu einem späteren Zeitpunkt auch ein Aufzug eingebaut werden, denn der dafür nötige Schacht wurde bereits gebaut und wird aktuell als Abstellraum im jeweiligen Geschoss genutzt. Kein Wunder also, dass sich die Bauherren freuen: „Unsere Villa ist perfekt!“

www.guckes-partner.de

Wohnfläche: 306 m²
Grundstücksgröße: 718 m²
Bauzeit: 2021–2022
Bauweise: Massivbauweise
Energiekonzept: KfW 40 plus

Fotos:

Birgit Kallerhoff
www.fotokallerhoff.de

(Erschienen in CUBE Frankfurt 01|23)

Architektur:

Guckes & Partner Architekten
www.guckes-partner.de

Außenanlagen:

Gramenz
www.gramenz-galabau.de
Traco
www.traco.de

Elektro:

Elektro Olivares
www.fuersieunterstrom.de

Fenster, Haustür, Sonnenschutz:

SW Metallbau
www.sw-metallbau.de
Schüco
www.schueco.com
Roma
www.roma.de

Naturstein-Fassade:

Fliesen Giovanni
www.fliesen-giovanni.de

KNX-Gebäudeautomation:

Busch Jäger
www.busch-jaeger.de

Leuchten:

Occhio
www.occhio.de
Terzani
www.terzani.com

Heizung, Lüftung, Sanitär:

Helmut Neuwirth
www.helmut-neuwirth.de
Viessmann
www.viessmann.de
Keuco
www.keuco.com
Hansgrohe
www.hansgrohe.de

Fliesen:

Cadek Fliesen
www.cadek-fliesen.de
Casalgrande Padana
www.casalgrandepadana.de

Nothing found.

Neugestaltung eines Neubaus

Nach Umbau entsteht ein maßgeschneidertertes Zuhause in Düsseltal

Farbspektrum

Ein Business Club in Citylage setzt farbenreich auf Exzellenz und Vielfalt

Ein Teil des Waldes

Umbau einer Scheune zu einem modernen Rückzugsort

Passgenau am Bach

Eine geförderte Wohnanlage in Bergisch Gladbach ordnet sich kleinteilig in ihren Kontext ein

Nothing found.

037_nn_700pixel

Lebendigkeit und Vielfalt

Begrünter Innenhof einer Unternehmenszentrale bietet ein ständig wechselndes Gartenbild

Seedammweg40_050_15_700pixel

Verbindung & Rückzug

Verbindende Elemente des Eltern- vom Kindertraktes sind das zentral gelegene Treppenhaus sowie – als kommunikatives Zentrum – der Wohn-Ess-Bereich.……

Architektur wird Instrument

Aufstockung in Holzbauweise ergänzt bestehendes Ensemble ohne zu dominieren

The-Cube7_19_700pixel

Von Frankfurt ins All

Neue Arbeitswelten fördern Kreativität, Agilität und Zugehörigkeitsgefühl

Greener-Than-Grass-Felt-Acoustic-Wallpanel-Press-Illu-Stration-by-Mary-Ann-Williams-002-_10_700pixel

Verspielter Minimalismus

Mary-Ann Williams designt Akustikelemente, Leuchten und Wohnaccessoires

Perfekter Vermittler

Siebengeschossiger Abschluss eines Innenstadtblocks prägt Kreuzungsbereich

Seedammweg40_050_15_700pixel

Verbindung & Rückzug

Verbindende Elemente des Eltern- vom Kindertraktes sind das zentral gelegene Treppenhaus sowie – als kommunikatives Zentrum – der Wohn-Ess-Bereich.……

Architektur wird Instrument

Aufstockung in Holzbauweise ergänzt bestehendes Ensemble ohne zu dominieren