Mobil & multifunktional
Cleveres Konzept schenkt einem Baucontainer ein nachhaltiges und abwechslungsreiches Leben
Wer nachhaltig bauen möchte, muss sich nicht nur bei den Materialien Gedanken machen. Auch eine möglichst lange Nutzungsdauer schlägt in der Nachhaltigkeitsbilanz positiv zu Buche. Was aber machen, wenn ein Gebäude wie ein temporärer Baupavillon von vornherein nicht auf Dauer ausgelegt ist – und dennoch nachhaltig sein soll? Carsten Ott vom Wiesbadener Architekturbüro freiraum4plus hat den nur temporär benötigten Baucontainer so geplant, dass er zwar einerseits repräsentativ ist und alle nötigen Funktionen bietet, andererseits hervorragend an anderer Stelle als Wohn- oder Bürogebäude weitergenutzt werden kann.
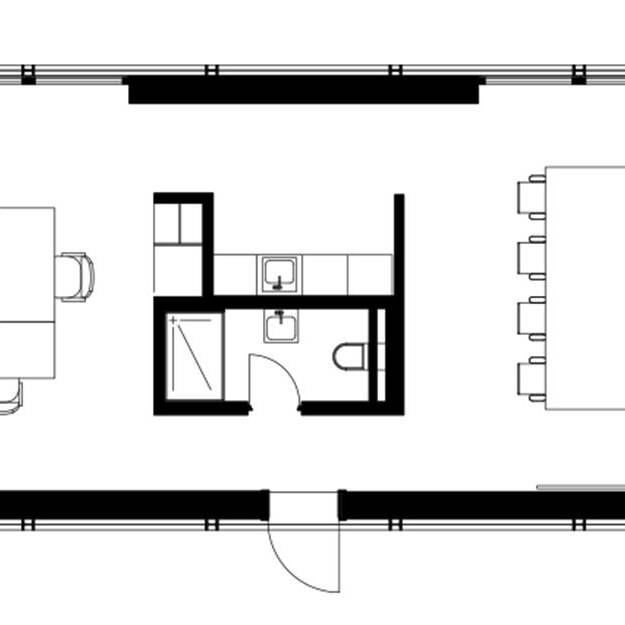
Dafür muss das Gebäude natürlich mobil sein. Durch seine Konstruktion kann es sowohl vor Ort mit dem Kran versetzt werden als auch auf der Straße transportiert werden. Denn Stahlskelett und Holztafeln des Gebäudes lassen sich demontieren und an einer anderen Stelle wieder errichten. Allein während der Planungs- und Bauphase sind für den Baucontainer drei Standorte vorgesehen. Erster Einsatzort ist das Dach eines Offenbacher Hochhauses. Nach Abriss des Gebäudes wird der Container auf dem Baugelände weiter genutzt, bevor er nach Beendigung der Bauarbeiten als Bürofläche oder Apartment mit 72 m² Grundfläche genutzt werden kann. Denn die Raumflächen, die während der Baucontainerphase als Büro und Konferenzbereich genutzt werden, lassen sich bei einer Wohnnutzung in Schlaf-, Wohn- und Essbereich verwandeln. „Die offenen Flächen eignen sich hervorragend zur multifunktionalen Weiterverwendung,“ erläutert Carsten Ott. Für eine unkomplizierte Umnutzung sorgt auch der den Grundriss gliedernde Installationskern. Er bereitet Küche, WC mit Dusche, Heizung und Kühlung vor, denn über diesen Installationskern werden sämtliche Versorgungsleitungen ins Innere geleitet und auch das Abwasser abtransportiert. Gestalterisch diente ein Hochsitz als Inspiration für den Pavillon.
Die Übereckverglasung ist auf dem Hochhaus nach Norden ausgerichtet, die Lüftungsflügel sind zur Querlüftung an den Stirnseiten als Blindelement ausgebildet. Ein Edelstahl-Seilnetz (X-Tend) sichert auf dem Hochhaus die Übereckverglasung, welches jedoch bei der regulären späteren Aufstellung entfernt wird. Grobspanplatten kleiden den Innenraum aus. Für einen Kontrast sorgt der Installationskern aus Cortenstahl.
Fotos:
Carsten Ott
www.ott-photo.de
(Erschienen in CUBE Frankfurt 03|21)
