Alle an einem Strang

Flexibel, sparsam und mit cleverer Technik wohnt es sich besser

Photo-1-web-_jpg_15_700pixel

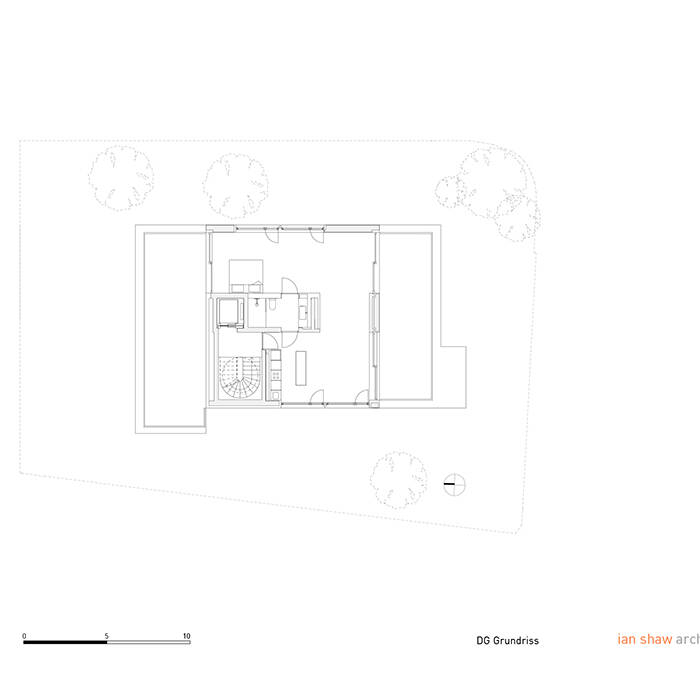
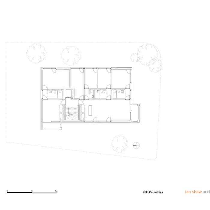
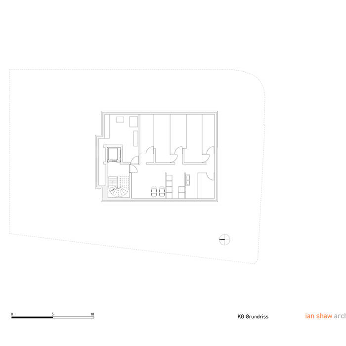
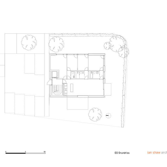
Mehrparteienhäuser haben grundsätzlich viele Vorteile. Ihre Vielfalt beispielsweise, die Menschen in unterschiedlichen Lebensphasen zusammenbringen kann. Oder die Möglichkeit, technischen Fortschritt und ressourcenschonendes Wohnen zusammenzubringen. Dass dies obendrein in Kombination mit moderner, flexibler Architektur gelingen kann, zeigt das Büro von Architekt Ian Shaw in Frankfurt am Main.

Auskragungen aus dem mit hellgelbem, naturbelassenem Juramarmor verkleideten Baukörper beherbergen auf der einen Seite Wohnräume, auf der anderen Balkone. Mit zwei Single- und zwei Familienwohnungen sowie einem barrierefrei gestalteten Penthouse wendet sich das Wohnraum­angebot an Menschen mit unterschiedlichen Wohnbedürfnissen. Alle Einheiten sind über einen gemeinsamen Technikstrang miteinander verbunden. Einem Rückgrat gleich bildet er den zentralen Kern, um den herum sich die Wohnflächen ausbreiten. Deren Aufteilung lässt sich dadurch höchst flexibel an die individuellen Bedürfnisse der BewohnerInnen anpassen. Die Architektur macht hier lediglich ein Angebot, bildet die Plattform für das Wohnen. Die tragenden Wände zeigen sich innen unverkleidet in Sichtbeton. Der helle Farbton unbehandelter Eiche ergänzt das helle Grau. Raumhohe Türen, große Fensterflächen und in die Decke eingelassene Beleuchtung beweisen Einfachheit, die durch ihre präzise handwerkliche Umsetzung wirkt.

Einfach und durchdacht zeigt sich auch das Energiekonzept des Hauses. Geheizt wird über zwei mit Ökostrom betriebene Wärmepumpen. Das Warmwasser dagegen wird mit individuellen Durchlauferhitzern an der jeweiligen Armatur erzeugt, was die Gesamtheizkosten erheblich senkt. Die Lüftung erfolgt über die Fenster, die alle geöffnet werden können. Zusätzlich gibt es Fensterfalzlüfter, die in die einzelnen Fensterrahmen integriert sind und mit der Badezimmerbelüftung für einen konstanten Luftaustausch sorgen. Heizung, Sonnenschutz und Lüftung lassen sich per App über das Smartphone steuern. Und die Deckenbeleuchtung reagiert auf bestimmte Handbewegungen. Fast schon selbstverständlich ist es da, dass die Parkplätze mit einer elektrischen Ladestation ausgestattet sind. Mobilität wird hier allerdings breiter gesehen, weswegen jeder Wohnung Fahrradstellplätze zur Verfügung stehen. Flexibilität wird hier also nicht nur beim Wohnen, sondern auch bei der Fortbewegung großgeschrieben.
 
www.shaw-architekten.de

Fotos:

Moritz Bernoully
www.moritzbernoully.com

(Erschienen in CUBE Frankfurt 02|22)

Nothing found.

Großzügige Wohnhalle

Ein Wohnhaus in Holzbauweise kombiniert weitläufige Ausblicke mit ausgeprägten Deckenhöhen

In den Garten fließend

Ein Einfamilienhaus besticht durch seinen großzügigen Wohnbereich

Ins Bewusstsein gerückt

Der skulpturale Empfangspavillon ist weithin sichtbar und leicht zu finden

Leben auf der Halbinsel

Neubau in nachhaltiger Bauweise denkt Gemeinschaft neu

Nothing found.

Esszimmer-1_15_700pixel

Epochenumspannend

Villensanierung verbindet Leben, Wohnen und Arbeiten mit atmosphärischer Dichte

01_Aussenansicht-Eingang_u-a_19_700pixel

Feine Bänderung

Schulneubau wurde nach modernen lernpädagogischen Standards geplant

190320_3SEIN_INTERIOR_0256_FINAL_DRUCK_15_700pixel

Welcome to the roaring twenties

Die langgezogene Theke ist das Herzstück des Raums.

Resonanzräume

Transformation eines Gebäudes macht die industrielle Vergangenheit erlebbar

DAW_NetWork_Raum3-2_15_700pixel

Inspirierende Wirkung

Meetingräume ermöglichen neue Wege der Zusammenarbeit

Dauerhaft statt temporär

Musterfläche wird zur lebendigen Arbeitswelt

MundS_BV-RS_29_700pixel

Viel Luft im Innern

Ein Haus überrascht mit Einschnitten in seinem Kern

Grueninger_ReWi_Arbeitsbereich_05_19_700pixel

Modernes Lernen fortgesetzt

Weitere Arbeitsplätze nach Erfolg des Lernzentrums an der Mainzer Uni