Geometrisch und hell
Ein Einfamilienhaus fügt sich harmonisch in den Dorfrand und öffnet sich der Natur
Bei der Planung dieses Wohnhauses legten Danner Yildiz Architekten besonderen Wert auf eine ungestörte Gebäudeform, die den Baukörper klar ausrichtet. Während das Haus sich mit seiner schmalen Seite und der Garage zur Straße mit ruhigen, geschlossenen Flächen abgrenzt, öffnet es sich an drei Seiten großzügig der Natur mit Streuobstwiesen und einem beeindruckenden Albtraufpanorama. Der Spitzgiebel korrespondiert mit der dörflichen Umgebung. Gestaltet ohne Dachvorsprung, mit glattem Putz und puren Fensterflächen erhält das markante Bauvolumen damit seine ganz eigene Kraft.
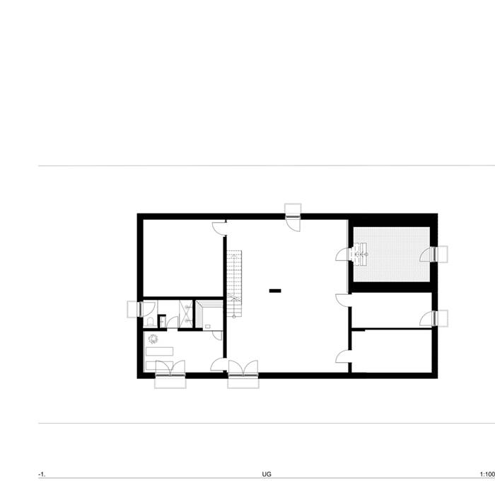
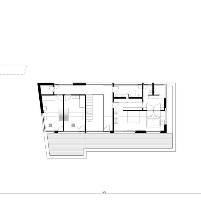
Angelegt ist das Wohnhaus auf drei Ebenen. Beim Betreten eröffnet sich die gesamte Weite des Raums: Mit fast 8 m Höhe über der Treppe empfängt der Wohnbereich mit einer luftigen und einladenden Geste. Küche, Ess- und Wohnbereich zeichnen die leichte Geländeneigung mit unterschiedlichen Niveaus nach. Über wenige Stufen gelangt man von der Ebene der Küche und des Essbereichs aus in den Wohnraum. Diese sanfte Staffelung nimmt auch die Gestaltung des Außenbereichs auf: Mit einer vorgelagerten, zum Garten hin abgetreppten Terrasse gelangt man schließlich auf Gartenniveau zu einem Naturpool. Herz des Wohnraums ist der rundum einsehbare Kamin, der zwischen dem Essbereich und dem Wohnzimmer mit einer Raumhöhe von fast 4 m die Zonierung der einzelnen Bereiche unterstreicht und gleichzeitig eine „warme“ Verbindung schafft. Panoramafenster weiten die Erdgeschossebene mit Ausblicken in die umgebende Natur und in den Garten auf. Das obere Stockwerk ist den Rückzugsbereichen vorbehalten. Erreichbar über eine Galerie, die sich aus dem Treppenraum entwickelt, befinden sich hier das Elternschlafzimmer mit einem Bad en Suite und Ankleidebereich sowie zwei Kinderzimmer, ebenfalls mit eigenem Bad. Direkt vom Bett aus hat man nicht nur über eines der großen, länglichen Fenster den Blick auf die Schwäbische Alb – bei angenehmen Wetter kann man die Aussicht auch auf der den Räumen vorgelagerten Terrasse mit Loungezone und Dachgarten genießen. Ein vielseitig nutzbarer Raum mit angegliedertem Gästeapartment im Untergeschoss dient als Spielbereich oder kann für private Konzerte und Partys genutzt werden. Ebenfalls im Untergeschoss befindet sich ein Weinkeller, der in traditioneller Bauweise aus Natursteinquadern gefertigt wurde.
Die vereinende Klammer des Entwurfs bildet der durchgängige Einsatz weniger, regional typischer oder authentischer Materialien: Holz in verschiedenen Varianten, Naturstein, Schwarzstahl und Sichtestrich. Sie schaffen eine ruhige, leichte und ausgewogene Atmosphäre im gesamten Haus.
Fotos:
Patrick Hipp
www.patrick-hipp.de
(Erschienen in CUBE Stuttgart 04|21)



