Naturnah familiär

Schöne Aussichten für drei Generationen unter einem neuen Dach

4G3A4122_b_15_700pixel

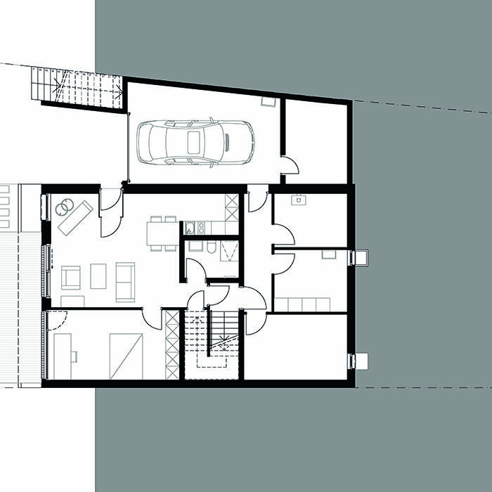
Ein Grundstück, schmal und steil, kombiniert mit dem Wunsch, als Familie mit der Großmutter unter einem Dach und doch in getrennten Wohneinheiten zu leben. Ideale Aussichten für ein Haus, in dem genau das möglich wird, das darüber hinaus auch noch nah an der Natur ist. Das darf wörtlich und übertragen verstanden werden. Denn der Baugrund für das vom Architekturbüro Danner Yildiz realisierte Dreigenerationenhaus liegt am Rande eines Naturschutzgebiets und wurde mit Bedacht ressourcenschonend errichtet. Anders als in der Stadt, schweift hier der Blick nicht über ein Häusermeer, sondern darf sich das Auge an grünen Wiesen und Bäumen erholen.

Klar setzt sich das anthrazitfarbene Untergeschoss gegen den zweigeschossigen, weißen Kubus darüber ab. Fast schon zurückhaltend schiebt sich dieser Stahlbetonsockel mit der Einliegerwohnung für die älteste Generation in den Hang hinein und bietet der Holzkon­struktion darüber eine stabile Basis. Um eine gute Energiebilanz für den gesamten Lebenszyklus eines Gebäudes zu erreichen, wurde auch die Recyclingfähigkeit durch vorgefertigte Holzelemente mit leim- und schraubenfreien Verzapfungen bedacht. Die Solaranlage auf dem Dach betrachten die Architekten ohnehin als Standard bei ihren Gebäuden, wie Florian Danner betont. Den 60 m langen Zugang über das Grundstück teilen sich die beiden Wohneinheiten, nicht aber die Terrassen. Die eine liegt vor dem Untergeschoss, die andere – die Hanglage macht es möglich – erschließt den Garten vom Erdgeschoss aus. Die Architekten setzten das Gebäude weit oben auf das Grundstück und direkt auf die seitliche Grenze. Als Zugeständnis wurde die Wand hier fensterlos als Brandmauer ausgebildet. Der Blick schweift ohnehin durch die raumhohen Fensterflächen auf der Westseite über das Tal. „Wir wollten vom Wohnhaus aus unbedingt die Aussicht ins Ammertal erlebbar machen“, erzählt Architekt Philipp Dworschak. Diese Aussicht prägt auch die Innenräume, die zurückhaltend in Weiß mit Eichendielenböden und Akzenten in Schwarzstahl gestaltet sind. Wenige ausgewählte Möbelstücke mit Erinnerungswert kommen in dieser modernen Architektur besonders zur Geltung. Auffallend in der schlichten Umgebung ist das alle Ebenen verbindende Treppenhaus. Es gibt den Weg auch für das Tageslicht frei, das über ein Oberlicht bis in das Untergeschoss dringt. Ohnehin spielt das Licht eine ebenso entscheidende Rolle wie der Ausblick in das Grün der umgebenden Natur. Die zu genießen dienen die großen Fenster- und Freiflächen, die immer wieder überraschen. Sei es als Eckverglasung in der Küche oder als eingeschnittene Loggia neben dem Elternschlafzimmer im Obergeschoss.

www.dy-architekten.de

(Erschienen in CUBE Stuttgart 03|20)

Architekten:

Danner Yildiz Architekten
www.dy-architekten.de

Schlüsselfertiger Bau:

Willi Mayer Holzbau
www.willi-mayer.de

Küche:

Jörg Dubbert Schreinerei
www.jd-schreinerei.jimdo.com

Kamin:

3D Ofengestalter Franz-Lorenz Wagner
www.ofengestalter.de

Leuchten:

Artenia
www.artenia.de

Fenster:

Gutbrod
www.gutbrod-fenster.de

Türen:

Josko
www.josko.com

Küche/Küchentechnik:

Miele
www.miele.de

Gasbrennwertgerät, Heizungsunterstützte Solaranlage:

Viessman
www.viessmann.de

Lüftungsanlage:

Tecalor
www.tecalor.de

Sanitärausstattung:

Vigour
www.vigour.de

Fotos:

Patrick Hipp
www.patrick-hipp.de

Nothing found.

Nachhaltige Metamorphose

Das Büroensemble „Lyght“ in Golzheim erweitert und revitalisiert den Bestand aus den 1970er-Jahren

Harmonisch eingefügt

Neubau-Ensemble wahrt den historischen Bezug und entwickelt eigene Identität

Traditionell und Modern

Traditionell und Modern

Massivholzhaus ist der Publikumsliebling beim Rosenheimer Holzbaupreis

Nothing found.

190929hoerbar_balingen066_web_15_700pixel

Hörbar

Anregende, kontrastreiche und akustisch wirksame Raumkonzeption für ein Hörakustik-Fachgeschäft

Bar-von-vorne_15_700pixel

Hier spielt die Musik

Die Schwarz Weiß Bar ist eine der angesagtesten Adressen für Nachtschwärmer

FarberSoehne_Werner_by_TomislavVukosav_-13_15_700pixel

Eine ungewöhnliche Verbindung

Kücheninsel wird zur Treppe ins Obergeschoss

HausHTIFF_0009_56_700pixel

Ausdrucksstarkes Weiß

Auf einem Plateau schmiegt sich ein schmaler Gebäuderiegel an einen steilen Hang

Angebunden

Betriebshof verbindet über eine „Gartenmauer“ seine unterschiedlichen Nutzungen

25_19_700pixelQqwnb6Et5b8ZL

Erhellend anders

Neues Lichtkonzept unterstreicht die Architektur und sorgt für ein einladendes Ambiente

1854_EFH_Gerlingen_01_19_700pixel

Farbe, Form und Licht

Aus einem Wohnhaus der 1980er-Jahre wird ein fein komponiertes Familienrefugium

Für einen schönen Lebensabend

Neue Pflegeeinrichtung macht Wohlfühlen zur Normalität