Haustypen – gemixt
Zwei Hausformen übereinander ergeben ein Ganzes
Schnell war man sich einig: Bauherr und Architekt verständigten sich auf eine adäquate Hausform für das neue Eigenheim. Der urspüngliche Wunsch des Auftraggebers war, in einem Bungalow zu leben, der aber niemals dem Raumbedarf einer vierköpfigen Familie gerecht geworden wäre. Daher musste eine zusätzliche Möglichkeit gefunden werden, um das Wunschhaus zu kreieren. Clemens Bachmanns Büro CBA ist das Kunstwerk gelungen: Er schichtete auf das Bungalowdach ein zweites Stockwerk, das wie eine Krone auf seinem Sockel sitzt, in Gestalt eines eher geschlossenen Baukörpers mit Walmdach. Unten extrovertiert und verglast, oben introvertiert mit einzelnen Fensteröffnungen. Unten wird gewohnt, gekocht, gegessen, relaxt, gelesen und gefeiert oder auch ferngesehen, oben befinden sich die privaten Rückzugsräume.
Auch optisch unterscheiden sich die beiden Teile durch ihre Fassadenbeschaffenheit: Glas und Sichtbeton im Bungalow und eine verputzte Fassade im sogenannten Einfamilienhaus oben. Das umlaufende Vordach des Bungalows stellt die Zäsur zwischen den Fassadentypologien dar, das sich hinten zum Garten hin zu einem großen Balkon über dem Essbereich liegend ausweitet und nach vorne hin einen kleineren Balkon bildet. Für dieses Gesamtprogramm für die Eltern und zwei Kinder stehen etwa 450 m² zur Verfügung. Der Neubau steht in Pullach, einer der schönsten Gegenden Münchens. Also nicht mitten im Großstadttrubel, aber auch nicht so weit draußen, dass man nicht rasch mitten im Trubel wäre, wenn man ihn sich wünscht. Die Bauherrin betreibt ein Innenarchitektur Studio, was im Innern eine hundertprozentige Gestaltung nach den familiären Bedürfnissen und Vorlieben ermöglichte. Die Möblierung ist hochmodern, edel und eher spärlich als überladen. Der Kochbereich besticht durch einen kühlen Techniklook.
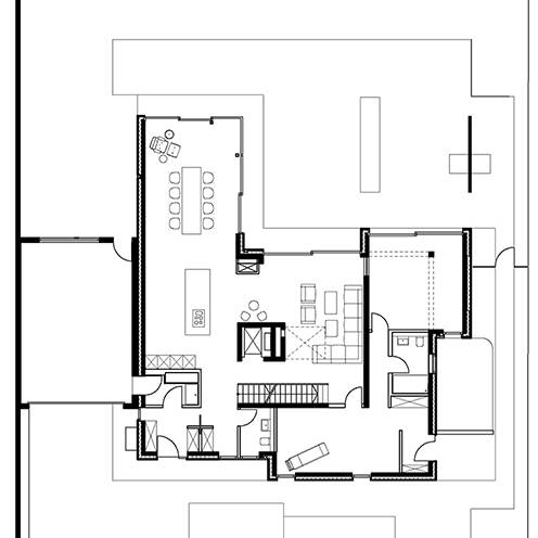
Das Erdgeschoss bildet eine L-Form zugunsten des in den Garten hineinragenden kurzen Schenkels, in dem sich der Essbereich befindet. Der quer dazu stehende lange Teil mit seinem offenen Grundriss dient als „Livingroom“. Der an drei Seiten verglaste Bungalow macht den Raum taghell und in der Mitte des Raums versorgt ein Leuchter, in einen Luftraum eingepasst, die Leseecke mit Licht. Daneben liegt die Treppe, die nach unten – in diesem Bereich ist das Haus unterkellert – und nach oben führt.
Im Obergeschoss gibt es das Elternschlafzimmer und das Masterbad plus zwei Kinderzimmer mit eigenem Bad sowie Arbeitsräume. Auch das Dach darüber ist ausgebaut und wird als separate Wohneinheit genutzt. Draußen lockt der von der Münchner Gartendesignerin Christiane von Burkersroda – ein schön gepflegter Garten mit Rasen, Gräsern und Baumbepflanzung. Er ergänzt das Gebäude perfekt.
Fotos:
Bernd Ducke
www.berndducke.de
(Erschienen in CUBE München 02|21)


