Unkonventionell und innovativ

60 Personen hatten sich für dieses Bauvorhaben zusammengefunden und für die insgesamt 22 Wohnungen ihre individuellen Bedürfnisse und Wünsche in die Gestaltungsdebatte eingebracht. Das Ergebnis weist viele Besonderheiten auf.

10-_Fassade-A4-300dpi-by-Andreas-Meichsner_15_700pixel

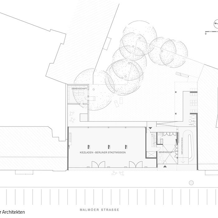
Meist ist es problematisch und langwierig, ein Baugruppenhaus zu entwickeln, weil so viele Parteien mitentscheiden. So war es auch hier – doch es hat sich gelohnt. 60 Personen hatten sich für dieses Bauvorhaben zusammengefunden und für die insgesamt 22 Wohnungen ihre individuellen Bedürfnisse und Wünsche in die Gestaltungsdebatte eingebracht. Das Ergebnis weist viele Besonderheiten auf: Zunächst ist vom Standort Malmöer Straße aus bereits erkennbar, dass es sich eigentlich um zwei Häuser handelt, die zusammengehören, aber äußerlich und im Innern deutliche Unterschiede aufweisen: Die Fassade ist in der linken Hälfte durch schmale durchgehende Gänge und versetzte Balkone gekennzeichnet. An gespannten Drähten ranken sich Glyzinien empor – ein wunderbarer blau-violetter Blütenvorhang im Sommer. In der rechten Haushälfte gibt es bodentiefe Fenster und Loggien. Links sind die Wohnungen doppelgeschossig, rechts eingeschossig und durchgesteckt über die gesamte Gebäudetiefe. Auf der Rückseite ist die Fassadengestaltung ebenfalls divers: Die nun linke Hälfte ist holzverschalt und hat teilweise Balkone, die rechte Seite weist die Besonderheit auf, dass die Wohnungen über Laubengänge vom einzigen Treppenkern aus erreichbar sind. Es wird kein Platz durch ein zweites Treppenhaus vergeudet, was der Größe der Wohnungen zugute kommt. Die Laubengänge fördern sowohl die Kommunikation und dienen zudem als Freiraum außen mit Ausrichtung auf den Innenhof mit Kinderspielplatz. Die Räume der oberen Etage (Küche und Wohnen) liegen um zwei Stufen (38 cm) höher als der Laubengang. Dadurch wird der Einblick in die Privaträume der Wohnungen am Laubengang minimiert. Die Fenster haben innen eine Brüstungshöhe von 1,25 m – ideal für die Küchen, die sich davor befinden. Großzügige Fensteröffnungen wurden dadurch möglich, anders als die kleinen Oberlichtfenster, die gemeinhin mit Laubengangerschließung assoziiert werden.

Die Wohnungen sind ungewöhnlich und gut durchdacht: Man betritt vom Laubengang aus das obere Geschoss der Wohnung, in dem sich Wohnen, Kochen und Essen abspielt. Sanitär- und Schlafräume liegen im unteren Teil der doppelgeschossigen Wohnungen. Über eine schmale Treppe gelangt man in den unteren privaten Bereich der Wohnung. Der Zuschnitt der durchgesteckten Wohnung in Haus 2 hat mit seinen 25 m eine enorme Tiefe. Der Grundriss ist hier wie folgt zoniert: Das Wohnen spielt sich im Westen ab, mittig liegt die Küche und ein Flur führt zu den einzelnen Zimmern im östlichen hinteren Teil. Gemeinschaftsflächen gibt es im 1. Obergeschoss zu Versammlungszwecken oder festlichen Anlässen, zudem einen Second-Hand-Laden samt Kieztreff im Erdgeschoss. Tiefgaragenplätze für Autos? Fehlanzeige. Aber sehr wohl gibt es eine Tiefgarage für Fahrräder!

www.c-wagner.de

Fotos:

Andreas Meichsner
www.andreasmeichsner.de

(Erschienen in CUBE Berlin 01|21)

 

Nothing found.

Preziose unterm Dach

Ein Spitzboden in einem Mehrfamilienhaus in Essen-Rüttenscheid wird zum Vorzeigeprojekt

Vergangenheit & Zukunft

Modellprojekt zeigt, wie sakrale Bestandsarchitektur transformiert werden kann

Nachhaltige Metamorphose

Das Büroensemble „Lyght“ in Golzheim erweitert und revitalisiert den Bestand aus den 1970er-Jahren

Nothing found.

leonwohlhage_KUC_CRichters_4420-61_19_700pixel

Trapezakt

Das moderne Erscheinungsbild des 7-geschossigen Gebäudes ist geprägt von einer Schichtung verschiedener facettierter Oberflächen.

TVA_6443_Cuvry_1056801_c_Klemens_Renner_700pixel

Arbeiten statt wohnen

Hochmoderner multifunktionaler Bürokomplex „Cuvry-Campus“

Haus_Lu-tzowstrasse_Project_ac-1_15_700pixel

Quasi im Handumdrehen

Mit wenigen Umbaumaßnahmen wurde das Stadthaus zum Zweifamilienhaus

Luxusliner an der Spree

Luxusliner an der Spree

„Dockyard“ – ein zukunftweisendes Bürogebäude in Friedrichshain

Villa-Heike-Ansichten_05_15_700pixel

Metamorphosen eines Baudenkmals

Die Villa Heike in Alt-Hohenschönhausen erlebt eine Wiedergeburt

6490_EDGE_S2607390_c_Michael_Fahrig_15_700pixel

Nachhaltig ist das neue normal

DGNB-Platin zertifiziert: Büro- und Verwaltungsgebäude Edge Suedkreuz Berlin

12_15_700pixelNpqiGCbEj4bxy

Hof im Hof

Umbau und Umnutzung von Garagen im Hinterhof in ein Atelier- und Wohnhaus