Wiedergewonnene Klarheit
Revitalisierung eines Terrassenhauses interpretiert den Entwurfsgedanken von Offenheit und Licht neu
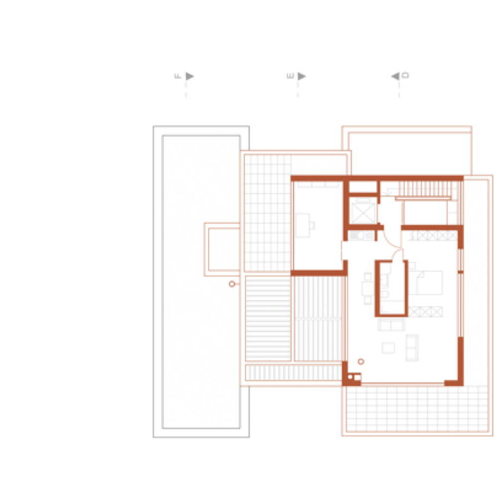
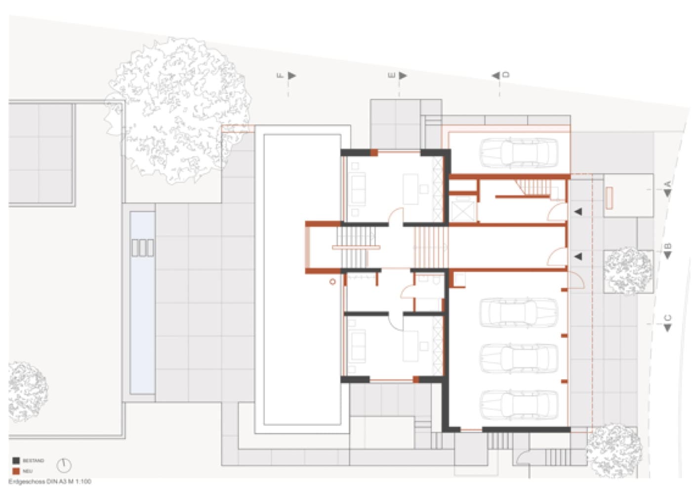
Nach Plänen der renommierten RWTH-Professorin Renate von Brause entstand 1970 auf einem bewaldeten Hanggrundstück ein Terrassenhaus in Split-Level-Bauweise. Drei gestaffelte Baukörper – Straßen-, Mittel- und Gartentrakt – gliederten das Wohnhaus in funktionale Ebenen: ein Einfamilienhaus mit innenliegendem Pool im Untergeschoss und eine Einliegerwohnung auf Eingangsniveau. Die zentrale Treppenachse, quer zur Staffelung verlaufend, verband alle Ebenen miteinander und inszenierte den Wechsel zwischen öffentlichem und privatem Raum. Oberlichter entlang dieser Achse brachten Tageslicht bis tief ins Innere und ermöglichten überraschende Blickbezüge zum alten Baumbestand.
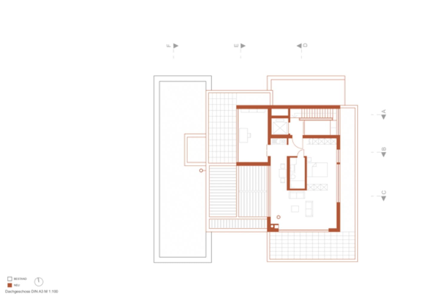
Eine untypische Aufstockung des Straßentraktes von 1982 mit Walmdach und Dachgauben zur Schaffung einer weiteren Wohnung zerstörte diese Qualitäten. Die ehemals klare Horizontale wurde aufgegeben, der großzügige Eingangsbereich verschattet, und auch die räumliche Dramaturgie der Treppe ging verloren. Erst durch den jüngsten Umbau, der in den Händen der Architekten Hoppe lag, konnte die ursprüngliche Idee wieder freigelegt werden. „Wir haben das Walmdach rückgebaut, die Staffelung der Baukörper wieder betont und den Entwurfsgedanken von Offenheit und Licht in zeitgemäßer Form neu interpretiert“, so Thomas Hoppe. Der Neubau folgt weiterhin der Dreiteilung des Hauses, ergänzt jedoch zwei zusätzliche Wohneinheiten im Ober- und Dachgeschoss für die Eltern und Kinder der Bauherren. Ein neues, geschosshohes Oberlicht markiert das Ende der Erschließungsachse und bringt zentrales Licht zurück ins Herz des Gebäudes.
Der vorhandene Pool wird in einen barrierefrei erreichbaren Wellnessbereich integriert, der zum Treffpunkt der drei Generationen wird. Die Gartenseiten des Mitteltraktes wurden um ein halbes Geschoss abgetragen, um bodentiefe Öffnungen und vorgelagerte Terrassen zu schaffen. Jede Wohneinheit erhielt eine eigene Feuerstelle – im Erd- und Obergeschoss als Kamin, im Dachgeschoss als frei schwebender „Slim Focus“. Die Material- und Farbwahl unterstreicht sowohl im Innern als auch im Äußeren die einfache, differenzierte kubische Formgebung.
Während die Gebäudehülle aus weißem Glattputz, anthrazitfarbenem Besenzugputz und Cortenstahl-bedampften Fassadentafeln besteht, dominieren im Innenraum weiße Wände, graue Betonspachtelwandflächen im Nassbereich, freistehende rostrote Wandscheiben und geräucherter brauner Eichenholzboden. Durch die Erweiterung wuchs die Bruttogrundfläche von 715 m² auf 1.027 m² – doch entscheidender ist der qualitative Zugewinn: Das Terrassenhaus konnte seine ursprüngliche Klarheit und räumliche Spannung zurückgewinnen.
Fotos:
Jens Kirchner
www.jens-kirchner.com
Axel Hartmann
www.ah-fotografie.de
(Erschienen in CUBE Köln 04|25)
















