Transformation in die Neuzeit
Ein Hanghaus aus den 1960ern wurde mit Blick auf das Original komplett saniert
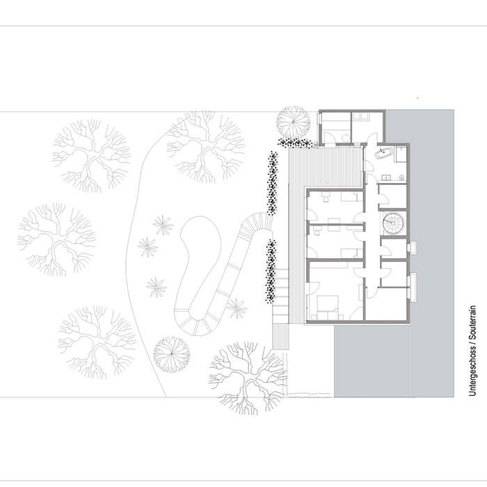
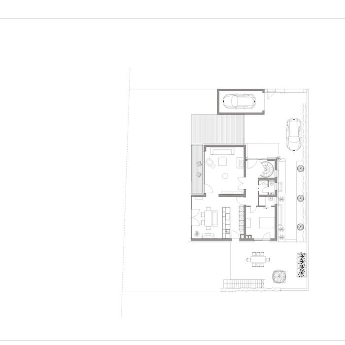
Kaum zu glauben, aber dieses Haus ist kein Neubau, sondern ein ganz besonders saniertes Schmuckstück aus den (damals schon äußerst modernen) 1960er-Jahren. Und wenn Architekten ihr eigenes Haus renovieren, kann dabei ja auch nichts anderes herauskommen als ein perfektes Ergebnis. Doch von Anfang an: Dem Architektenpaar Ute und Michael Wahn von wahnarchitekten aus Rösrath war es besonders wichtig, den originalen Stil des 1958 errichteten Hauses in Hanglage zu erhalten.
Dennoch musste es für die energetische und technische Sanierung zunächst komplett bis auf den Rohbau zurückgebaut und wieder neu ausgebaut werden, einschließlich einer Erneuerung der Grundleitungen unter der Bodenplatte. Als Schwierigkeit erwiesen sich dabei die notwendigen statischen Ertüchtigungen, die jedoch mit einigen Kniffen in den Griff zu bekommen waren. Auch die ursprüngliche Fassadengestaltung wurde geändert: Der weiß gestrichene Kratzputz mit Einlagen aus rötlichem Klinkerstein und Holzfenstern wurde abgeändert in perlmausgrau gestrichene Feinputzflächen mit einer 3D-Holzverschalung und Aluminiumfenster im Farbton DB 703, ein dunkles Grau mit einem leichten Glimmereffekt. Die klar und funktional angeordneten Innenräume hatten schon von vornherein eine sehr gute und ausgewogene Raumgeometrie – jedem Raum ist entweder ein Balkon oder eine Terrasse zugeordnet. „Durch die großflächigen Verglasungen zur südwärts ausgerichteten Hangseite sind die Räume sehr hell und lichtdurchflutet und der erhöhte Blick in den gestalteten Wildgarten macht ein einzigartiges Wohngefühl“, erläutert Ute Wahn. Highlight im Esszimmer sind zwei bodentiefe, mit Glasbrüstungen gesicherte Türen zum Hang, durch die es sich so anfühlt, als würde man rund 10 m über dem Garten schweben. Die alte Spindeltreppe als Verbindung der beiden Geschosse wurde belassen und das ehemalige „Kordelgeländer“ mit den geschlossenen, gebogenen Gipskartonbekleidungen neu erstellt. Massive geölte Eiche-Industrieparkettlamellen in den Wohnräumen sowie Bodenbeläge mit Einlagen aus dem regionalen Naturstein Grauwacke aus Lindlar unterstützen den minimalistischen Charakter des 60er-Jahre-Hauses. Ebenso die puristische Küche: Die einfachen Korpusse, sichtbaren Bekleidungen und Holzfronten aus sägerauer Eiche und Schleiflackoberflächen sowie die massive, aber besonders dünne Arbeitsplatte wurden vom Schreiner angefertigt. Ein besonderes Detail sind die eingelassenen Griffmulden an den Schleiflacktüren der Hochschränke, die mit Eicheeinlagen gestaltet wurden.
Fotos:
Ulla Franke
www.ullafranke-foto.de
(Erschienen in CUBE Düsseldorf 04|22)
