Schwebender Monolith

Ein Kubus am Hang fängt den traumhaften Talblick ein

Nach langer Suche war das Bauherrenpaar doch noch fündig geworden: Das gewünschte Hanggrundstück mit großzügiger Aussicht über das Rheintal bis zum Bonner Posttower tat sich auf einem Grundstück in Königswinter auf. Die Aufgabe für den mit dem Entwurf beauftragten Architekten Klaus Mäs aus Bornheim bestand darin, diese landschaftliche Kulisse architektonisch zu rahmen und in Szene zu setzen. Ein kompakter, monolithischer Kubus bringt die stark geneigte Topografie mit den Raumwünschen und Nutzungsanforderungen der Familie in Einklang.

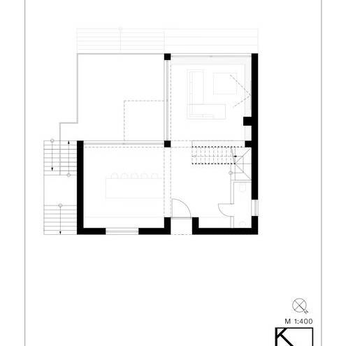
Das Konzept des Wohnhauses besticht durch seine geometrische Klarheit: Wie bei einer Skulptur sind aus dem kubischen Baukörper ebenfalls würfelförmige Volumina „herausgeschnitten“, die dem Klinkerbau die Massivität nehmen. Genauso klar zeigt sich der Entwurf in der Funktionsaufteilung: Das Erdgeschoss ist kreuzförmig in vier gleichgroße Bereiche unterteilt: ein Viertel Ankommen, ein Viertel Küche und Essen, ein Viertel Wohnen und ein Viertel Außenterrasse. Besucher:innen gelangen über eine Einfahrt zum Gebäude. Hinter der etwas zurückgesetzten Haustür öffnet sich ein grosszügiger Eingangsbereich, der durch den Treppenlauf begrenzt wird, ohne jedoch den Ausblick zu verstellen: Die filigran ausgeführten Metallstreben des Geländers erlauben den Blick auf das dahinterliegenden Wohnzimmer und lassen die Weite des Ausblicks erahnen. Statt eines separaten Essbereiches wurden Kochen und Essen in einem Raum miteinander verbunden: An der großzügigen Kücheninsel kann nicht nur gekocht, sondern auch gegessen werden – auch mit mehreren Gästen. Ein außerordentliches Highlight ist der über zwei Geschosse reichende Wohnbereich: Durch die raumhoch ausgeführte Fensteranlage mit Fensterkreuz bietet sich ein traumhafter Ausblick über die Rheinebene, wobei Sitzflächen in der Fensterlaibung zum Verweilen einladen. Organisch erweitert sich die Sitzbank zu einem Sideboard mit Homekino-Multimedia-Wand – bis zum Holzkamin, der seinerseits dem Wohnraum Wärme und Gemütlichkeit schenkt. Die Terrasse lässt sich sowohl von der Küche als auch vom Wohnbereich aus erreichen. Über eine angrenzende Treppe gelangt man zum ein Geschoss darunter gelegenen Garten mit überdachter Außenterrasse, Freitreppe und in die Topografie integriertem Naturstein-Pool. Während die von außen zusätzlich erschlossene Gartenetage das Kindergeschoss beherbergt, befindet sich der Elterntrakt samt Bad und integrierter Ankleide im Obergeschoss. Eine breite Fensterschieberfront, die in einen exponierten quadratischen Balkon übergeht, öffnet auch hier den Ausblick auf das Tal. Beheizt wird das Wohnhaus über eine geothermische Anlage, die mit einer PV-Anlage auf dem Dach kombiniert ist.

www.klausmaes.de

Wohnfläche: 240 m²
Grundstücksgröße: 800 m²
Bauzeit: 12 Monate
Bauweise: Massiv
Energiekonzept: Wärmepumpe mit Geothermie, Holzkamin, PV-Anlage

Fotos:
Philip Kistner
www.philipkistner.com

(Erschienen in CUBE Köln Bonn 02|24)

Architektur:

Klaus Mäs Architektur
www.klausmaes.de

Erd- und Abbrucharbeiten:

Hans Bungard
www.h-bungard.de

Metallbau:

Brief & Karl Metalldesign
www.bk-metalldesign.de

Hochbau:

Marc Esch
www.marc-esch.de

Einrichtungskonzept:

Helm-Einrichtung
www.helm-einrichtung.de

Fenster:

Wiedmann
www.fenster-wiedmann.de
Veka
www.veka.de

Einrichtung:

Raumordnung Christian Blumenrath
www.raumordnung.net

Dachdeckerei:

Barz Dachdeckermeisterbetrieb
www.barz-dach.de

Fassade:

Stuckgeschäft Laufenberg
www.stuck-laufenberg.de

Trockenbau:

Brüder Bau
www.bruederbau.de

Leuchten:

Delta Light
www.deltalight.com
Luceplan
www.luceplan.com

Ziegel:

Klinker-Zentrale
www.klinker.de

Gussboden:

Heuser
www.werner-heuser.de

Nothing found.

Nachhaltige Metamorphose

Das Büroensemble „Lyght“ in Golzheim erweitert und revitalisiert den Bestand aus den 1970er-Jahren

Harmonisch eingefügt

Neubau-Ensemble wahrt den historischen Bezug und entwickelt eigene Identität

Traditionell und Modern

Traditionell und Modern

Massivholzhaus ist der Publikumsliebling beim Rosenheimer Holzbaupreis

Nothing found.

_16A9458_15_700pixel

Wohnen mit Anschluss

Eine Baugruppe in Ehrenfeld kreiert ihren eigenen Raumorganismus zwischen Alt und Neu

MBO-190819-TT-167_19_700pixel

Mit Augenmaß umgebaut

Ein Bungalow aus den 1960er-Jahren in Rheinnähe wurde umfänglich saniert

_DSC3125_b_19_700pixel

Schwebend am Hang

Ein sanierter Bungalow von 1964 in Bad Honnef wirkt so zeitgemäß wie ein Neubau

_DSC1338-HDR-4-Kopie_19_700pixel

Viel Raum für Geborgenheit

Ausblicke und viel Licht von allen Seiten prägen das Heim einer Familie

F-W-Pulheim-V110-022_19_700pixel

Zentral Wohnen und Arbeiten

Wohn- und Geschäftshaus schließt Baulücke am Pulheimer Marktplatz

Nach der Flut ist vor der Flut

Nach der Flut ist vor der Flut

Ein historisches Wohnhaus in Mechernich wurde nicht nur denkmalgerecht saniert

WeberPahlLEV200210_0054pL_15_700pixel

Wo man gerne ankommt

Der neue Busbahnhof in Leverkusen überzeugt durch Transparenz in alle Richtungen

Schwerelos

Ein Rückzugsort, der die Grenzen zwischen Innen und Außen verwischt