Unter den Eichen
Alter Baumbestand prägte als Leitthema Architektur und Innenarchitektur dieses Wohnhauses
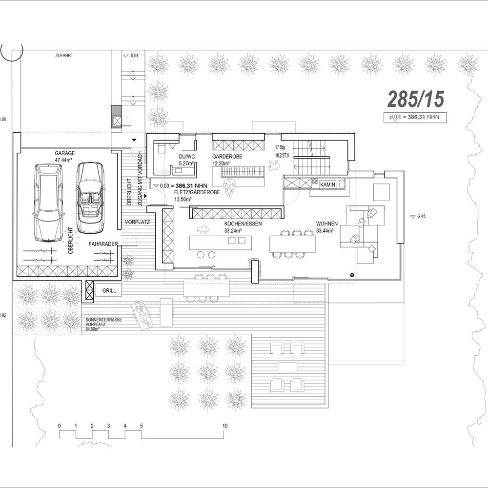
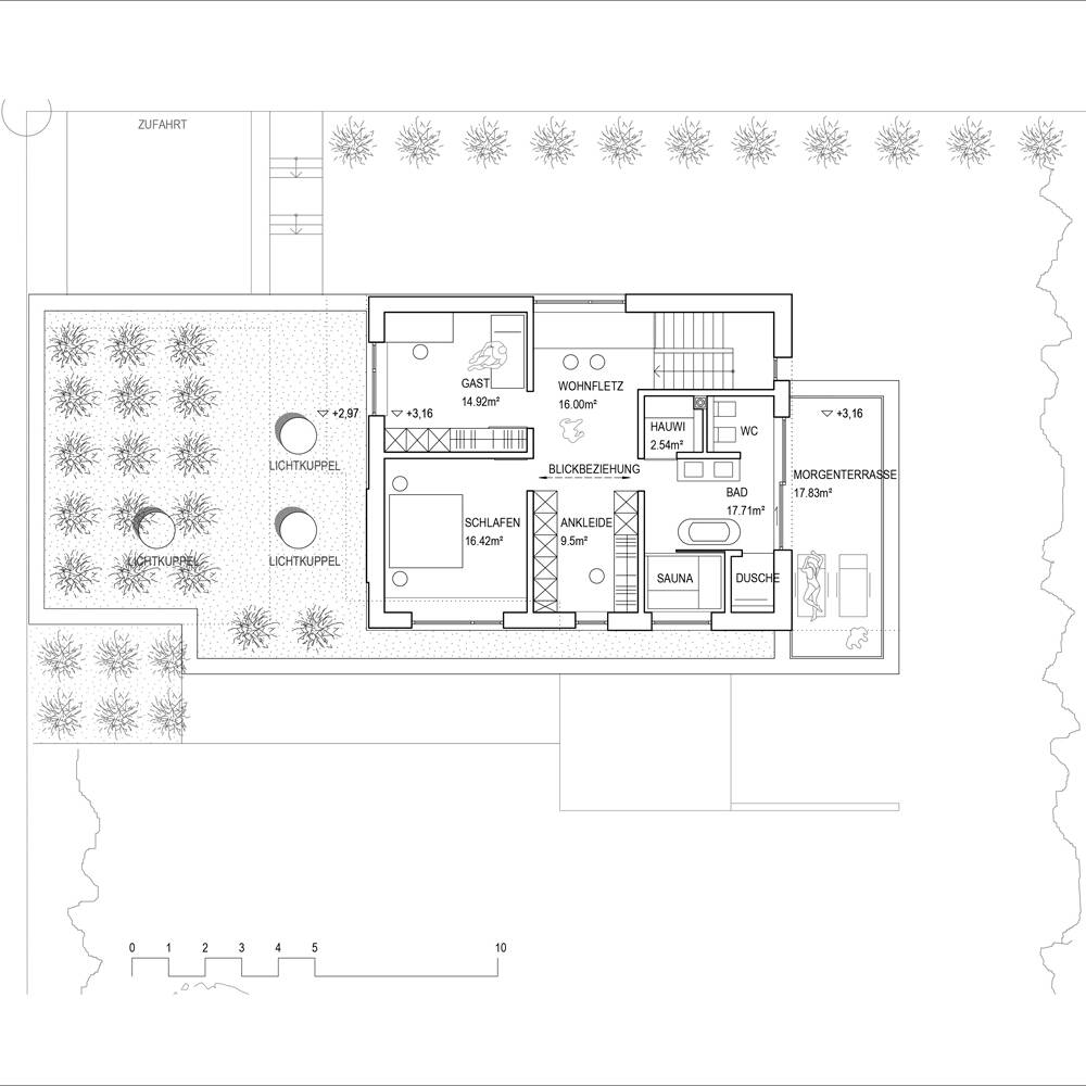
Ein unverbaubarer Blick in die Natur und ins Donautal und dazu die prächtigen alten Bäume: In dieser Traumlage verwirklichte ein Bauherrenpaar mit zwei Kindern sein Traumhaus, bei dem das Thema „unter den Eichen“ sowohl die Architektur, als auch die Innenarchitektur geprägt hat. Das Paar hatte sich für einen Abriss des Bestandshauses und einen Neubau entschieden. Ein Umbau und eine umfangreiche Sanierung hätten Kompromisse bei der Raumaufteilung erforderlich gemacht. Auf dem Grundstück in Hanglage planten brandl architekten aus Regensburg einen Neubau auf drei Ebenen, der durch eine ästhetisch durchdachte Architektur und klare Formensprache besticht. Obwohl der Bebauungsplan das gewünschte Flachdach nicht vorsah, entwickelten die Architekten mit einem extrem flachen Satteldach einen raffinierten Kompromiss. Präsentiert sich die Straßenfront des Hauses eher geschlossen, öffnet sich seine Rückseite zum Garten hin, fließt der ihm umgebenden Natur entgegen. Diese wird im Erdgeschoss durch eine lange Fensterfront im Wohnbereich der offenen Wohnebene, mit direktem Zugang zum Garten, erlebbar. Neben den offenen Küchen- und Wohnbereichen umfasst das Raumprogramm im Erdgeschoss eine Doppelgarage, überdachte Zugangsbereiche und eine Garderobe. Das Gartengeschoss vereint zwei Kinderzimmer, ein Kinderbad, einen Spielbereich sowie Technik- und Hauswirtschafts- und Lagerräume in einem „Gartenhaus”unter der Terrasse, dessen Zugang mit einer nach Yakisugi-Art verkohlten Front geschickt verborgen wird. Die alten Eichen auf dem Grundstück, die als zentrales Thema die Leitidee des Entwurfs kennzeichnen, prägten auch die Gestaltung des Äußeren: Wahrer Hingucker der Straßenfront sind die Garagentore und Zugänge zum Haus mit einer maßgefertigten Verkleidung mit Eichblatt-Motiven. Unzählige handgebohrte Öffnungen in den Metallblechen bilden das Blattmuster ab und bringen das Thema „Unter den Eichen“ subtil zum Ausdruck. Stimmig dazu rekurrieren mit sandfarbenem Besenstrichputz in vertikaler Ausrichtung gestaltete Flächenbereiche der Fassade auf das Holz von Eichen. Dieses inspirierte auch innen die Materialwahl und Gestaltung: So wurden Böden und Einbauten aus Holz ausgeführt, um eine warme Haptik zu erzeugen. Gemeinsam mit den Holzstabfronten der individuell geplanten Einbauten, der Fronten der massangefertigten Küche aus sägerauer, schwarz gebeizter Eiche sowie den übrigen schwarzen Materialoberflächen, wie Schwarzstahl unterstützen sie eine bis ins Detail durchdachte Homogenität. Das Treppenhaus mit Aussicht über das Dorf verbindet die Ebenen miteinander. Im Süden schützt die auskragende Dachterrasse die Wohnräume vor der im Sommer steil stehenden Sonne, lässt aber im Winter und in der Übergangszeit die Räume belichten und erwärmen. Im obersten Stockwerk befinden sich Schlaf- und Gästezimmer, Ankleide und Bad mit Sauna. Auch in diesen Räumen inszenieren die Fenster den Blick auf die alten Eichen. Auch das Bad wurde so geplant, dass man dank der großen Fensterfront die imposante Aussicht ins Donautal genießen kann. Aufgrund der Hanglage und der Dachterrasse ist das Bad jedoch vor Blicken von außen geschützt. Das Haus wird über eine Wärmepumpe mit kontrollierter, zentraler Wohnraumlüftung beheizt, während die massive Bauweise und natürliche Speichermaterialien für eine Klimaregulierung sorgen. Ein umfassendes Smart-Home-System erlaubt die Steuerung aller Beleuchtungen und technischer Funktionen im Haus.
Fotos:
Herbert Stolz
www.herbert-stolz.de
(Erschienen in CUBE München 04|24)



