Unkonventionelle Lösung
Holzhybridhaus verbindet gute Aussicht mit schützender Privatsphäre
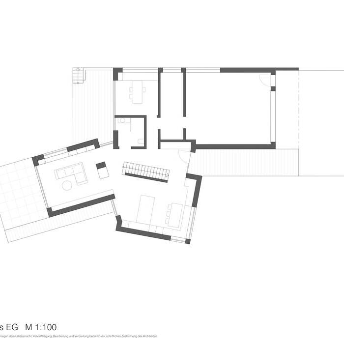
Bei diesem Haus im Spessart ist den Architekten die Quadratur des Kreises gelungen: Ausgerechnet in Richtung des herrlichen Talblicks liegt ein Nachbargebäude, das die Bauherren natürlich nicht ständig im Blick haben wollten. Außerdem sollte der größtmögliche Ausblick genau in die Richtung gehen, in der sich die Bauherren die größtmögliche Privatsphäre wünschten. Um das zu erreichen, entstand eine neue unkonventionelle Orientierung, die das Nachbarhaus aus dem täglichen Leben zu Hause einfach ausblendet: Das Architekturbüro Next Habitat aus Flörsbach plante ein Einfamilienwohnhaus aus drei zueinander verdrehten Kuben, deren einzelne Wohn- und Nutzungsbereiche sich in einem gemeinsamen und offenen Erschließungskern verbinden, was sich auch hervorragend mit dem Wunsch der Bauherren nach einem jungen, dynamischen, lebendigen und etwas speziellen Haus trifft.
Das Raumprogramm verteilt sich auf mehrere Funktionsbereiche: Wohnen, Kochen, Essen und Nebenräume im Erdgeschoss, Eltern-, Kinder- und weitere Nebenräume im Obergeschoss. Diese Funktionsbereiche wiederum wurden auf die drei Gebäudekuben verteilt und je nach Funktion und gewünschter Aussichtsachse zueinander verdreht. Neben der Form fällt die schwarze Fassade in den Blick, die sich jedoch dezent zurücknimmt. Um die hölzerne Außenfassade haltbarer zu machen, entschieden sich Bauherren und Architekten für diese schwarz verkohlte Holzfassade, basierend auf der traditionellen japanischen Technik Yakisugi (auch Shou sugi ban genannt).
Nicht nur bei der Fassade setzten die Architekten auf Holz: Die Kombination aus Massivholzelementen, Sichtbeton und Glas sowie Holzverkleidungen an der Außenfassade und im Innenraum verbindet sich zu einer wirtschaftlichen Hybridlösung mit größtmöglichem Gestaltungsspielraum. So entwickeln sich auch einige der Möbelstücke aus der Innenwandverkleidung heraus. Das Material Holz bildet ein zentrales Thema, das nicht nur den klaren und minimalistischen Eindruck unterstützt, sondern auch zu einem positiven Raumklima beiträgt und den Feuchtigkeitshaushalt reguliert.
Das Gebäude wurde auf einer tragenden und flügelgeglätteten Bodenplatte mit Betonkernaktivierung errichtet, die bereits als fertiger Sichtbetonboden ohne weiteren Belag genutzt werden konnte. Darauf wurde ein zweigeschossiger Holzrahmenbau gestellt, der im Erschließungskern durch eine Sichtbetonwandscheibe sowie eine farblich akzentuierte Treppe als besondere Eyecatcher inszeniert wird. Die Fassadenarbeiten, Innenwandverkleidungen sowie den kompletten Innenausbau übernahm der Bauherr (Schreinermeister mit eigenem Betrieb) selbst.
Wohnfläche: 200 m²
Grundstücksgröße: 1.091 m²
Bauzeit: 26 Monate
Bauweise: Holzbau
Energiekonzept: Eisspeicherwärmepumpe und Kaminofen
Fotos:
Lars Gruber
www.larsgruber.de
(Erschienen in CUBE Frankfurt 01|24)
