Transformation im Bestand
Ein ehemaliges Torwächterhaus aus dem Mittelalter wird zum modernen Wohnhaus
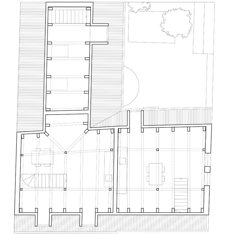
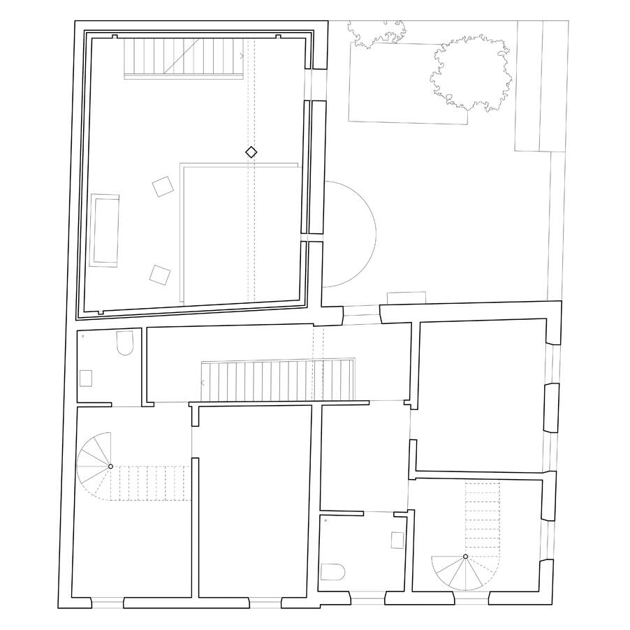
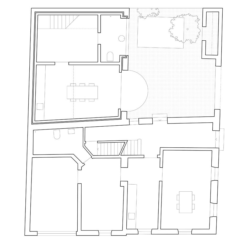
In der Altstadt von Ingolstadt hat das Büro Mühlbauer einen ehemaligen Stadt-Bauernhof aus dem 16. Jahrhundert in ein lichtdurchflutetes Wohnensemble verwandelt. Hinter der denkmalgeschützten Fassade des Thürwachterhauses entstanden im Wohnhaus drei Wohnungen und im ehemaligen Stall eine spektakuläre Loft-Wohnung – in enger Zusammenarbeit mit dem Denkmalschutz, mit viel Gespür für Substanz und Raum. Der Umbau zeigt, wie historischer Bestand nicht nur erhalten, sondern neu gedacht und subtil transformiert werden kann: Kunststofffenster wichen handgefertigten Holzrahmen, historische Bauelemente wurden bewahrt, ergänzt oder subtil interpretiert. Überliefert ist, dass um 1762 Ignaz Schießl, der Torwächter des nahe gelegenen Taschentorturms, hier Eigentümer war – daher auch der Name Thürwachterhaus. Der heutige Bauzustand geht im Wesentlichen auf das Jahr 1902 zurück, als das Wohnhaus um ein weiteres Geschoss aufgestockt wurde. Nach der umfassenden Transformation durch den Architekten Andreas Josef Mühlbauer – ehemaliger Stadtbaumeister von Eichstätt und seit 2000 freischaffender Architekt in Ingolstadt – in Zusammenarbeit mit seinen Söhnen Alexander und Andreas, zeigt sich das zweigeschossige Giebelhaus nun von außen zurückhaltend, mit hellgrünem, texturierten Putz, weiß gerahmten Fenstern und einem Gesims über dem Erdgeschoss. Im Inneren des wohl im 18. Jahrhundert angebauten Stadels wird es schließlich überraschend: Sichtbeton, rohe Materialien und gezielt gesetztes Licht schaffen hier eine klare, fast meditative Atmosphäre.
Der über zwei Geschosse hinweg geöffnete Raum verwandelt sich im ersten Geschoss in einen fast kontemplativen Bereich – halb Schreibstube, halb Coworking-Zone. Auch die funktionalen Bereiche im Erdgeschoss erfuhren besondere gestalterische Aufmerksamkeit: Der Koch-Essbereich öffnet sich nun lichtdurchflutet zum Innenhof. Ein Bad mit bodengleicher Dusche und kubischem Waschtisch tritt als reduzierte Raumskulptur in Erscheinung, während eine Wand aus Glasbausteinen das ehemalige Garagentor ersetzt und dem Raum ein diffuses Licht verleiht. Besonders eindrucksvoll ist die skulptural anmutende Betontreppe – kantig, roh und geradlinig. Ihre grafische Präsenz steht in spannendem Kontrast zur freigelegten Balkenlage unter dem Dach, wo das Schlafzimmer einen besinnlichen Platz gefunden hat. Abgerundet wird das Ensemble durch den kaum 20 m² großen Innenhof. Der Berner Landschaftsarchitekt Maurus Schifferli hat ihn in einen stillen „Hortus Conclusus“ verwandelt – mit Maulbeerbaum, Kletterhortensie und einem minimalistischen Liege- und Sitzbereich aus Beton.
www.instagram.com/bueromuehlbauer
Fotos:
Ralph Feiner
www.feinerfotografie.ch
(Erschienen in CUBE München 02|25)





