Ein Stück Umbaukultur
Weiterbauen heißt aus dem Bestand das Neue generieren
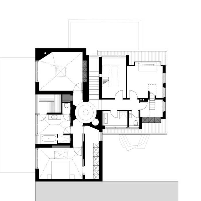
Der Ausgangspunkt für das neue Zuhause für die sechsköpfigen Familie eines Künstlers war ein Siedlungshaus mit Mansarddach samt üppig und dicht bewachsenem Garten. Drei verschiedene Dekaden prägen den Ort: Links vom freistehenden Haus aus den 1930er-Jahren liegt eine Blockrandschließung aus den 1970er-Jahren und rechts folgen zeitgenössische Reihenhäuser. Das Architekturbüro Reichwald Schultz & Partner meisterte die Herausforderungen mit Bravour: baurechtliche Auflagen, unterschiedliche Höhen im Gelände sowie Fassaden und Materialien verschiedener Bauzeiten. Die Villa in Zehlendorf ist ein leuchtendes Beispiel für ein bewusstes Weiterbauen, ein Stück Umbaukultur. Nach dem Abriss eines maroden Wintergartens konnte das zur Straße hin freistehende Haus erhalten und zum Garten hin mit einem Neubau ergänzt werden. Dadurch ist ein Eingangshof entstanden, der gleichzeitig als Küchengarten fungiert.
Betritt man von dort das erhöht liegende Erdgeschoss des Bestandes, führt vom Foyer mit einem Boden aus geschliffenem Asphalt eine Treppe zum gartenseitigen Wohnbereich hinab. Küche und Kamin spannen das weitläufige Raumkontinuum in Längsrichtung auf, während sich die großzügige Küche mit Kochinsel quer zwischen Vorgarten und Garten in den Raum stellt. Die über die ganze Breite verfahrbaren Schiebefenster öffnen den Lieblingsort der Familie zum Garten. Die scheinbar zufällig in der Betondecke verteilten Spezialleuchten, extrabreite Eichenholz-Dielen, der skulpturale Kamin mit Sitzbank und die großzügige Verbundenheit von Innen und Außen unterstreichen die besondere Atmosphäre des Raumes. Im Obergeschoss haben Elternschlafzimmer, Elternbad mit Sauna und ein Atelier jeweils eigene Walmdächer, um den Räumen Höhe und Eigenständigkeit zu geben. Ein kreisrunder, zentraler Raum mit Oberlicht erschließt alle Nutzungsbereiche des Anbaus und verbindet sie mit den Kinderzimmern im Altbau, die sich ebenfalls über Galerien in den Spitzboden erweitern. Der Weg in das Haus und durch das Haus ist eine differenziert entwickelte Komposition unterschiedlichster Raumerlebnisse. Die verschiedenen Materialien der Fassade wurden weiß geschlämmt, bestehende Ausbesserungen im Rauputz bewusst belassen. Der Neubau führt die Textur durch eine weißlackierte, grafisch anmutende Lattung und ebenfalls weiß geschlämmte Riemchen fort. Die signalgelben Brüstungen, die tiefblauen Fenster und die rot-weiß-gestreifte Markise geben dem Haus im Grünen eine sommerliche Heiterkeit, die von der präzise komponierten Gliederung der Fassade gefasst wird.
Wohnfläche: 262 m²
Grundstücksgröße: 947 m²
Planungs- und Bauzeit: 2016–2019
Bauweise: Hybridbauweise
Energiekonzept: EnEV 2016
Fotos:
Marcus Ebener
www.marcus-ebener.de
(Erschienen in CUBE Berlin 03|23)
