Remise Reloaded
Früher Handwerk – heute Büro und optisch ein Hingucker
Nur wenige wissen heute noch, was eine Remise ist. Früher waren sie Bestandteil städtischen Wohnens. In den Höfen der Häuser der Gründerzeit waren sie anzutreffen. Vorne wurde gewohnt, hinten hatten die Handwerker ihre Werkstätten. Ein Stück Architekturgeschichte, die der Vergangenheit angehört, denn es gibt nur noch wenige selbständige Handwerker oder sie wurden aus den Wohngebieten vertrieben.
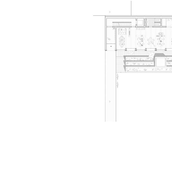
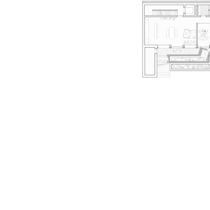
Mit einem Bauwerk am Prenzlauer Berg lassen Berliner Architekten Jan Wiese und Ralf Wilkening in einem Hinterhof, an dem früher schon eine Remise stand, eine neue, modernisierte und heutige Form einer Remise wiedererstehen. Welche Klientel, die sich dort ansiedeln könnte, kommt in Frage? Künstler eher nicht, die könnten sich das wohl kaum leisten. Nein, es sind Kreative aller möglichen Berufsgruppen aus der Computertechnologie, Grafik, Softwareentwicklung, Werbebereich etc. Eine Nutzungsmischung, wie sie die Bauherrschaft Suwelack SHC wünschte. Das Grundstück in der Immanuelkirchstraße liegt zwischen Greifswalder Straße und Prenzlauer Allee. Hier stand bis in die 1990er-Jahre im zweiten Hof die Ruine der alten Remise. Seit 2020 steht hier der viergeschossige Neubau. Drei Gewerbeeinheiten teilen sich 502 m². Da das Gebäude an der hinteren, nördlichen Ecke an eine Brandmauer grenzt, sind drei Seiten geschlossen. Nur die Vorderfront ist durchgehend bodentief befenstert. Ein Raster aus Lärchenholz unterteilt die Fensterfront. Jedes zweite kann per Drehflügel nach innen vollständig geöffnet werden. Französische Balkone bilden die Absturzsicherung.
Die tragende Struktur besteht aus Stahlbetonwänden. Die Decken sind aus einem Holzbetonverbundsystem. Vorgefertigte Holzträger liegen auf den ausgesparten Betonvertiefungen. Auf dieses Gerüst kommt eine Holzplatte und auf diese wiederum eine Betonschicht als Boden der nächsten Etage. Der Boden wird mit einer 10 cm dicken Betonschicht, einer Fußbodenheizung und einem Estrich „belastet“. In dem halb in der Erde versunkenen Erd- bzw Tiefgeschoss in das durch die Fenster noch genügend Tageslicht dringt, gibt es einen Gemeinschaftsraum, Besprechungsräume und eine Küche. Auf dem Flachdach gibt es ebenfalls eine gemeinschaftliche Dachterrasse, absturzgesichert mit dem gleichen feuerverzinkten Gitter, das auch für die französischen Balkone verwendet wurde.
Den Architekten, die bereits Wohnungen im Vordergebäude ausgebaut hatten, ist mit der Remise ein Kleinod in der Großstadt gelungen.
Fotos:
Simon Menges
(Erschienen in CUBE Berlin 01|22)
