Familienfreundliche Hochschule

Kita und Coworking in einem Neubau der Beuth Hochschule für Technik

_DSC8865_10_700pixel

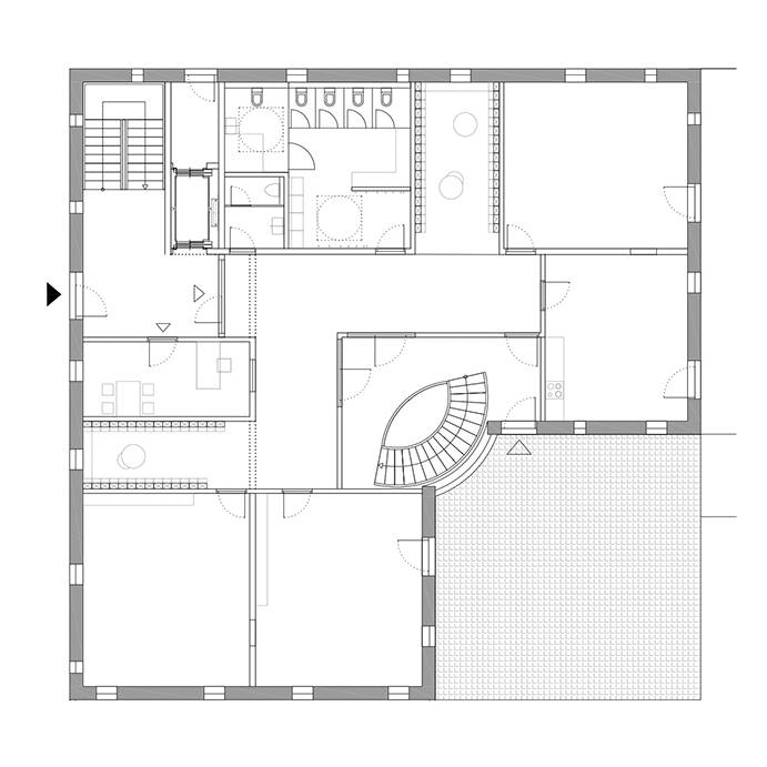
Das Haus Beuth der BHT, eine Hochschule mit 13.000 Studierenden im Bezirk Mitte, wurde nach den Plänen von Stadtbaurat Ludwig Hoffmann von 1908 bis 1910 am Zeppelinplatz im Wedding erbaut. Es hat einen quadratischen Grundriss, zwei Torgebäude standen – als ehemalige Lehrerwohnungen – vorgelagert direkt an den beiden Ecken in südlicher und in westlicher Richtung. Letzteres wurde im Zweiten Weltkrieg zerstört und hinterließ sozusagen ein „amputiertes“ Ensemble. Nun wurde das fehlende Eckgebäude von KRP Architekten wiederaufgebaut. Bauherren sind die BHT in guter Kooperation mit dem Studierendenwerk Berlin, welches neben der Kita in der BHT auch noch weitere Kitas in Berlin unterhält.

Auf insgesamt 2.279 m² Nutzfläche des fünfstöckigen Neubaus stehen in den ersten drei Geschossen sowie im Untergeschoss Plätze für 130 Kinder von Studierenden oder Beschäftigten der Hochschule zur Verfügung. In der ursprünglichen Kita waren es nur 48 Plätze. Auch in der Umgebung wohnende Eltern können ihre Kinder hierherschicken. Im Erdgeschoss findet sich im Eingangsbereich die Schnittstelle zwischen der Berliner Hochschule für Technik und dem Studierendenwerk Berlin. Im restlichen Geschoss sind Funktionsräume für die ganz Kleinen angeordnet. Die älteren Jahrgänge haben ihre Räume im 1. und 2. Obergeschoss. In den oberen beiden Geschossen sind 52 Arbeitsplätze als flexible Coworking-Spaces für die Hochschule entstanden. Eröffnung war im Sommer 2021 – coronabedingt ein Jahr später als ursprünglich geplant. Nun komplettiert der Neubau das vormals kriegsbedingt zerstörte Ensemble wieder.

Für die Kinder wurden umfangreiche Spielstätten im umliegenden Außenbereich vom Büro Dr. Gabriele Holst Landschaftsarchitekten angelegt. Im Gegensatz zum Bestandsgebäude hat der Neubau kein Walm-, sondern ein Flachdach. Die Fassadenorganisation nimmt durch die Prägungen in den Fensterbereichen Bezug auf das Raster des Hauptgebäudes. Die Fensterbreiten variieren von schmal über mittel bis hin zu breit. Die Gebäudehülle setzt sich aus einem Raster von 3 x 3 m in Betonhalbfertigteilbauweise und einer vorgehängten geschlämmten Ziegelfassade zusammen. Der Grundriss entspricht exakt dem gegenüberliegenden Eckgebäude: Einem L-förmigen Körper mit einer konvex gerundeten, verglasten Ecke in Richtung zum Hauptgebäude. Das neue Bauwerk ist ein Ausdruck einer familienfreundlichen Baupolitik.

www.kolbripke.de

Fotos:

Hanns Joosten
www.hannsjoosten.de



(Erschienen in CUBE Berlin 01|22)

 

Nothing found.

Ort der Begegnung

Das neue Pfarrheim Mariä Himmelfahrt in Miesbach prägt ein Kontrast aus Modernität und Tradition

Preziose unterm Dach

Ein Spitzboden in einem Mehrfamilienhaus in Essen-Rüttenscheid wird zum Vorzeigeprojekt

Vergangenheit & Zukunft

Modellprojekt zeigt, wie sakrale Bestandsarchitektur transformiert werden kann

Nothing found.

02_Cube_PRA_Thermohaus-Guben_15_700pixel

Thermohaus mit Klimahülle

Drei auf einen Schlag: Bestand erhalten – Platz verdoppelt – energetisch saniert

Hauptdarsteller Fassade

Wohn- und Geschäftshaus mit ganz besonderer Schauseite

RIAB_Bett2-0_Schlafzimmer_Gemu-tliches-Feeling_15_700pixel

Nachhaltig und funktional

Room in a Box bietet modulare Möbel aus Wellpappe

000_220630-LA-MartinJasper-0R0A9144-copy_10_700pixel

Weltweit aktiv

Wie das zu schaffen ist, erklärt Architekt Martin Jasper in diesem Podcast

Verjüngungskur

Eine gründerzeitliche Altbauwohnung wurde umgebaut und modern gestaltet

Hinterhofidylle

Aus einem verwahrlosten Hinterhof wird ein neuer grüner Lebensraum

BTV_Altbau_15_700pixel

Beethoven in Farbe

Farbenfrohe und zweckmäßige Ertüchtigung eines denkmalgeschützten Gymnasiums

BLOOMGARDEN-Ebener-5634-2_46_700pixel

Ein Stück Umbaukultur

Weiterbauen heißt aus dem Bestand das Neue generieren