Leben unter freiem Himmel
Ein 1930er-Jahre Haus wird durch behutsame Sanierung und moderne Erweiterung zu neuem Leben erweckt
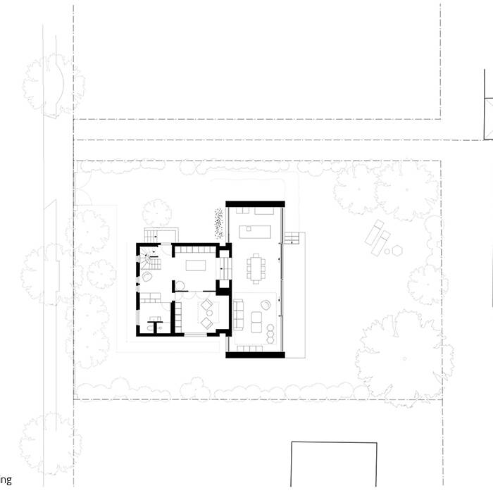
Die Bauherren hatten sich ein Haus aus den 1930er-Jahren am Stadtrand gekauft. Bewusst fiel die Wahl auf ein älteres Haus „mit Charakter“, weil ein Neubau dagegen irgendwie „seelenlos“ erschien. Rasch stellte sich heraus, dass das Haus zu klein ist. So entstand die Idee, einen Umbau zu planen, in dem die Küche untergebracht werden sollte. Freunde empfahlen das Berliner Architekturbüro Bonauer Bölling und man machte sich gemeinsam ans Planen. Die Vision vom Wohnen unter freiem Himmel und die Idee, den Altbau harmonisch zu ergänzen, prägte den Entwurf maßgeblich. Der moderne Anbau wurde zum Lebensmittelpunkt und sanften Übergang des behutsam sanierten Altbaus in den Garten. Das Ergebnis ist überwältigend – da wo zuvor eine kleine Veranda die Schnittstelle zum Garten bildete, steht jetzt ein minimalistischer Querriegel aus Sichtbeton auf der Gartenseite mit einer Größe von 90 m², der dem ursprünglichen Haupthaus bis knapp unter das Obergeschoss reicht. Die Vorderfront ist mit mittigen raumhohen Schiebefenstern vollverglast, die im geöffneten Zustand völlig in den Seiten verschwinden und so in den warmen Jahreszeiten eigentlich einen Wohnraum im Feien kreieren. Feingliedrige Profile aus Lärchenholz und ein extensives Gründach rahmen den Blick in den Garten. Die Fassade besticht durch liebevolle Details, präzise Fügung und hochwertige Verarbeitung. Die Hausherrin schildert, wie schön es ist, jede Jahreszeit so zu erleben, als wäre man mittendrin. Die Küche liegt Richtung Nordosten, der Wohnbereich im Südwesten und der Essbereich in der Mitte. Die Glasfront und Terrasse zum Garten geht gen Süden, sodass man im „Glashaus“ den ganzen Tag Sonne hat. Ein wunderschöner Terrazzoboden wurde im Anbau verlegt. Er harmoniert mit den geschreinerten Möbeln aus Eiche. Auch der Küchenblock mit seiner Arbeitsfläche aus kaltgewalztem Edelstahl ist ein Kunstwerk für sich. „Hier haben sich viele Leute viele Gedanken gemacht“, kommentiert Architekt Bonauer sein Werk. Man sieht es an vielen kleinen Details, an der Sorgfalt, mit der hier vorgegangen wurde.
Freilich zog der Anbau auch einen Umbau des Hauses nach sich. Vier breite Treppenstufen verbinden Alt- und Neubau. Die gesamte Raumfolge wurde umdefiniert und entsprechend umgebaut. Küche und Wohnzimmer wurden ausgelagert und im Innern entstand ein großzügiges Entree mit maßgeschneiderter Garderobe, Bibliothek und Kamin sowie ein neues Gästezimmer mit Bad, das auch als Musik- oder Fernsehzimmer genutzt wird. Das bisher unausgebaute Walmdach ist jetzt ein Raum mit offenem Grundriss für verschiedene Nutzungen – wie etwa ein Homeoffice für den Hausherrn.
www.bonauerboelling.com
Wohnfläche: 184 m² zzgl. 80 m² im UG und DG
Grundstücksgröße: 819 m²
Bauzeit: 17 Monate
Bauweise: Stahlbeton Massivbau mit hinterlüfteter Holzfassade
Energiekonzept: Energetische Sanierung des Altbaus mit Austausch und Erneuerung der haustechnischen Anlagen sowie Ertüchtigung der historischen Fenster und Dach im Bestand; Neubau mit hochgedämmter Außenhülle im Passivhausstandard, extensivem Gründach und Flächenheizung
Fotos:
Markus Bonauer und Michael Bölling
(Erschienen in CUBE Berlin 02|21)










