Offenes Wohnen
Wohnanlage als Neuinterpretation des Berliner Blocks
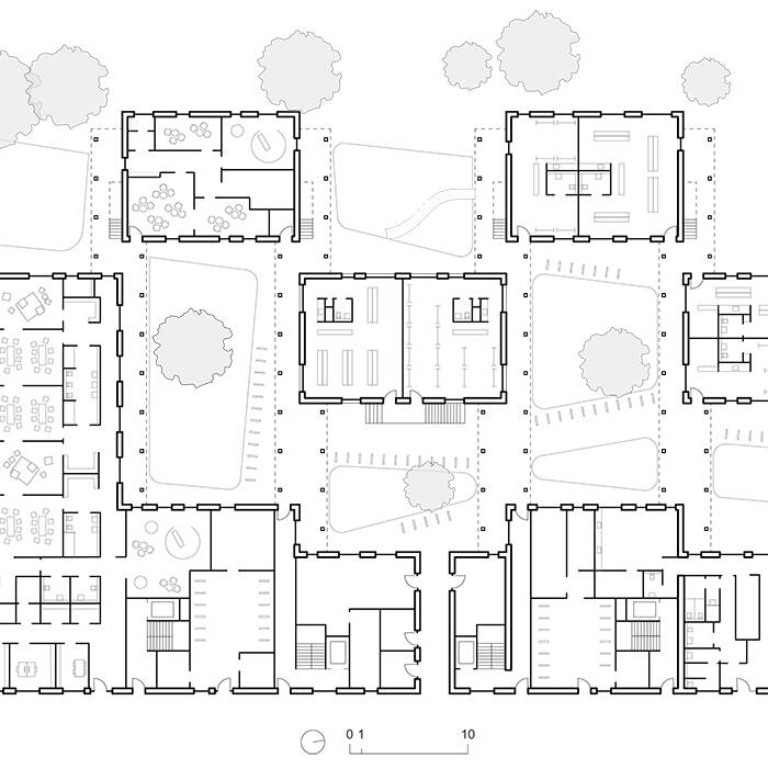
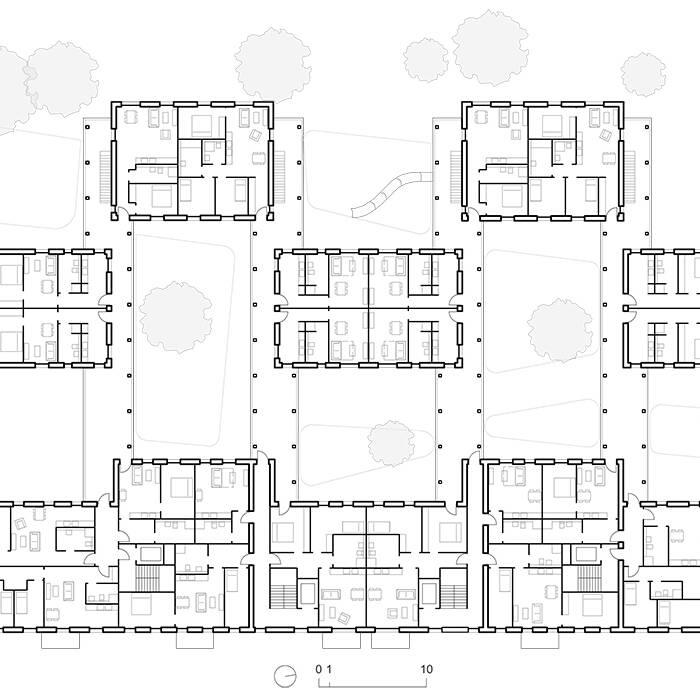
Ein Bauensemble, südlich der Spree an der Ackerstraße gelegen, interpretiert den typischen Berliner Block neu. Bestehend aus einem Riegel an der Arcostraße und fünf Einzelbaukörpern als Hinterhäuser mit insgesamt 111 Wohnungen, wovon die Hälfte der Mietpreisbindung unterliegt, vereint es in den Erdgeschossen im „Hof “ Kleingewerbe und eine Kita.
Im Vergleich zu den am Ende des 19. Jahrhunderts stadtbildprägenden Berliner Bauten ersetzte das Berliner Architekturbüro Bruno Fioretti Marquez, dessen Entwurf sich bei dem Wettbewerb durchsetzte, die Seitenflügel durch parallellaufende Stege. Diese dienen als Erschließung der Wohnungen, wodurch ein zusammenhängendes Ensemble mit einem hohen Maß an Durchlässigkeit entstanden ist. Mit der der Realisierung des Bauvorhabens wurde das Hamburger Büro blrm – damals noch „blauraum” – im Rahmen einer Ausschreibung der städtischen Wohnbaugesellschaft Gewobag beauftragt. Die Grundidee der Neuinterpretation besteht darin, die strenge, geschlossene Form des Berliner Blocks – einem kasernenartigen Geviert – aufzubrechen. So ist der straßenseitige Riegel der neuen Form eine Aneinanderreihung aus fünf miteinander verbundenen Einzelhäusern unterschiedlicher Höhe mit vier bis sechs Geschossen. Dahinter – im Inneren des Grundstücks – stehen versetzt zueinander fünf Einzelhäuser – anstelle der früheren Seitenriegel. Der Riegel an der Ostseite zur Arcostrasse hin schützt die fünf rückwärtigen Gebäude vor Straßenlärm. Dabei steckte die Idee dahinter, dass die „Fronthäuser” scheinbar konventionell mit Treppen und Aufzügen zugänglich sind, vom 1. bis 4. Obergeschoss aber Laubengänge zu den Wohnungen in den Gartenhäusern führen. Auf der frei bleibenden Grundstückfläche konnten so Grasflächen sowie ein Spielplatz realisiert werden, zu dem als besonderer „Gag” eine metallene Rutsche vom 1. Stock zur Sandfläche führt. Die Lösung mit den Laubengängen vermittelt eine lose und luftige Verbundenheit der Häuser – sie fördern aber auch die Kommunikation der Bewohner:innen untereinander und dienen als Gemeinschaftsflächen.
Hier gelang eine erfrischend untypische und aufgelockerte Art des städtischen Wohnens mit Begegnungsmöglichkeiten im Garten oder auf den Terrassenbändern.
Fotos:
Joshua Delissen
www.joshuadelissen.de
(Erschienen in CUBE Berlin 02|24)

