Schwarze Schatullen
Zwei Häuser in Stechlin greifen die Urform eines Hauses auf
Auf einem zur Bebauung freigegebenen Grundstück der Gemeinde Neuglobsow entstanden zwei Wochenendhäuser. Durch ihre versetzte Anordnung fügen sie sich in die ortstypische lockere Bebauungsstruktur zwischen dem Großen Stechlinsee und dem kleineren Dagowsee ein und schaffen gleichzeitig geschützte Außenräume für beide Häuser. Die ruhige, kaum besiedelte Gegend mit ihren weiten Waldgebieten und unzähligen Seen haben schon Literaten stimmungsbildend ihren Werken unterlegt, der Bekannteste ist sicherlich Theodor Fontane mit seinem letzten Roman „Der Stechlin“.
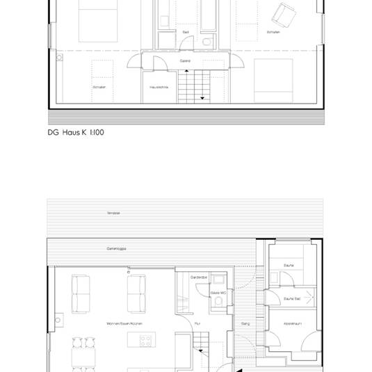
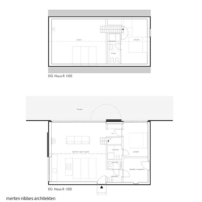
Das Erscheinungsbild der beiden Häuser ist das zweier mehr oder minder geschlossener Schatullen, die gänzlich von einer schwarz geölten, horizontalen Holzverschalung aus Lärchenholz ummantelt sind. Die Kubatur, die die Berliner merten nibbes architekten in ihrem Entwurf entwickelten, folgt den Auflagen der Baubestimmungen vor Ort: „Die Vorgabe der Gemeinde ,eingeschossige Bebauung mit geneigtem Dach‘ wurde in die Urform eines Hauses mit einem hohen und steilen Dach übersetzt, um den relativ kleinen Häusern Prägnanz und Ausdruckstärke zu geben. Beide Baukörper weisen dabei das exakt gleiche Profil auf und unterscheiden sich nur in ihrer Länge“, heißt es in der Projektbeschreibung der Architekten. Die Häuser sind in Holzständerbauweise errichtet. Die recht unterschiedlichen Wünsche der Bauherren an das Raumprogramm ihrer Häuser wurden in den beiden variierenden Grundrissen umgesetzt. Haus K – das längere der beiden – ist im Erdgeschoss durch einen Gang in zwei Zonen geteilt: In ein Wohnhaus und ein Saunahaus. Das gesamte Erdgeschoss wird vom großen Wohnraum dominiert, der die Funktionen Kochen, Essen und Wohnen integriert. Der Zugang zum Garten ist eine Loggia, die sich über die gesamte Länge erstreckt. Im Dachgeschoss gibt es zwei Schlafräume und ein Badezimmer. Große, in die Dachschräge eingesetzte Fenster erhellen das Geschoss. Alle Zugänge heben sich farblich vom Rest des Hauses ab, hier ist das Holz unbehandelt hell belassen im Gegensatz zur schwarz geölten Lattung der Hülle. Haus R verzichtet auf den kompletten Ausbau des Daches zugunsten eines großen Luftraumes über dem Wohnraum im Erdgeschoss. Im Dachgeschoss befinden sich lediglich Schlaf- und Badezimmer. Die Schiebeläden des Hauses sind so ausgebildet, dass es sich nach außen abschotten kann, wenn es eine Zeit lang nicht bewohnt wird. Im geöffneten Zustand ragen die Schiebeläden auf beiden Seiten über die Grundfläche des Hauses hinaus und bilden die verlängerte Rückseite der Terrasse. Der straßenseitige, unauffällige Eingang führt direkt in den lichtdurchfluteten Wohnraum mit seiner raumbreiten und -tiefen Fensterfront und anschließender Terrasse.
Fotos:
Tomek Kwiatosz 
www.architekturfotograf.net
(Erschienen in CUBE Berlin 03|20)



























