Gemeinsam wohnt man besser
Moderniserung des Studentendorfs Sigmunds Hof
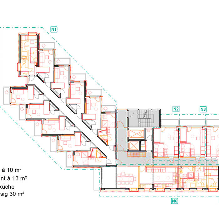
Im Zuge der Sanierung und energetischen Ertüchtigung des gesamten denkmalgeschützten Studentendorfs Siegmunds Hof in Tiergarten wurde auch das Hochhaus, das Wohnhaus S12 – Mittelpunkt und Höhepunkt der Anlage, 2018 fertiggestellt. Das ursprüngliche Gebäude entstand 1961 nach Plänen von Klaus H. Ernst. Seit der Sanierung trägt es den Namen „Haus der Teamplayer“. Es wurde kernsaniert und modernisiert. Schon in den späten 1950er- und frühen 1960er-Jahren, als die Anlage entstand, versuchte man, einem Ideal des gemeinschaftlichen Zusammenlebens der Studenten zu entsprechen. Dies war auch nun der Ansatzpunkt für das Architekturbüro die Baupiloten unter der Leitung von Susanne Hofmann, der Gründerin der Baupiloten, und Marlen Kärcher, der Projektleiterin, zusammen mit einer Gruppe von Studenten. Bei einem eigens für dieses Projekt im Auftrag des Studentenwerks entwickelten Partizipationsverfahren wurden die Studenten als Experten für das gemeinschaftliche Wohnen nach ihren Bedürfnissen, Vorlieben und Wünschen, kurz, wie sie gerne wohnen würden, befragt. Die Baupiloten entwickelten aus der Auswertung der Interviews ein Wohnkonzept für das zwölfgeschossige Hochhaus.
Da das Haus aufgeständert ist, gibt es kein Erdgeschoss. Der Eyecatcher ist die leuchtende Küche im 1. Obergeschoss. Die Küchenbox ist in unterschiedlichen Farben beleuchtet und könnte abends durchaus ein Treffpunkt für die gesamte Wohnanlage sein. Im Gegensatz zu den früheren Einzelzimmern, die an langen Fluren lagen, gibt es jetzt auch Gemeinschaftswohnungen mit bis zu neun BewohnernInnen. Hier teilen sich die NutzerInnen Küche, Bäder und WCs. Auch an Barrierefreiheit wurde gedacht und es gibt zwei Zimmer speziell für Rollstuhlfahrer sowie einige Einzelapartments, die mit Licht- und Akustiksignalen für seh- und hörbehinderte Studenten eingerichtet sind. Nicht alle, aber viele Zimmer verfügen über einen Balkon. Im 12. Stock stellt eine Wohnung für vier Bewohner sozusagen das Sahnehäubchen dar, denn von hier oben hat man einen tollen Blick über die ganze Stadt. Die Treppen und Teile der Zimmer sind in kräftigen Farben gehalten. Auch an Außenanlagen mit Tischtennisplatten und Sitzgelegenheiten fehlt es nicht. Im Untergeschoss gibt es ein Wasch-Café, eine Fahrradwerkstatt sowie die Büros der Tutoren und der studentischen Selbstverwaltung. Die Leistung der Baupiloten verdient großes Lob, wie der Ansturm auf die Zimmer belegt. Und die Mieten sind relativ günstig, sodass bei der großen Nachfrage nach Zimmern die Warteliste ziemlich lang ist – derzeit sind es 18 Monate.
Fotos:
Jan Bitter
www.janbitter.de
(Erschienen in CUBE Berlin 01|22)
