Nachhaltig flexibel

Ein Wohn- und Atelierhaus überzeugt durch seine variierbaren Raumstrukturen

MarcEller_high-res-13_700pixel

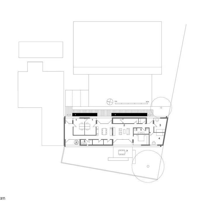
In einem Hinterhof im Düsseldorfer Süden befindet sich das Wohn- und Ateliergebäude des Düsseldorfer Architekten Marc Eller. Exakt eingepasst zwischen einer dreigeschossig ausgeführten straßenseitigen Wohnbebauung, einer Grenzmauer und einem Wasserschutzgebiet, das auf dem Gelände einer benachbarten Schule liegt. Der langgestreckte Bungalow führt vor, wie Wohnen und Arbeiten sich über eine offene Raumstruktur zu einem flexiblen Miteinander verbinden lassen.

Über eine Länge von 30 m erstreckt sich der eingeschossige, kellerlose Baukörper, der in seiner niedrigen Höhe auf die umliegende Bebauung und die entsprechenden Höhenvorgaben reagiert. Der langgestreckte Bau kreiert so einen vorderen halböffentlichen Innenhof und einen privaten Gartenbereich, der von einem dichten Baumbestand und einem Teich geprägt ist. Entsprechend dieser Zonierung sind auch die Innenräume – je nach Grad der Privatheit – nach vorne oder nach hinten orientiert. Über zwei separate, von der Straße aus direkt erreichbare Zugänge wird einerseits der Wohnbereich, andererseits das Atelier erschlossen. Beide liegen sich an den Enden des Gebäudes diametral gegenüber. Jede der Nutzungen bildet in sich dabei weitgehend offene Raumfolgen aus, die in der Mitte des Gebäudes in den vorgelagerten Terrassen zusammenfinden. Räume mit erhöhtem Bedarf an Intimität, wie Schlafzimmer oder Bad, aber auch Funktionsräume wie Abstellräume oder Technik werden ferner in einzelnen Baukörpern zusammengefasst, die ebenfalls durch offene Raumfolgen miteinander verbunden sind. Über Schiebetüren lassen sich dabei verschiedene Raumgruppen zusammenlegen oder aber voreinander trennen. So ist gewährleistet, dass die Räume flexibel und elastisch auf den aktuellen individuellen Bedarf reagieren.

Sowohl Wände als auch Decken und Böden wurden in rau belassenem Sichtbeton ausgeführt. Durch die Holzvertäfelung, die sich von außen in den Innenbereich zieht, verschmelzen Innen- und Außenraum zu einem Kontinuum. Beide Materialien zusammen, der rohe kalte Beton und das warme, nur mit einer Lasur behandelte Holz, kommen zu einem Gleichgewicht und strahlen Beständigkeit und Wärme aus. Außerdem lassen sie sich – sollte irgendwann einmal später der Rückbau des Gebäudes anstehen – sortenrein voneinander trennen und recyceln. Flexibilität bestimmt nicht nur den Grundriss und die Nutzungen des Wohn- und Atelierhauses, sondern auch die Gebäudetechnik. Die gesamte Steuerung von Heizung und Licht erfolgt funkgesteuert und kann somit individuell an die sich verändernden Bedürfnisse angepasst werden. In einer Funkzentrale kann der Energie- und Wasserverbrauch den Lebensgewohnheiten entsprechend angepasst, überwacht und langfristig verfolgt werden. Das Regenwasser wird in zwei Wasserbecken aufgefangen und zur Gartenbewässerung genutzt, wodurch wertvolles Trinkwasser gespart werden kann. Gleichzeitig führen die Wasserbecken zu einem besseren Mikroklima und sind Lebensraum für viele Insekten, Pflanzen und Fische.

www.atelier-eller.de

Wohn- und Gewerbefläche: 200 m²
Grundstücksgröße: 650 m²
Bauzeit: 2017–2018
Bauweise: Massivbauweise
Energiekonzept: Luftwärmepumpe

Fotos:

Simone Augustin
www.simone-augustin.de

(Erschienen in CUBE Düsseldorf 02|21)

Architekten:

Marc Eller Architekten
www.atelier-eller.de

Schreiner:

Holzbau E. Karl
www.holzbau-karl.com

Freianlagen:

Meyers & Schwarze Garten und Landschaftsbau
www.meyers-schwarze.de

Sanitär:

Elsner Haustechnik
www.elsner-beregnungstechnik.de

Schlosser:

H&T Treppen und Metallbau
www.ht-treppen.de

Fenster:

Schüco
www.schueco.de

Heizung:

Tecalor
www.tecalor.de

Schalter, KNX, Homeserver:

Merten
www.merten.de

Armaturen:

Grohe
www.grohe.de

Sanitär (Keramik):

Alape
www.alape.com

Nothing found.

Nachhaltige Metamorphose

Das Büroensemble „Lyght“ in Golzheim erweitert und revitalisiert den Bestand aus den 1970er-Jahren

Harmonisch eingefügt

Neubau-Ensemble wahrt den historischen Bezug und entwickelt eigene Identität

Traditionell und Modern

Traditionell und Modern

Massivholzhaus ist der Publikumsliebling beim Rosenheimer Holzbaupreis

Nothing found.

2_Exterieur_Perspektivische-Ansicht_15_700pixel

Einmal Mond und zurück

Ein Hotel holt Space-Age-Feeling in eines der markantesten Hochhäuser der Stadt

Reduce, reuse, recycle

Ein Papierhersteller in Benrath setzt im Office Design auf nachhaltige Wiederverwendung

1_15_700pixeluyKKH4C4CceGu

Praxis mit Lounge-Atmosphäre

Oralchirurgie am Rathaus in Velbert setzt auf entspanntes Ambiente

Bentley-Bentayga-Hybrid-09_19_700pixel

Willkommen in der Zukunft

Mit dem EXP 100 GT und dem Bentayga Hybrid zeigt Bentley den Weg in die E-Mobilität

2-KV_0215_b_15_700pixel

Nachhaltig zwischen Bäumen

Küche, Ess- und Wohnbereich bilden das kommunikative Zentrum des Hauses.

Die-klare-k_rperhafte-Architektur-der-Mixed-Use-Immobilie-wird-durch-skulpturale-Einschnitte-gegliedert_15_700pixel

Öffentlich und großzügig

Der neue Bürohauptsitz von HPP im Medienhafen schafft Räume für agiles, kreatives Arbeiten

_J-Rolfes-Joisten200122-019-ret2-sb-A5_15_700pixel

Reduziert und doch detailreich

Eine Eigentumswohnung in Benrath beeindruckt durch ihre hochwertige Ausführung