Stimmungsvoll inszeniert

Ein Wohnaltbau in Neuss wird modernisiert und einfühlsam umgestaltet

Regal2_15_700pixel

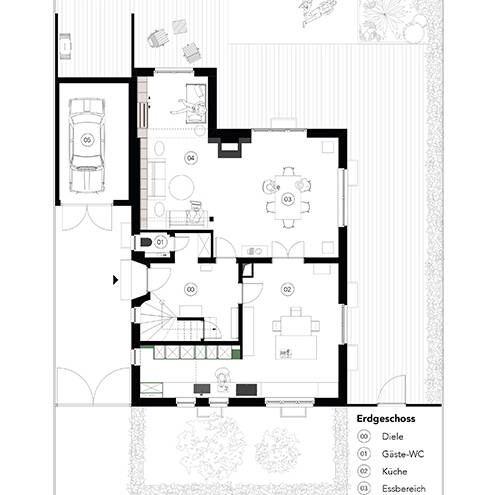
Alles sollte „anders“ werden – die Bauherrin, die eine Immobilie erworben hatte, wollte das Haus aus den 1930er-Jahren am liebsten von Kopf bis Fuß umgestalten. Vor allem sollten attraktive, individuelle Räume mit einem durchgehenden Gestaltungskonzept entstehen, das eine warme wohnliche Atmosphäre, aber auch genügend Stauraum schafft. Die zahlreich vorhandenen antiken Möbel, Leuchten und Bilder sollten dabei in die Raumgestaltung miteinbezogen werden. Das Architektur- und Innenarchitekturbüro KuDo aus Krefeld, das aufgrund bereits vorangegangener Projekte mit der Modernisierung des Hauses beauftragt wurde, gestaltete die Räume in abgestimmten Farbnuancen und mit Hingabe für Details.

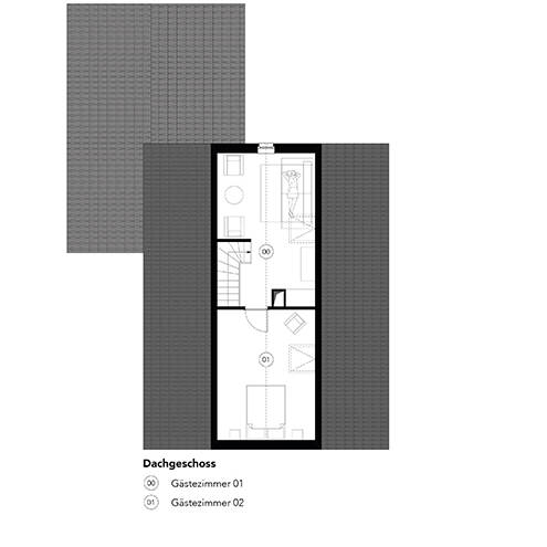
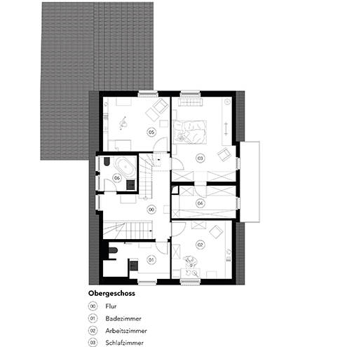
Größte Herausforderung des Umbaus, der die Sanierung des Daches und der Haustechnik genauso umfasste wie das Interieur, war die vorhandene Raumaufteilung, die aus Budgetgründen beibehalten werden sollte. Lediglich die beiden Bäder wurden vollständig entkernt und komplett neu entworfen – die großformatigen Feinsteinfliesen in Marmoroptik, die in leichtem Rosa gefassten Holzoberflächen und verspielten pastellfarbenen Glasleuchten werden dabei mit matt schwarzen Armaturen und Griffmulden kontrastiert. Die Erhaltung der Raumstruktur machte zugleich eine Vielzahl von individuellen Möbelplanungen notwendig: So ließen minimale Wandänderungen im Eingangsbereich Platz für einen Garderobeneinbauschrank entstehen. Das vorhandene Geländer der Eichentreppe wurde entfernt und durch einen filigranen Raumteiler ebenfalls aus Eiche ersetzt, der aus der Treppe ein architektonisch raumgestaltendes Element macht. Ähnlich wurde mit der Dachgeschosstreppe verfahren, deren nicht mehr zeitgemäßes Metallgeländer mit einer weiß lackierten MDF-Holzkonstruktion ummantelt wurde. In der Küche wurde die frühere, nur schlecht zu nutzende Speisekammer entfernt. Die vorhandenen Hochschränke bedurften lediglich neuer Fronten – ihr Dunkelgrün harmoniert gut mit dem Eichenfußboden und dem antiken Geschirrschrank. Die neu integrierte Küchenzeile orientiert sich in ihrer Aufteilung an den Fensteröffnungen. Im Wohnzimmer findet die umfangreiche Bibliothek der Bauherrin in einer neuen Regalwand Platz – mit einer kaminroten Schiebetür, die den Fernseher verbirgt. Das Beleuchtungskonzept aller Räume basiert auf einer Grundbeleuchtung mit Ein- und Aufbauspots. Gezielt platzierte Pendel- und Wandleuchten – neu und antik – erzeugen eine stimmungsvolle Beleuchtung.

kudo-architektur.de

Fotos:

Julia Dolle, Bijan Gies

(Erschienen in CUBE Düsseldorf 02|22)

Architekten:

Kudo Architektur
kudo-architektur.de

Abbruch, Trockenbau und Fliesenarbeiten:

Klaus Schmitz, Stuckateur-Meister
www.schmitz-stuck.de

Heizung, Sanitär:

Gustav Müller
www.gustavmueller.com

Elektro:

Elektro Arnold
www.elektrotechnik-arnold.de
epa elektrotechnik
www.epa-elektro.de

Lichtplanung:

elan Beleuchtungs- und Elektroanlagen
www.elan-gmbh.de

Maler:

Idris Kartal Maler- und Lackierermeister
www.maler-kartal.de

Tischler:

Dieter Stein HolzDesign
www.stein-holzdesign.de
Friedrich Dopheide Holzbearbeitung
www.dopheide-ohg.de

Parkett:

Parkett Pellinger
www.parkett-pellinger.de

Metallbau:

Stahl u. Metallbau Lazar Serafimovski
stahl-u-metallbau-gmbh-lazar.business.site

Klappläden:

Franz Busch
www.markisen-busch.de

Sicherheitstechnik:

alog-Alarmanlagen
www.alog.de

Außenanlagen:

Batatina
www.batatina-der-gartenprofi.de

Leuchten:

Catellani & Smith
www.catellanismith.com
Lumiparts
www.lumiparts.nl
Prediger
www.prediger.de       

Heizung:

Vaillant
www.vaillant.de

Schalter, KNX, Homeserver:

Gira
www.gira.de   

Küchengeräte:

Berbel
www.berbel.de
Neff
www.neff-home.com
Miele
www.miele.de

Armaturen:

Dornbracht
www.dornbracht.com
Blanco
www.blanco.com

Sanitärkeramik:

Kaldewei
www.kaldewei.de
Vallone
www.vallone.de
Catalano
www.catalano.it

Nothing found.

Preziose unterm Dach

Ein Spitzboden in einem Mehrfamilienhaus in Essen-Rüttenscheid wird zum Vorzeigeprojekt

Vergangenheit & Zukunft

Modellprojekt zeigt, wie sakrale Bestandsarchitektur transformiert werden kann

Nachhaltige Metamorphose

Das Büroensemble „Lyght“ in Golzheim erweitert und revitalisiert den Bestand aus den 1970er-Jahren

Nothing found.

COR_Conseta55_Kiesel_RGB_700pixel

Happy Birthday

Das COR Conseta Sofa feiert bereits den 55. Geburtstag

AOK-Haus-Mo-nchengladbach_-c-kplus-konzept_26_15_700pixel

Flexibel und multifunktional

Das AOK-Haus in Mönchengladbach ist Vorreiter eines zeitgemäßen Bürodesigns

200317_BOE_Portra-t-DBS_700pixel

Der Immobilienmakler 4.0

Im Interview erläutert die Maklerin, wie das Berufsbild von digitalen Geschäftsprozessen profitiert und sich auch in Corona-Zeiten gut behaupten…

10_Reitz14_15_700pixel

Tradiertes Übersetzen

Ein Familiendomizil wird mit Respekt vor dem Bestand modernisiert

Nachhaltige Metamorphose

Aus einem Showroom-Center in Golzheim wird ein elegantes Bürogebäude

20220401_111024_56656-HDR_15_700pixel

Blick für das Wesentliche

Aufgeräumter, moderner Einrichtungsstil stellt die Highlights in den Fokus

_SCH8542_HighRes_AdobeRGB_19_700pixel

Mäander mit Dachkantine

Ein Armaturenhersteller verknüpft Büros, Showroom und Lager in seiner Deutschland-Zentrale

28_1_15_700pixel

Vielschichtiger Monolith

Eine Friedhofskapelle in Monheim kreiert einen ausdrucksvollen Trauerraum