Umbauter Kunstraum
Luftig und schlicht hält die Architektur die Balance
Kunst als Teil der Architektur zu betrachten, ist keine neue Erfindung. Der Bund legt gar fest, dass bei öffentlichen Bauvorhaben ein Anteil von bis zu anderthalb Prozent der Bausumme für Kunst am Bau verwendet werden soll. Im Privaten freilich gibt es diese Vorschrift nicht. Umso mehr dürfen sich Kunstschaffende freuen, wenn Bauherren aus eigenem Antrieb investieren, aus der Begeisterung für einen bestimmten Künstler, eine Kunstrichtung oder allgemein für bildende Kunst heraus. Eine Möglichkeit, Kultur wieder stärker in den Alltag zu integrieren und damit auch die Kunstschaffenden als wertschöpfende Mitglieder der Gesellschaft zu betrachten. Für Architekten entsteht dabei die schöne Aufgabe, zwei kreative Stränge miteinander zu verknüpfen und ein gebautes Gleichgewicht entstehen zu lassen. Einer solchen Aufgabe standen Kröger-Daniels Architekten gegenüber, als sie für einen Bauherrn ein neues Zuhause für seine Familie und die Kunst eines von ihm hochgeschätzten Malers entwerfen sollten. „Wir haben die Architektur hier fast schon um die Kunst herum gebaut“, so Architektin Katharina Kröger-Daniels.
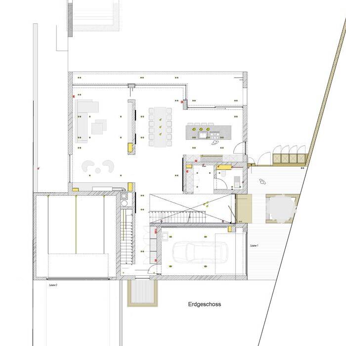
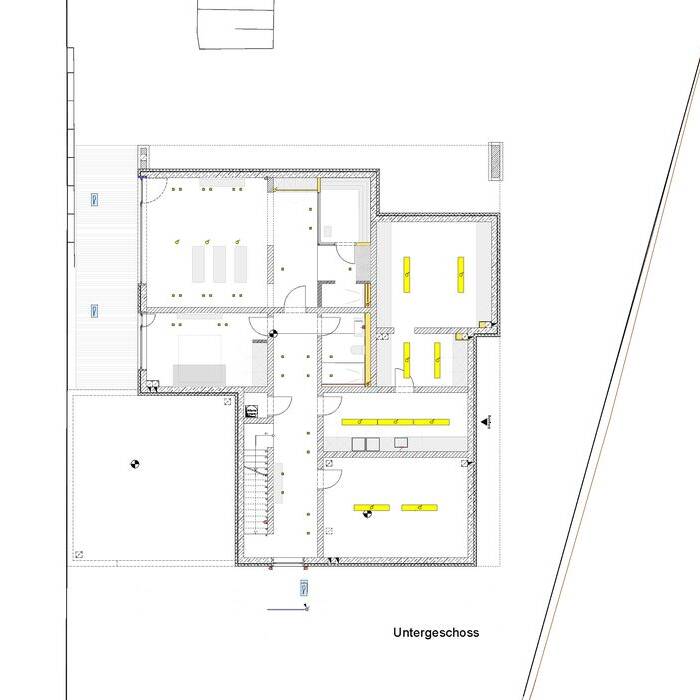
Fast museal zeigt sich das zum Straßenraum überwiegend geschlossene Eckgebäude. Rings ummauert, erhält das Grundstück seine Privatheit trotz der exponierten Lage. Zum geschützten Garten hin öffnen sich die Räume, lassen die Außenwelt und das Licht tief in das Innere hinein. Trotz der Größe des Gebäudes achteten die Architekten auf kurze Wege, verbinden Räume in logischer Abfolge. So geht es vom Wellnessbereich im Untergeschoss, der sich um einen Lichthof gruppiert, in nur wenigen Schritten zum Pool. Dieser streckt sich tief in den Garten, gibt dem rechteckigen Wohngebäude eine zusätzliche Richtung.
Die Architektur steht hier keineswegs in Konkurrenz zur Kunst, hält sich vielmehr zurück, öffnet sich, gibt Raum frei. Den füllen im zweigeschossigen Eingangsbereich laute, fast schrille Bilder, denen sich Besucher wie Bewohner nicht entziehen können. Gerade die klare Ruhe der Architektur ist es, die hier ein angemessenes Gegengewicht erzeugt, die Balance hält und einen Ausgleich herstellt. Streng an manchen Stellen, spielerisch an anderen. Glatt, grau etwa der Spachtelboden im Erdgeschoss, die Räuchereiche für Einbauten und den Boden des Obergeschosses. Glatt auch der Granit, der jedoch mit seiner lebhaften Maserung Bezug auf die Gemälde nimmt. Immer wieder taucht er auf, sei es in der Kaminwand, in der Kücheninsel oder im Bad. Gerade hier bricht die runde Form des Spiegels die geordnete Dominanz der klaren Linienführung und wird zum Blickfang des Elternbereichs.
„Die Zusammenarbeit zwischen dem Bauherrn, meiner Mitarbeiterin Aline Ackermann und mir war von Schnelligkeit geprägt“, erinnert sich Kröger-Daniels an die Zeit auf einer, wie sie betont, unverkrampften Baustelle. Ein gewisser lässiger Unterton ist auch der fein abgestimmten Innenausstattung anzumerken, den Designerleuchten etwa oder den filigranen, fast zerbrechlich wirkenden Stühlen des Esstischs. Gemeinsam mit Kunst und Architektur ergibt sich damit das runde Gestaltungskonzept. Für ein Wohnhaus, welches auch durch seine moderne Haustechnik als rundum smart bezeichnet werden kann.
Wohnfläche:
580 m²
Grundstücksgröße:
1.200 m²
Bauzeit:
12 Monate
Bauweise:
Massivbauweise
Energiekonzept:
Kontrollierte Wohnraumlüftung mit Fußbodenheizung zum Wärmen und Kühlen
Fotos:
Constantin Meyer
www.constantin-meyer.de
(Erschienen in CUBE Köln Bonn 01|21)
