Heitere Gelassenheit

Ein Doppelhaus wurde behutsam in das üppige Grün des Grundstücks eingefügt

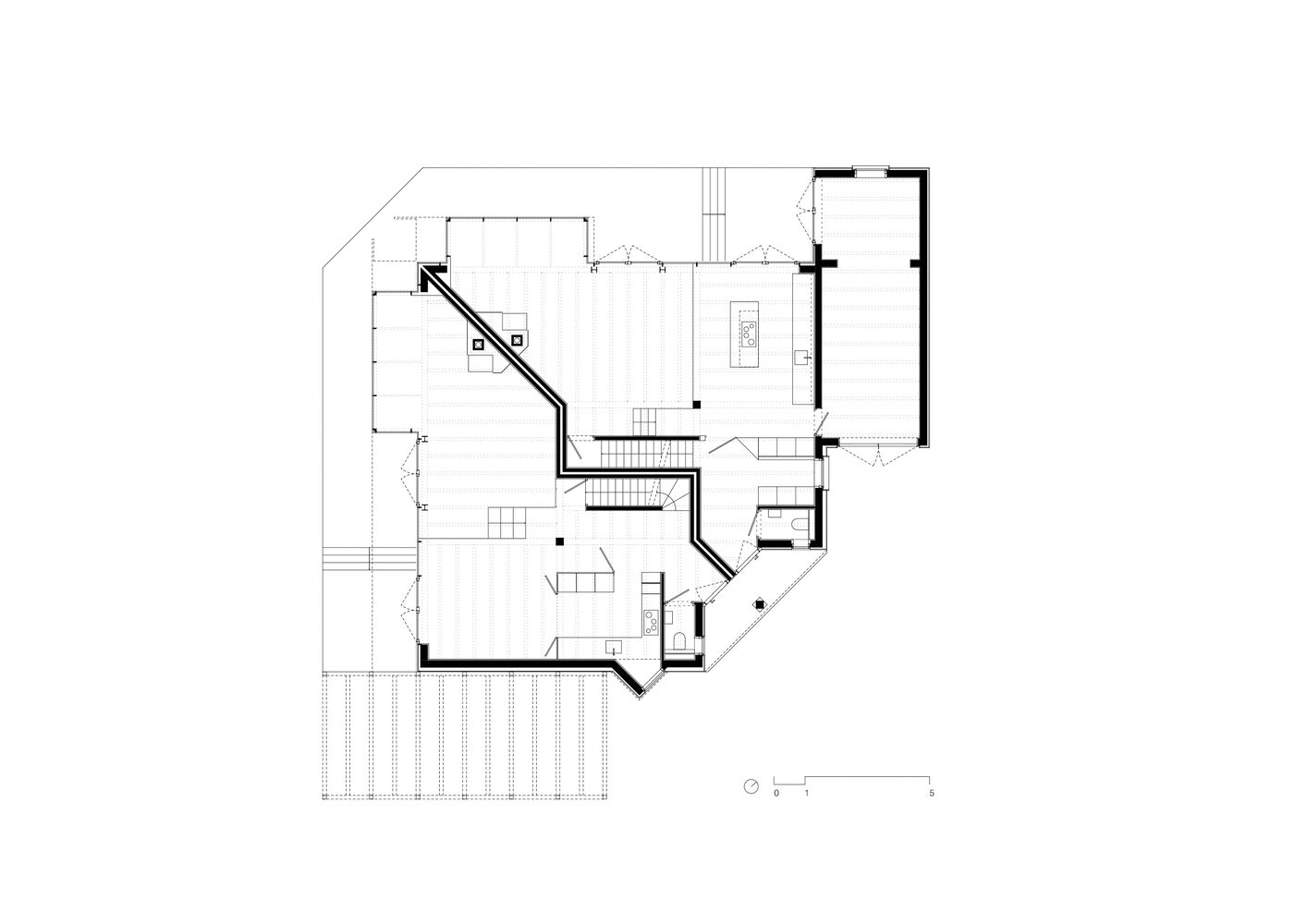
Im Norden von Blankenese entstand auf einem sehr großen, von üppigen Bäumen und Gehölzen geprägten Grundstück ein großzügiges Doppelhaus. Hierfür wurde das Grundstück in vier Grundstücke geteilt. Dieses Doppelhaus vom Architekturbüro Noto sollte sich möglichst behutsam in die Nachbarschaft und den Landschaftsraum einfügen. Die Kubatur entspricht einem 13 mal 13 Meter großen Quadrat, dem eine Ecke „abgeschnitten“ wurde, um dem größten und schönsten Baum des Grundstücks Raum zu geben.

Das Erdgeschoss zeichnet sich durch einen offenen Grundriss aus, der dem natürlichen Gelände folgt und sich über zwei Ebenen erstreckt. Der Koch-Ess-Bereich liegt höher, der Wohnbereich tiefer; beide orientieren sich mit der großzügig verglasten Fassade zum Garten und schaffen eine innige Verbindung zur Natur. Einbaumöbel fungieren als Objekte, die den Raum unterteilen und akzentuieren. Der Kamin, orthogonal zur diagonalen Wand platziert, strahlt Wärme in Richtung Wohnzimmer und Wintergarten aus. Da er aus der Fassadenebene herausragt, ergibt sich von hier eine weitere Blickachse in die Tiefe des Gartens hinein. Die Küche verfügt über einen dreieckigen, schwebenden Erker mit Blick auf den besonders schönen Baum am Eingang und kann mit rahmenlosen Türflügeln vom Essbereich abgeschlossen werden. Die beiden oberen Geschosse gliedern sich in Räume unterschiedlicher Größe. Im Südwesten trifft die diagonale Wand auf die Außenwände und formt einen dreieckigen Raum, in dem sich Bad- und Nebenräume gruppieren. An der Ostseite entsteht dagegen ein größeres Kinderzimmer mit Blick auf die alte Eiche. Im Dachgeschoss wird an den übrigen zwei Gebäudeecken eine Dachterrasse gebildet, an denen Schlafzimmer und Bäder liegen. Bis auf den massiven Keller wurde das Haus in Holzrahmenbauweise errichtet.

Im Vergleich zu den anderen gemauerten Villen etwas ungewöhnlich: Durch die Vorfertigung der Holzrahmenkonstruktion konnte die Bauzeit erheblich verkürzt werden. Die sichtbare Struktur der Holzbalkendecke und Holzstützen und die warme Ausstrahlung des Materials vermitteln ein unverwechselbares Gefühl von Ehrlichkeit. Und schließlich trägt die Materialwahl zur Nachhaltigkeit bei: Primärstruktur und Fassaden sind mit Ausnahme der inneren raumabschließenden Schicht komplett aus Holzwerkstoffen ausgeführt. Bei der Außenbeschichtung des Holzes handelt es sich um eine Silikatfarbe und die innere Wandoberfläche nutzt Lehmputz. Das Dach wurde begrünt und mit einer Photovoltaikanlage ausgestattet. Zwei Wärmepumpen decken den Heizbedarf. Ein weiterer Schwerpunkt des Entwurfsteams um Maike Basista, Henrik Becker und Jacob Jansen lag auf der Fassadengestaltung, die sowohl eine gelassene Präsenz als auch eine gewisse Robustheit ausstrahlt.

Die vertikale Holzverkleidung, kombiniert mit einem breiteren Bodenbrett und einem feineren Deckel, erzeugt ein strukturiertes Linienspiel mit einem Licht- und Schattenspiel, das je nach Sonnenstand die Farben verändert. Ein salbeigrüner Anstrich bettet das Objekt harmonisch in seine Umgebung ein. Die diagonale Trennung wird in einem eher geschlossenen Volumen mit Lochfenstern zu den Vorderseiten des Grundstücks und großflächigen Verglasungen zu den Gartenseiten fortgeführt. Die Fensterlaibungen in den Obergeschossen treten etwas aus der Fassade hervor und schließen mit einer Art Vordach ab. Sonnengelbe Fallarmmarkisen setzen außen wie innen einen heiteren Farbakzent.

www.bueronoto.de

Wohnfläche: je Haushälfte 185 m²
Grundstücksgröße: je Haushälfte 660 m²
Bauzeit: 2022–2023
Bauweise: Holzbau, Teilkeller massiv
Energiekonzept: Luft-Wärmepumpe + Fotovoltaik

Fotos:
Hannes Heitmüller
www.hannesheitmueller.de

(Erschienen in CUBE Hamburg 03|25)

Architektur:

Noto Basista Becker Jansen Architekten Partnerschaft
www.bueronoto.de

Holzbau, Fassade:

Mobau
www.mobau.gmbh

Küche:

Mykilos
www.mykilos.com

Kaminbau:

Vok
www.vok.de

Tischlerei:

Saggau von Pirch
www.tischlerei-svp.de

Farben, Putz:

Matteo Brioni
www.matteobrioni.com

Fenster:

Velfac
www.velfac.de

Markisen:

Storama
www.storama.ch

Küchengeräte:

AEG
www.aeg.de
Gaggenau
www.gaggenau.com
Liebherr
www.liebherr.com

Bodenfliesen:

Fornace Brioni
www.fornacebrioni.com
Winckelmans
www.winckelmans.com
Fragmenti
www.fragmenti.it

Leuchten:

Ifö
www.ifoelectric.com

Schalter:

Hager
www.hager.com

Holzfußboden:

Purnatur
www.purnatur.com

Nothing found.

Wohnen im Komponistenviertel

Junges Wohnquartier in alter Nachbarschaft in Weissensee

Lichtdurchflutete Arbeitswelt

Hocheffizientes Bürogebäude in der Maxvorstadt

Gelungene Überführung

Der Umbau eines ehemaligen Wochenendhauses begeistert die Bauherrin

Individualität im System

Grundschule verbindet Planungs- und Fertigungseffizienz mit zeitgemäßer Gestaltung

Nothing found.

Schaufenster der Wissenschaft

Ein weiterer Baustein für die Science City in Bahrenfeld

1-10-Knoten-highres-36_15_700pixel

Bohle trifft Stahl

Seit 2016 entstehen langlebige, schlichte und individuelle Möbel aus Holz, Beton, Marmor und Stahl.

AB_10-42-_19_700pixel

Denkmalgerechter Badespass

Das Poolhaus in einem historisch bedeutenden Garten ist ein wahres Juwel

20211028_ESF_TSC9337P-1_19_700pixel

Oase in der Natur

Eine großzügige Villa inszeniert die Lage am Wald

Fira-Hagen_15_700pixel

Vom Neuen im Alten

Geschickte Planung macht das historische Siedlungshaus zu einem modernen Zuhause

Lisa-Fardi_Entree_1_15_700pixel

Leichte eleganz

Reduktion auf das Wesentliche und ein besonderer Twist zeichnen diese Maisonette aus

3_Halbmondhaus_Ansicht-Nordwest_15_700pixel

Vom Stall zum Büro

Das denkmalgeschützte Halbmondhaus an der Elbchaussee wurde vorbildlich saniert

Mit viel Liebe zum Detail

Maßgeschneiderter Umbau eines Penthouses