Street Art prägt Praxisbild

Eine Praxis für Kieferorthopädie sticht durch Street Art und moderne Gestaltung heraus

2_15_700pixeluIkAFigZj5Q2Q

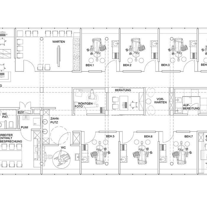
Wie aus einer 330 m² großen und leeren Fläche mit umlaufenden Fenstern im ersten Obergeschoss eines Bürogebäudes eine Rundum-Wohlfühl-Praxis mit persönlicher Note der Praxisinhaberin wurde, zeigt das Projekt des Düsseldorfer Büros Göke Praxiskonzepte für die Starnberger Kieferorthopädin Dr. Schamien Stumpfe. Überall präsent: Die Street Art, ein Steckenpferd der Ärztin, für die sie seit ihrer Studienzeit Kunstwerke exklusiv in Londoner Galerien ersteht. Diesem jugendlich coolen Ambiente stellt sie selbstbewusst und mit viel Charme ihre Verbundenheit zur Region an die Seite, indem sich die prägenden Seen der nahen Umgebung in den Raumbezeichnungen ihrer Praxis KFO 5 Seen wiederfinden.

Dazu gesellen sich typisch bayerische Stilelemente wie Hirschgeweihe und Designersessel mit einem Bezug aus derbem Leder im Used-Look. So ist das gesamte Praxiskonzept für Patienten quer durch das komplette Altersspektrum, von Kleinkindern über Kinder und Jugendliche bis hin zu Erwachsenen, gleichermaßen ansprechend. In nur knapp einem Jahr realisierten die auf Praxisbau spezialisierten Innenarchitekten die neuen Praxisräume, die Ende 2019 fertiggestellt wurden. Die Räume sind sehr großzügig und durch die umlaufende Fensterfläche ausgesprochen hell, was durch die raumhohen Glastrennwände noch intensiviert wird. So erfüllte sich der Wunsch der Inhaberin nach einer Praxis, in die man gerne geht und in der man sich rundum wohlfühlt. Insgesamt sieben Behandlungszimmer mit jeweils nur einer Behandlungseinheit sowie die Mitarbeiter-, Verwaltungs- und Zahntechnikbereiche wurden umlaufend an den Außenseiten positioniert und profitieren durch großzügige Fensterflächen vom vollen Tageslicht. Röntgen, Beratung und Aufbereitung fungieren innenliegend gebaut als freistehender Flächenteiler.

Das geradlinige Konzept kombiniert weiße Möblierung und weiße Wände mit einzelnen Wänden im kühlen Betonlook und einem hochwertigen und strapazierfähigen PVC-Boden in warmer Holzoptik. Die Wände werden durch Lichtspots und hinterleuchtete Wandobjekte nochmal mehr in Szene gesetzt. Besonderer Hingucker ist der von unten erleuchtete weiße Empfangscounter mit seinen wie Ufos darüber schwebenden runden Hängeleuchten aus Messing. Alles ist hochwertig – dabei auch jung, freundlich, clean, manchmal ein bisschen frech. Das Zusammenspiel der eingesetzten Materialien in moderner, aber nicht modischer Optik wirkt nicht unterkühlt und zu abgehoben, sondern entspricht genau dem Flair, den die junge Ärztin ihren Patienten bieten will.

www.goeke-praxiskonzepte.de

(Erschienen in CUBE München 03|20)

Innenarchitekten:

Göke Praxiskonzepte
www.goeke-praxiskonzepte.de

Leuchten:

Praxiskonzepte Plus
www.goeke-praxiskonzepte.de

Praxismöbel:

KS Innenausbau
www.ks-innenausbau.de

Bodenbelag:

Amtico
www.amtico.de

Trockenbau:

Freiraum Innenausbau
www.freiraumdesign.com

Elektrotechnik:

Elektro Saegmüller
www.saegmueller.de

Sanitär:

Rege Haustechnik
www.rege-haustechnik.de

Klimatechnik:

Kalb – Klimatechnik
Telefon: 08707 8291

Glasanlagen:

Glaserei Breitsamer
www.glas-breitsamer.com

Fotos:

Joachim Grothus Fotografie
www.joachimgrothus.de

Nothing found.

Farbspektrum

Ein Business Club in Citylage setzt farbenreich auf Exzellenz und Vielfalt

Ein Teil des Waldes

Umbau einer Scheune zu einem modernen Rückzugsort

Passgenau am Bach

Eine geförderte Wohnanlage in Bergisch Gladbach ordnet sich kleinteilig in ihren Kontext ein

Ästhetik in jeder Hinsicht

Das Design einer oralchirurgischen Praxis vermittelt Ruhe, Kompetenz und Wärme

Nothing found.

oliv-architekten-m8-fassade-1_15_700pixel

Factory – Loftstyle

Hochmodernes Bürogebäude im Kontorhaus-Look

Mehr Wohnen auf gleichem Grund

Aufstocken, Sanieren, Umbauen, neu organisieren – so gelingt städtisches Verdichten

_AHA6449_a_hanebeck-fin_15_700pixel

Eine Platzzierde – Einst und jetzt

Jugendstilensemble am Harras originalgetreu instand gesetzt

Haus_J_04_15_700pixel

Bauen für die Zukunft

Der Prototyp eines Einfamilienhauses versucht auf die Klimakrise zu antworten

_DSC4692_700pixel

Lebe lieber Lagom

Nordisches Design für eine ausgezeichnete Wohnanlage am Ammersee

Baumkulisse für Schattenplätze

Ein Ruheparadies mitten in der Großstadt

A025_fullRes_11_15_700pixel

Wohn- und Arbeitszuhause

Einfamilienhaus in massiver Holzbauweise inklusive Tonstudio und Grafikbüro

stephan-maria-lang-architekt-haus-moderne-villa-house-L011-shingle-residence-muenchen-graefelfing-holz-foto-sebastian-kolm-garten-west_gross_44_700pixel

Haus mit Charakter

Einheit von Garten, Natur und Architektur