Eins sein

Natur und Architektur verbinden sich bei diesem Haus am Hang wie selbstverständlich

31-Fuchs-Wacker-Architekten-Haus-BOP-Stuttgart_47_700pixel

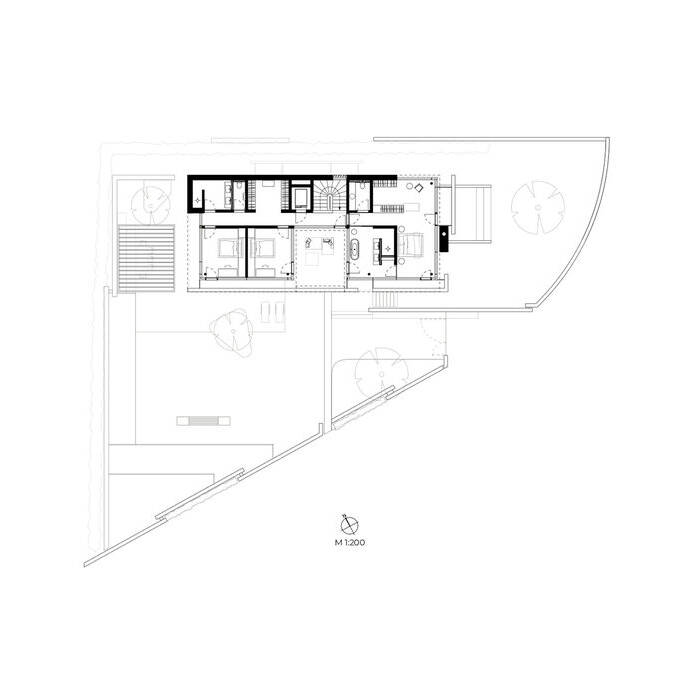
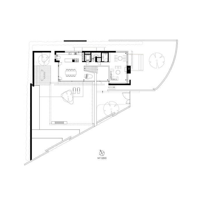
Unten wie aus dem Fels gehauen, oben offen und durchlässig wie die Wipfel eines Baumes: Bei diesem Einfamilienhaus in bester Waldrandlage verknüpften Fuchs Wacker Architekten die Natur wie selbstverständlichen mit der Gestaltung, sodass die Natur selbst zu einem bewohnbaren Teil der Architektur wird.

Im untersten Geschoss empfängt das Haus am Hang mit einem kleinen Plateau direkt neben der Zufahrt seine BewohnerInnen und Gäste. Eine Wandscheibe weist den Weg ins Innere und setzt sich im offenen Eingangsbereich fort. Hier liegt ein Pietra Piasentina am Boden, ein warmer, rötlich-grauer Naturstein mit weißen Adern. Über einen breiten Antritt geht er in die Treppe über – wie eine Einladung, den Fels empor zu klettern, mit nach oben zu kommen und das Haus neugierig zu erkunden. Im Erdgeschoss ist der Wohnbereich hell und von Licht erfüllt wie ein Loft gestaltet. Ringsum bietet sich der freie Blick in den Garten. Neben dem üppigen Grün ist die Küche mit ihrer gebürsteten Oberfläche aus Aluminium im rauchigen Champagnerton ein besonderer Blickfang. Ihr fügt sich nahtlos der Essbereich an. Die Nebenräume „verschwinden“ – wie auch in der Etage darunter – unauffällig in einem Wandschrank aus geräucherter Eiche. Im Kontrast zum Weiß der Wände und zum warmen Grau des Steinbodens verbindet das maßgefertigte Möbelstück das Unter- mit dem Erdgeschoss. Zudem betont es den zweigeschossigen Luftraum. Nach oben hin verändern sich die Materialien und mit ihnen das Wohngefühl: Eine Holztreppe führt ins Obergeschoss, wo nun nicht mehr der Stein, sondern ein Parkettboden aus gedämpfter Eiche den Ton angibt. Im Zentrum der privaten Räume der Familie liegt die Dachterrasse wie ein Innenhof – von drei Seiten in Glas gefasst und auf der vierten Seite zum Waldrand offen. Ein roter Ahorn spendet Schatten und ist ein selbstverständlicher Teil der Architektur. Gleichzeitig öffnen die Wolkenbügel den Baukörper wie das obere Geäst eines Baumes zum Himmel hin. Das an die innenliegende Terrasse nahtlos angrenzende Badezimmer greift das Grün der Baumwipfel mit einer markanten Wandscheibe aus grünem Marmor auf und lässt es fließend in den maßgefertigten Waschtisch übergehen.

Der große Garten dient nicht nur als Spielwiese für die Kinder, sondern wurde als bewohnbarer Außenraum von Anfang an mit einem eigenen Essbereich, einem stimmigen Beleuchtungskonzept und den aus Sichtbeton gegossenen Bänken inmitten des kleinen Kräutergartens geplant und gestaltet. Von hier hat man die wohl schönste Perspektive auf Haus und Garten.

www.fuchswacker.de

Wohnfläche: 276 m²
Grundstücksgröße: 1.036 m²
Bauzeit: Fertigstellung 2021
Bauweise: Massivbau
Energiekonzept: Luftwärmepumpe, Photovoltaik

Fotos:

Johannes Vogt
www.johannesvogt.de

(Erschienen in CUBE Stuttgart 03|22)

Architekten:

Fuchs Wacker Architekten
www.fuchswacker.de

Leuchten:

Gallotti&Radice
www.gallottiradice.it
Delta Light
www.deltalight.de

Fenster:

Schüco
www.schueco.com

Türen:

Fides Interiors
www.fides.bz.it

Schalter, KNX, Homeserver:

Jung
www.jung.de

Küche, Küchentechnik:

Bulthaup
www.bulthaup.com
Fides Interiors
www.fides.bz.it
Miele
www.miele.de

Armaturen, Sanitärkeramik:

Antonio Lupi by Karl Körner
www.antoniolupi.it

Naturstein:

Karl Körner
www.karl-koerner.de

Nothing found.

Farbspektrum

Ein Business Club in Citylage setzt farbenreich auf Exzellenz und Vielfalt

Ein Teil des Waldes

Umbau einer Scheune zu einem modernen Rückzugsort

Passgenau am Bach

Eine geförderte Wohnanlage in Bergisch Gladbach ordnet sich kleinteilig in ihren Kontext ein

Ästhetik in jeder Hinsicht

Das Design einer oralchirurgischen Praxis vermittelt Ruhe, Kompetenz und Wärme

Nothing found.

Alles unter einem Dach

Atmosphärische Lebens- und Arbeitsräume für eine Familie mit vier Kindern

VSB_2018-07-26_169_15_700pixel

Wohnen mit Weitblick

Einfamilienhaus im Neubaugebiet mit geschützten Bereichen und vielfältigen Ausblicken

ZB718-07_15_700pixel

Saniert nach New Work-Prinzipien

Neue Unternehmensheimat mit inspirierenden Arbeits- und Kommunikationsflächen

Mystische Stimmung

Repräsentatives Headquarter übersetzt die Arbeitsweise von professionellen Hackern in Raumkonzepte

17_AD_0970-78_mod_6591x4394px_15_700pixel

Stadtreparatur

Ehemalige Bauhoffläche wird zum qualitätvollen genossenschaftlichen Wohnort

CA498-02_15_700pixel

Form + Farbe

Neugestaltung einer Praxisklinik, die mit Volumen und Farbe unterschiedliche Bereiche schafft

Blühendes „Gartenhaus“

Architektur, Innenarchitektur und Marke vereinen sich ganzheitlich in einem Design und Boutique Hotel