Eine Perle in zweiter Reihe
Glückliche Fügung für den Traum vom Familiendomizil
Die Bauherren waren schon lange Zeit auf der Suche nach einem Grundstück für ihr neues Familiendomizil. In Sasel fanden sie dann zusammen mit einer befreundeten Familie ein so genanntes Pfeifen- oder Pfeifenstielgrundstück, das groß genug für zwei hintereinander angeordnete Einfamilienhäuser war. Das hier vorgestellte Gebäude vom Architekten Matthias Mecklenburg liegt also quasi „in zweiter Reihe“. Was sich zunächst wie ein Nachteil anhören könnte, stellte sich dann aber sehr schnell als Glücksfall heraus. Denn zum einen schützt diese hintere Lage vor dem Lärm der Ausfallstraße und zum anderen konnten die Bauherren noch das rückseitig angrenzende Waldstück pachten, so dass ihr Garten eine unerwartete Erweiterung mit herrlichen Blicken ins Grüne und auf alte Bäume erfuhr.
Die Erschließung erfolgt ganz klassisch über eine lange Zufahrt von der Straße – dem „Pfeifenstiel“ – und führt in direkter Linie zum seitlich vom Haus gelegenen Carport aus Zedernholz. Ein schützendes Vordach als Verlängerung des Carports begleitet Bewohner und Besucher zum Eingang und setzt zudem einen interessanten Akzent an der Nordseite des Hauses.
Auffällig ist das expressive Spiel des Wasserstrichziegels in der Klinkerfassade. Um bestimmte Flächen des Kubus zu betonen, wurden Klinker in Reihen als Gesims gestaffelt oder Klinkerköpfe in der Fläche im Verband herausgestellt. Die geschlossene Nordfassade lässt nicht erahnen, wie lichtdurchflutet das Gebäude gestaltet ist. Gleich beim Eintreten ins Haus kann man den Blick bis in den Garten genießen. Die doppelflügelige Stahlrahmenglastür sorgt für Helligkeit und fungiert als einladendes Entrée vom Flur in die Wohnräume. Der Wohnbereich mit Esszimmer ist nach Süden orientiert und öffnet sich weit über großflächige, fast deckenhohe Glas-Schiebetüren bodengleich zur Terrasse und in den Außenraum. Die offen angrenzende Küche mit Frühstücksbar liegt an der Nordostseite des Hauses, hier genießt die Familie schon morgens die Sonne. Der Panoramakamin ist sowohl vom Koch- als auch vom Wohnbereich aus erlebbar.
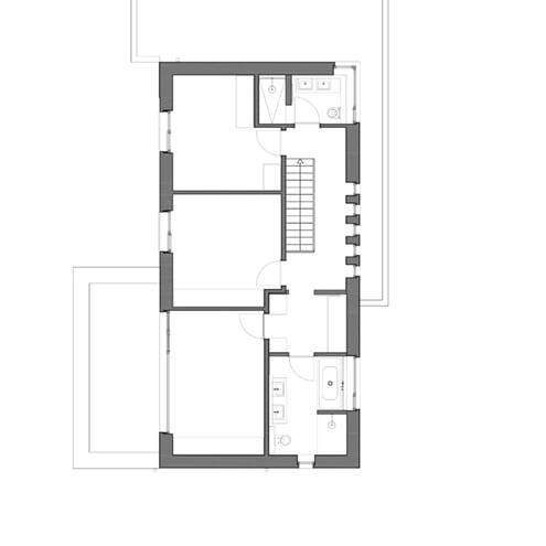
Die obere Etage ist nach Süden als Staffelgeschoss ausgebildet, so entsteht eine großzügige Dachterrasse über dem Wohnbereich im Erdgeschoss. Die privaten Räume für Eltern und Kinder sind hier getrennt von einander angeordnet und mit jeweils eigenen Bädern an den Stirnseiten ausgestattet. Im Flur erzeugen die fünf schmalen und hohen Fenster ein spannendes Lichtspiel. Der Architekt hat auch die Planung für den Garten und die Möbel erstellt – passend zur klaren und reduzierten Formensprache des Hauses.
Wohnfläche: 180 m²
Grundstücksgröße: 597 m²
Bauzeit: 09/2019–10/2020
Bauweise: massiv/zweischaliges Mauerwerk
Energiekonzept: EnEV 2016/KfW 70
Fotos:
Dominik Reipka
www.reipka.de
(Erschienen in CUBE Hamburg 03|21)
