Haus, Garten, Möbel = eins
Wohnhaus auf schmalem Grundstück reiht sich in mehreren Volumen und spannenden Außenräume
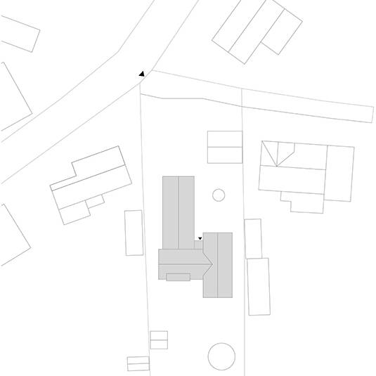
Ausgangspunkt für die Planung: Ein schönes, sehr schmales Grundstück innerhalb einer dörflichen Struktur, geprägt von Satteldach- und Bauernhäusern. Die benachbarten Gebäude stehen dicht an der Grundstücksgrenze. Im Norden liegt die Zufahrt, auf der Südseite bietet sich eine schöne Aussicht auf Wiesen und Wald.
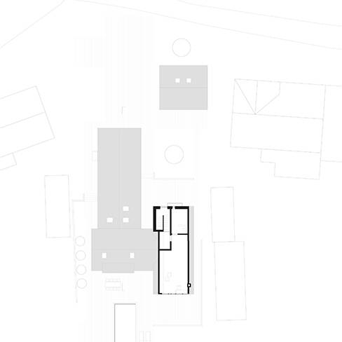
Das Baufenster erlaubte es, den Neubau weit nach hinten zu setzen und ihn langgestreckt auszubilden. Kiltz Kazmaier Architekten teilten das umfangreiche Raumprogramm in kleinere Volumen auf, um das Ensemble stimmig in die Umgebung einzufügen. Mit der Anordnung der zwei kleineren Einzelhäuser und dem wiederum dreigeteilten Haupthaus entstanden spannende Außenräume und geschützte Plätze bzw. kleine Höfe mit interessanten Blickbeziehungen. Im Norden an der Zufahrt befindet sich der Hof für Fahrzeuge und die Werkstatt bzw. den Hobbybereich. Daran schließt sich der Eingangshof im Vorbereich des Wohnhauses an. Auf der Südseite öffnet sich der Hof für Garten und Pool. Die außen sichtbare klare Gliederung des Gebäudes setzt sich im Innenraum fort. Der zentrale Eingang führt in ein kleines Foyer mit Blickachsen in die verschiedenen Nutzungsbereiche und den Garten. Innen- und Außenraum sind über großzügige Verglasungen miteinander verbunden, sodass eine großzügige Atmosphäre und selbstverständliche Orientierung entsteht. Über eine dezent separierte Treppe gelangt man in das Obergeschoss. Es ist der Gebäudekubatur entsprechend eingeteilt in ein Kinder- und ein Elternhaus, die über einen hellen Bewegungsbereich verbunden sind. Im Dachgeschoss befindet sich als abgeschlossene Raumeinheit ein flexibel nutzbarer Bereich mit kleinem Bad. Hier ist man ungestört unter dem offenen Dach und hat von der geschützten Loggia eine schöne Aussicht ins Grüne.
Elegant und zeitlos sollte das Gebäudeensemble wirken, reduziert und ausgewogen in seinen Proportionen. Alle Gebäude sind mit hinterlüfteten Tafeln aus Faserzement in einem hellen Farbton verkleidet. Die liegenden Fugen zwischen den Tafeln entwickeln sich um die Kubatur und lassen sie fein und leicht wirken. Fenster wurden, wo möglich, in Bändern und flächig angeordnet, um diesen Eindruck zu unterstützen. Es gibt keine Dachüberstände, die Regenwasserableitung ist nicht sichtbar. Erfreulicherweise plante der Architekt auch die Möbel und den Garten, sodass die Gartengestaltung und Architektur als eine Einheit wahrgenommen werden und die Möbel die Raumkonzeption in Funktion und Materialität unterstützen.
Fotos:
Rainer Brändli
Markus Guhl
www.architekturfotograf-markus-guhl.com
(Erschienen in CUBE Stuttgart 01|22)
