Privat und Gemeinschaftlich
Bahnhofsnahes Stadtquartier mit verbindender Erdgeschosszone und geschützten Höfen
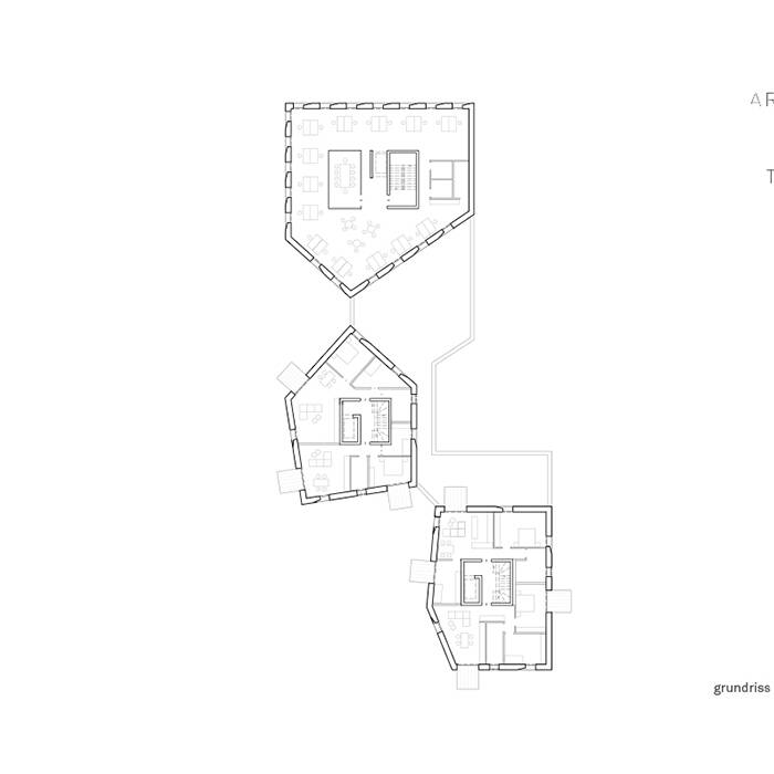
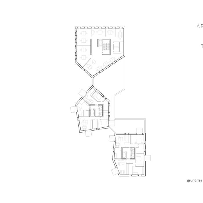
Zeitgemäßes, familienfreundliches Wohnen mit Privatsphäre im Stadtzentrum – das waren die zentralen Anforderungen an die Wohn- und Geschäftsbebauung auf dem bahnhofsnahen Grundstück in Ludwigsburg. In offener und differenzierter Bauweise entwarfen Steimle Architekten drei polygonale Punkthäuser, deren städtebauliche Korngröße und Höhenentwicklung von den Typologien in der Umgebung abgeleitet sind. Die Gebäude stehen versetzt zueinander, sodass zwei attraktive, geschützte und sozial sichere Räume im Stadtgrundriss entstanden. Diese Eingangshöfe sind Adressgeber und Visitenkarten zugleich. So markieren sie den Übergang ins neue Wohnquartier und verknüpfen das Planungsgebiet mit der Erschließungsachse der Straße. Durch den sensiblen Umgang mit der Bestandssituation des Quartiers bietet das neue Gebäudeensemble eine optische Durchlässigkeit sowie die bestmögliche Ausrichtung und Besonnung der Wohnungen.
Das der Straße zugewandte Büro- und Geschäftshaus wird von Strenger Holding als Bauherrschaft mit ihren eigenen Geschäftsräumen genutzt. Als kompakter Baukörper markiert das Vorderhaus den Auftakt zum Wohnquartier und ein gemeinsames Erdgeschoss verbindet es mit den beiden Wohnhäusern sowohl baulich als auch im gemeinschaftlichen Sinne. Diese Erdgeschosszone dient den Bewohner:innen als Raum für Begegnung und gemeinsame Aktivitäten. Auf der verbindenden Erdgeschossdecke können private und gemeinschaftliche Gärten und Terrassen angelegt werden. Über jeweils einen zentralen Erschließungskern sind die darüber liegenden Geschosse zugänglich – auch von der Tiefgarage aus. Die 18 Ein- bis Vierzimmerwohnungen sind geschossweise als Ein- bis Dreispänner angelegt und barrierefrei erschlossen. Von den Dachterrassen des jeweils obersten Geschosses bietet sich ein schöner Ausblick auf die Stadt. In Obergeschossen sind die Balkone zu den beiden ruhigen und begrünten Höfen ausgerichtet. Für den neuen Stadtbaustein wählten die Architekten ein identitätsstiftendes Gestaltungs- und Materialkonzept mit einem dezenten und gleichzeitig akzentuierten Erscheinungsbild einer langlebigen und lebendigen Klinkerfassade. Das Vorderhaus nimmt mit seinem Schrägdach und der strengeren Fensteranordnung die charakteristische Gestaltung der bestehenden Straßenfassaden auf. Die städtebauliche Einheit des Gebäudeensembles entsteht durch Vielfalt und Gemeinsamkeiten zugleich.
Fotos:
Brigida González
www.brigidagonzalez.de
(Erschienen in CUBE Stuttgart 04|22)
