Haus im Haus zum Selberbauen
In einer Industriehalle versteckt sich ein „House in Progress“
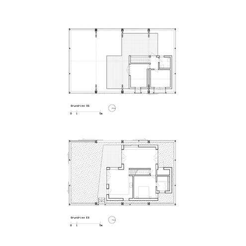
Eine weiße Werkhalle aus vorgefertigten Industriebaustoffen steht auf einem Grundstück in Schmergow, westlich von Berlin. Dort hat es eine Familie hin verschlagen, da in der Hauptstadt keine Wohnung für Menschen mit durchschnittlichem Einkommen mehr zu finden ist. Mithilfe des Architekturbüros c/o now aus Berlin waren sie mutig genug, quasi auf der grünen Wiese eine vorfabrizierte Halle in Holzbauweise, verkleidet mit weißem Trapezblechen, aufzustellen, die es in sich hat. Der Tradition der französischen Architekten Lacaton & Vassal oder Jourda & Perraudin folgend, die bereits in den 1980er- und 90er-Jahren mit ihren sozialen Ideen, z. B. industriell gefertigte Gewächshäuser als Ausbauhäuser zu verwenden, Aufsehen erregten, wagt es hier eine Kleinfamilie zusammen mit einem jungen Architekturbüro, ein Zuhause als „work in progress“ in der Werkhalle zu bauen. Ein 90 m² großes Kernhaus aus monolithisch gemauerten Wänden im Erdgeschoss sowie einer Holzständerkonstruktion im Obergeschoss ist der Anfang des Eigenheims, das peu à peu weiterwachsen kann. Ob die Hülle dann fällt oder bleibt, sei zunächst dahingestellt. Die Vorteile liegen klar auf der Hand: Die Auftraggeber:innen sind nicht finanziell überlastet mit einem kompletten Neubau, sondern können gewissermaßen in Modulbauweise Anbau für Anbau hinzufügen.
„Where the Wild Morels Grow“ ist der Name des von c/o now projektierten Wohnhauses. Zum Garten hin ist es mit zwei Schiebetoren großzügig öffenbar – als witterungsfeste, nicht temperierte Klimahülle für ein beheizbares Kernhaus. Ausgehend von dessen 90 m² Wohnfläche auf zwei Ebenen, zu denen noch insgesamt 65 m² „Loggia“ und Terrasse sowie 60 m² Indoor-Garten kommen, kann das Haus bei einer überbauten Fläche von 200 m² (teilversiegelt) bis maximal 400 m² Wohnfläche in Eigenleistung ausgebaut werden. Während man sich in den kälteren Monaten auf das Kernhaus zurückzieht, erweitert sich das Haus in der restlichen Zeit in die teilweise bepflanzte Klimahülle: Der Esstisch steht in der Halle, die Kinder spielen, obwohl es regnet, doch an der frischen Luft.
Durch das Angebot einfacher Weiterentwicklungs- und Rückbaumöglichkeiten versucht c/o now, die im ländlichen Raum überproportional verbreitete typologische Beschränkung auf das typische Einfamilienhaus zugunsten anderer Wohnformen zu durchbrechen. Diese beeindruckende Idee wurde vor Kurzem für die Shortlist DAM Preis 2023 nominiert.
Fotos:
Zara Pfeifer
www.zarapfeifer.com
(Erschienen in CUBE Berlin 04|22)

