Gärten mit Vergangenheit
Gartenanlagen auf ehemaligem Hafengelände nehmen die Industriegeschichte auf
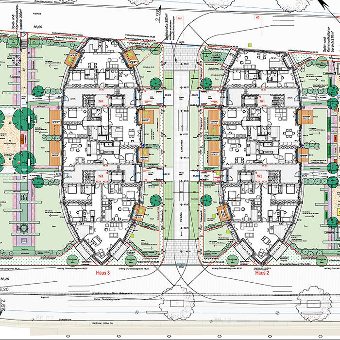
Wo ehemals ein Hafengelände war, ist in Mainz neuer Wohnraum in fünf Gebäuden entstanden. Die Gartenanlagen um die Häuser mit schiffsartigen Grundrissen auf der Südmole plante Ute Wittich. Ihre Leitidee angesichts des Ortes: Das Hafengelände als ehemaliger Industriestandort sollte sich in den Freianlagen widerspiegeln. Ein denkmalgeschützter Kran ist nicht nur ein weit sichtbares Zeichen der ursprünglichen Nutzung, er beeinflusste auch die Planungsidee, Cortenstahl einzusetzen, da er an Industriegelände erinnert. Da die gesamte Anlage wegen Hochwasserschutz auf ein höheres Niveau gelegt werden musste, hat die Landschaftsarchitektin die Cortenstahleinfassungen meist treppenartig gestaltet. „Dadurch entstehen interessante Akzente, die im Zusammenspiel mit den immergrünen Hecken, Gräsern und Stauden für Abwechslung sorgen“, erklärt sie.
Bei der Bepflanzung der Freianlagen mussten Auflagen der Hafengesellschaft beachtet werden: Es sollten keine ausladenden Bäume gepflanzt werden, damit man zwischen den Häusern noch auf den nahegelegenen neuen Hafen und das Rheinufer blicken kann. Aber auch wegen der Industrievergangenheit entschied sich die Landschaftsarchitektin für verschiedene Gräser in unterschiedlichen Höhen, Halmen und Färbungen. Besonders hohe Gräser wurden dort gepflanzt, wo Sichtschutz notwendig ist, andere wiederum hängen wie eine Perücke über den Cortenstahl.
Bei der Gestaltung der Innenhöfe fiel die Wahl auf Hecken mit unterschiedlichen Grüntönen und Blattformen. Da es auf dem gesamten Gelände keine Zäune gibt, wurde eine Zierapfelhecke ausgewählt, um Gärten voneinander abzutrennen. „Zu den intensiven Pflanzungen gesellen sich hunderte Stauden in harmonischen Farbabstufungen, die ich immer so gewählt habe, dass sie insektenfreundlich sind und in der gesamten Saison blühen.“ Damit die Bewohner ein harmonisches Gartenambiente erleben, war der Landschaftsarchitektin noch etwas wichtig: „Mit der Auswahl der Pflanzen habe ich auch auf Klimawandel und Biodiversität reagiert.“ Daher wurden Pflanzen genommen, die Hitze und Trockenheit vertragen: Gräser, Stauden und Bäume wie Eiche, Hainbuche, Amberbaum.
Um Lichtverschmutzung zu verhindern, gibt es nur eine sparsame Beleuchtung. Die Wege in den Innenhöfen sind mit Kies wasserdurchlässig belegt, Kunststoffsofas und -sessel von Philippe Starck laden hier zum Sitzen ein. Hochstämmige Schirmkiefern oder immergrüne Hochstammbäume markieren Wegeverbindungen.
Fotos:
Ute Wittich
(Erschienen in CUBE Frankfurt 01|21)

