Viel Luft im Innern
Ein Haus überrascht mit Einschnitten in seinem Kern
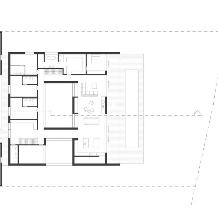
Auch auf großen Grundstücken stellt sich bei Einfamilienhäusern die Frage: Wie wird Ausblick ermöglicht, ohne Einblicke zuzulassen? Eine geschlossene Fassade zur Straße und zur Nachbarschaft hin sowie eine verglaste, die sich in den Garten öffnet – so sieht die Antwort aus. Diesen Kniff wenden auch MundS Architekten bei einer Villa in Südhessen an. Allerdings mit einer kleinen Überraschung – oder besser zwei – in Form von begrünten Lichthöfen, die sich im zentralen Kern des Gebäudes bis in das vom Gartenniveau aus unsichtbare Untergeschoss erstrecken.
Die Fassadenverkleidung aus dem Naturstein Nero Assoluto verstärkt den geschlossenen Charakter des Hauses an den Seiten, die dem öffentlichen Raum und den Nachbargrundstücken zugewandt sind. Fast schon schützend stellen sich die beiden Garagen flankierend vor das Haus. Eine Abwehrhaltung, die durch die Holzlattung gebrochen wird. Sie zeigt sich freundlich überall dort, wo der Weg in das Haus führt. Straßenseitig bezieht sich das vor allem auf den Eingangsbereich. Zum Garten hin wechselt sich die Holzverschalung hingegen über die gesamte Breite des rechteckigen Gebäudes mit bodentiefen Fensterflächen ab. Diese spiegeln sich im Pool vor der Terrasse, dessen Wasser in einer Edelstahlwanne blau glitzert. Im Sommer verlagert sich das Leben eben dorthin, wo in der Außenküche sogar die Mahlzeiten zubereitet werden können. Hinter den Scheiben entwickelt sich der Innenraum mit der Abfolge von Koch‑, Ess- und Wohnbereich über die gesamte Breite. Auch die Schlafräume liegen im Erdgeschoss, allerdings durch einen der begrünten Innenhöfe vom Aufenthaltsbereich des Hauses getrennt. Über diesen großen und einen weiteren kleinen Innenhof wird nicht nur die Mitte des Erdgeschosses mit Tageslicht versorgt. Es entstehen über diese zweigeschossigen Lufträume auch interessante Blickbeziehungen durch das Haus bis ins Untergeschoss. Die Sonne fällt auf Sitzfenster und gelangt mit ihren Strahlen teilweise bis ins Untergeschoss, wo sich Gästezimmer, Hobby- und Fitnessraum um den größeren der beiden Innenhöfe gruppieren.
Um den kleineren Innenhof liegen hingegen die Sauna und der dazugehörige Ruheraum. Eine schmale Wendeltreppe führt im Freien nach oben und ermöglicht einen direkten Zugang zum Garten. Für diesen gibt es trotz des großen Wohnhauses noch genügend Raum. Immerhin hat das Grundstück eine Gesamtfläche von 2.000 m². Gefühlt sind es noch viel mehr, wenn der Blick vom Wohnraum oder der Terrasse weit über die noch unbebauten Freiflächen streift und sich in der Landschaft verliert.
Wohnfläche: 775 m²
Grundstücksgröße: 2.000 m²
Bauzeit: 24 Monate
Bauweise: massiv
Energiekonzept: Luft-Wasser-Wärmepumpe in Kombination mit Fotovoltaik und Lüftungsanlage mit Wärmerückgewinnung
Fotos:
Lars Gruber
www.larsgruber.de
(Erschienen in CUBE Frankfurt 04|23)
