Eingeschossig und durchgrünt

Darmstadts größte Grundschule hat einen einladenden Erweiterungsbau erhalten

dzpa_Erich-Ka-stner-Schule_Darmstadt_Kranichstein_Ansicht-Ost_15_700pixel

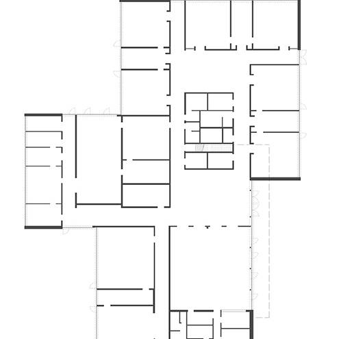
Die größte Grundschule Darmstadts ist noch größer geworden. Die Erich Kästner-Grundschule in Kranichstein, in der fast 600 Schüler aus 40 Nationen gemeinsam lernen, hat nämlich einen Erweiterungsbau bekommen. Rund 2.470 m² umfasst der Neubau des Stuttgarter Architekturbüros dasch zürn + partner, dessen Entwurf Ende 2015 aus einem Architekturwettbewerb als Sieger hervorging. Neben sechs Klassenräumen beherbergt er die Schulmensa und Lehrerzimmer. Zwar musste der Schulhof für den Erweiterungsbau etwas reduziert werden, doch fügt der Bau sich als einladender, eingeschossiger und durchgrünter „Teppich“ in die parkartige Situation ein.

Der Wechsel von großflächigen Verglasungen mit außenliegendem Sonnenschutz und geschlossenen Außenwandflächen mit hinterlüfteter Bekleidung bestimmt das Erscheinungsbild des flachen, langgestreckten Baukörpers. Das Dach ist als Regenwasserpuffer und zum Schutz der Dachhaut begrünt. Mit seiner hell lasierten Holzbekleidung fügt sich der Neubau nicht nur selbstverständlich in seine Umgebung ein, sondern sein freundliches Äußeres lädt Nutzer:innen und Besucher:innen auch zum Betreten ein. Im Inneren wurden ebenfalls natürliche und langlebige Materialien eingesetzt. Mit Ausnahme des Nebenraumblockes sind alle Wände mit hellen Holzpaneelen bekleidet. Die stark beanspruchten Fußböden der Eingangshalle und Mensa sind mit Sichtestrich belegt, die Unterrichts-, Verwaltungs- und Lehrerbereiche mit Linoleum. Vollflächig abgehängte gelochte Akustikdecken gewährleisten die erwünschte Raumakustik mit nur kurzer Nachhallzeit.

Die Freianlagen können vielfältig genutzt werden: Neben dem zentralen Pausenhof gibt es dezentrale, den Nutzungsbereichen direkt vorgelagerte Freibereiche. Die nach pädagogischen Kriterien gestalteten Freianlagen bieten Bereiche für großräumige Bewegungen, kleine Rückzugszonen und modellierte Aktivzonen. Die Oberflächen wurden dabei so gestaltet, dass das Niederschlagswasser auf dem Grundstück versickern kann und nicht in die Kanalisation eingeleitet werden muss. Überschüssiges Niederschlagswasser kann in den Erich-Kästner-See eingeleitet werden. Im Inneren liegen um das zentrale Foyer die drei Nutzungsbereiche: Die Klassenräume mit dazwischen liegenden Differenzierungsräumen gruppieren sich um einen offenen Lern- und Aufenthaltsbereich, der Lehrer- und Verwaltungsbereich orientiert sich zum umgebenden Grün und die Mensa, die sich zum Foyer öffnen lässt. Der Mensabereich wird nicht nur für schulische Veranstaltungen genutzt, sondern steht auch anderen Menschen offen. Neben dem Haupteingang gibt es daher einen separaten Zugang. Weitere Außentüren verbinden überdies die Innenräume mit den direkt vorgelagerten Freibereichen.

www.dzpa.de

Fotos:

Henrik Schipper
www.henrikschipper.de

(Erschienen in CUBE Frankfurt 04|22)

Architekten:

Dasch Zürn + Partner
www.dzpa.de

Heizung, Lüftung, Sanitär:

IB Wagner
www.ib-wagner.de

Elektro:

Kienle
www.kienle-ingenieure.de

Innentüren, Einbaumöbel:

Schreinerei Johannes Röll
wordpress.p175039.webspaceconfig.de

Bodenbelag (Linoleum):

Gerflor
www.gerflor.de

Schalter:

Gira
www.gira.de

Briefkasten:

Siedle
www.siedle.de

Nothing found.

Harmonisch eingefügt

Neubau-Ensemble wahrt den historischen Bezug und entwickelt eigene Identität

Traditionell und Modern

Traditionell und Modern

Massivholzhaus ist der Publikumsliebling beim Rosenheimer Holzbaupreis

Erdverbundene Leichtigkeit

Winkelförmiger Bungalow auf Sockel mit Höfen bildet einen geschützten Gartenbereich

Nothing found.

Elegant & gemütlich

Hotel im Passivhausstandard verbindet kosmopolitisches Flair und behagliche Rückzugsorte

Grueninger_ReWi_Arbeitsbereich_05_19_700pixel

Modernes Lernen fortgesetzt

Weitere Arbeitsplätze nach Erfolg des Lernzentrums an der Mainzer Uni

philipparchitekten-annaphilipp-villafroeschle_2_420_700pixelj4uVuQ9aJBQqv

Baumhaus purissimo

Villa schenkt ein ruhiges Lebensgefühl im grünen Naturraum

wbo-09-bernoully-full-12-_15_700pixel

Aus einem Guss

Das Raumprogramm sollte auf eine vierköpfige Familie zugeschnitten sein, auf der Wohnebene sollte größtmögliche Offenheit herrschen und es sollten…

0B5C9652-4F2E-49BF-9B79-C61D85A2A148_19_700pixel

Geschützte Oase

Familiengerechter Garten als perfekte Erweiterung des Wohnraums

Einladend und einheitlich

Wohlfühlatmosphäre macht die Arbeit in einer Bürogemeinschaft angenehmer

Grau raus – Farben rein

Ein ehemals versiegelter Innenhof wird zur grünen Oase

JH3039-200_15_700pixel

Ruhe und Würde

75 Wohnungen in Passivhausbauweise in Frankfurt-Nied