Alhambra im Schlachthofviertel
Das neue Volkstheater gleicht einer Mischung aus Industriegebäude und einem maurischen Palast
Eine Reihe von an Wunder grenzende Ereignisse sind bei diesem Theaterneubau zusammengekommen: Bauzeit und die kalkulierten Kosten wurden eingehalten, worauf die Architekten und alle am Bau Beteiligten auch zurecht sehr stolz sind. Die Stadt München ließ ein neues, größeres, schönes Volkstheater bauen und hat dafür das international renommierte Architekturbüro Lederer Ragnarsdóttir Oei, kurz LRO, auserkoren. Voraussetzung dafür war, dass Intendant Christian Stückl das Haus nun schon über zwei Jahrzehnte hinweg zu einem der bestbesuchten Theater Münchens machte. Nun ist das neue Volkstheater im Schlachthofviertel Realität.
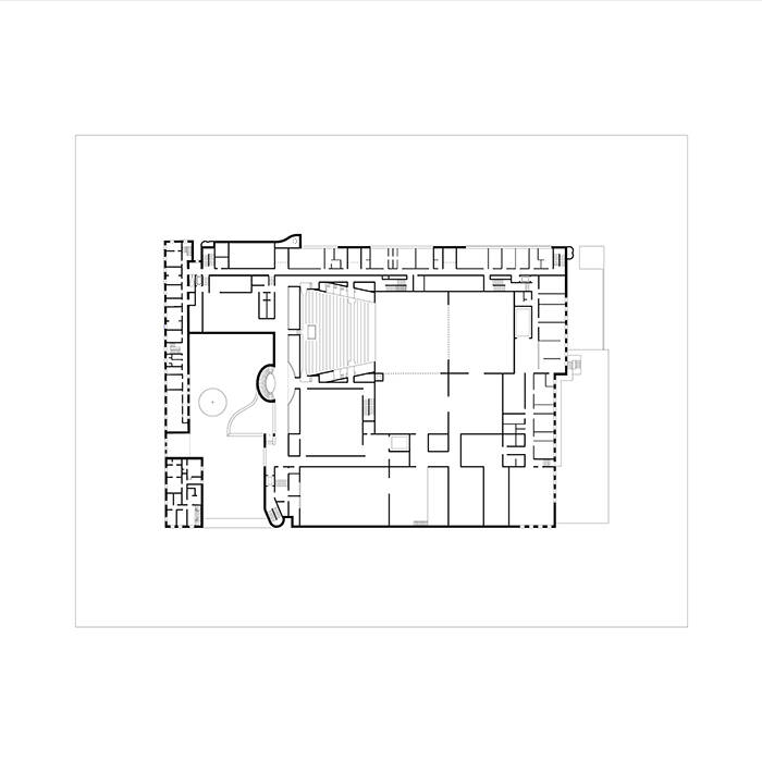
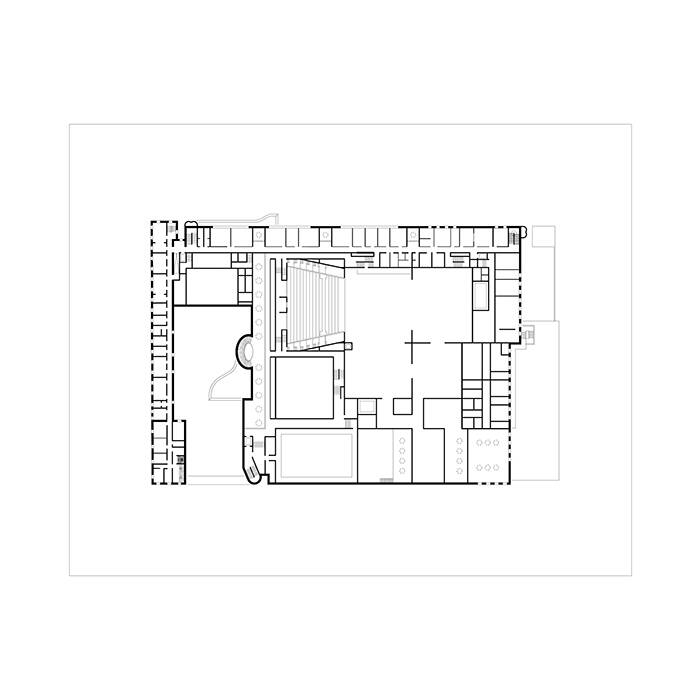
Zu den Fakten: Auf einer Fläche von 50 Hektar entwickelte das Stuttgarter Architekturbüro ein architektonisches Highlight. Der Bauplatz machte es nötig, einige Erfordernisse zu berücksichtigen: Die denkmalgeschützte Häuserzeile in der Zenettistraße musste erhalten werden und aus Rücksicht auf die Bewohner der Tumblingerstraße durften auf dieser Seite im Westen nur geräuscharme Funktionen untergebracht werden. Dem vormals industriellen Standort gemäß kam nur Ziegel als adäquates Baumaterial in Frage.
Man gelangt durch einen flachen gemauerten Bogen – ein wunderbares, anlockendes Öffnen der Ziegelfassade – in einen Innenhof, der gleichzeitig auch Vorplatz ist. Ein kleiner Teil des Karrees ist die Rückseite eines der denkmalgeschützten Häuser, dessen Fassade roh mit all ihren Zeitspuren belassen wurde und in dem nun die Verwaltung und Künstlerwohnungen untergebracht sind. Der Altbau wird durch den Torbogen mit dem Neubau verbunden, in den der Haupteingang führt. Innen befindet sich das große Foyer mit Garderobe, Pausenbar, Sitzmöglichkeiten und einem räumlich sehr großzügigen Restaurant, das im Sommer sogar auf eine Terrasse gen Osten erweitert werden kann. Und man betritt hier das Reich der Farben. Bunt, aber dennoch sanft. „Es sind die Le Corbusier-Farben“, wie Arno Lederer verkündet, so wie man ihm überhaupt den Stolz auf sein jüngstes Bauwerk anmerkt. „Wir haben das einfach gemacht, ohne langes Herumdiskutieren“, fügt er hinzu. Und es passt: Tiefblau der Eingangsbereich, zartgelb die Wände und lindgrün die Wangen der Treppen, die nach oben ziehen, wo sich die Theatersäle befinden. Ein großer Saal für 600 und ein kleiner für 250 Zuschauer. Im großen Saal gibt es ein Halbrund vor dem Vorhang, ein richtiger Orchestergraben, sodass sogar Opern, Musicals oder Konzerte stattfinden können. Zur Erläuterung – der Name „Volkstheater“ ist fast nur noch Tradition. Es werden keine Schenkel-Klopfer-Volksstücke in breitem Dialekt aufgeführt, sondern gegen den Strich gebürstete Klassiker und zeitgenössisches Theater sowie ein inzwischen berühmtes Festival der Newcomer: „Radikal jung“. Die verborgenen Abteilungen, das technische und kreative Herz, das riesige Bühnenhaus samt Turm, die Werkstätten, Proberäume, Intendanz, Garderoben etc., all das verbirgt sich zusätzlich hinter den Kulissen. Wer mag, kann eine Führung buchen.
Fotos:
Roland Halbe
www.rolandhalbe.eu
(Erschienen in CUBE München 04|21)
