Wohnflair mittendrin
Ein Mehrfamilienhaus in Bottrop vereint Wohnqualität und Innenstadtnähe
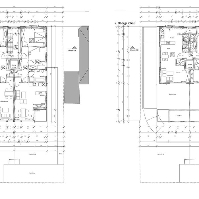
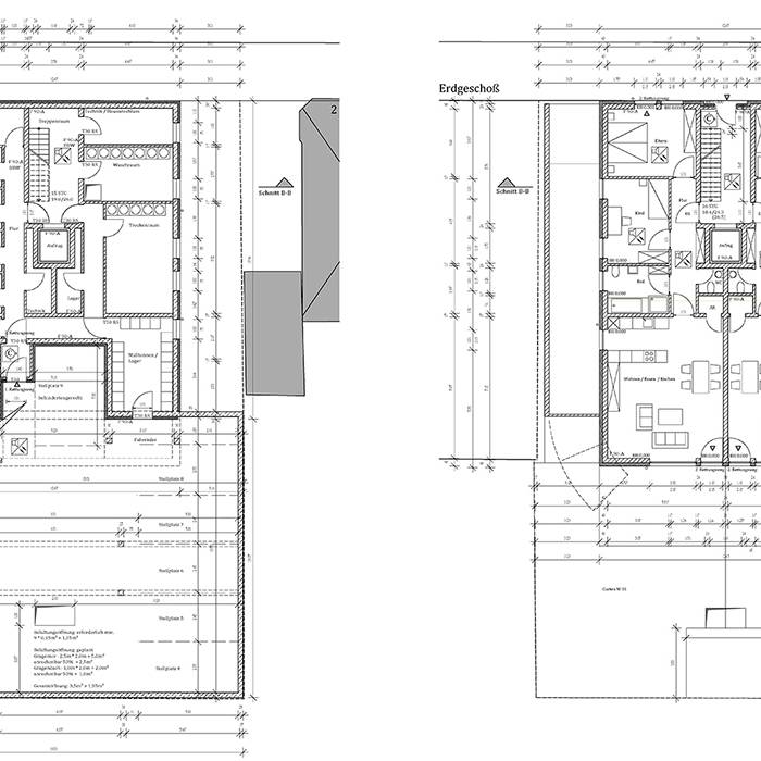
Mit rund 117.000 Einwohnern ist Bottrop eine der kleineren Großstädte im Ruhrgebiet. Seit 2010 hat sie als Modellstadt für den Klima- und Strukturwandel (InnovationCity) ihren Bekanntheitsgrad gesteigert. Im Herzen von Bottrop befindet sich der Neubau eines Mehrfamilienhauses, das der Architekt Dr. Thorsten Henkel geplant und umgesetzt hat. Das Fünffamilienhaus liegt zentral in der ruhig gelegenen Steinmetzstraße, von der die Innenstadt mit zahlreichen Einkaufsmöglichkeiten fußläufig erreichbar ist. Darüber hinaus ist der Naherholungsraum Stadtgarten mit seinen gepflegten Grünanlagen, Sport- und Spielflächen und dem Josef Albers Museum gleich um die Ecke gelegen. Der Bottroper Architekt hat das Gebäude mit barrierefreiem Zugang und Aufzug sowie einer begrünbaren Tiefgarage mit E-Ladestationen für jede Wohneinheit geplant. Auch die Energieversorgung erfolgt nach Umweltgesichtspunkten.
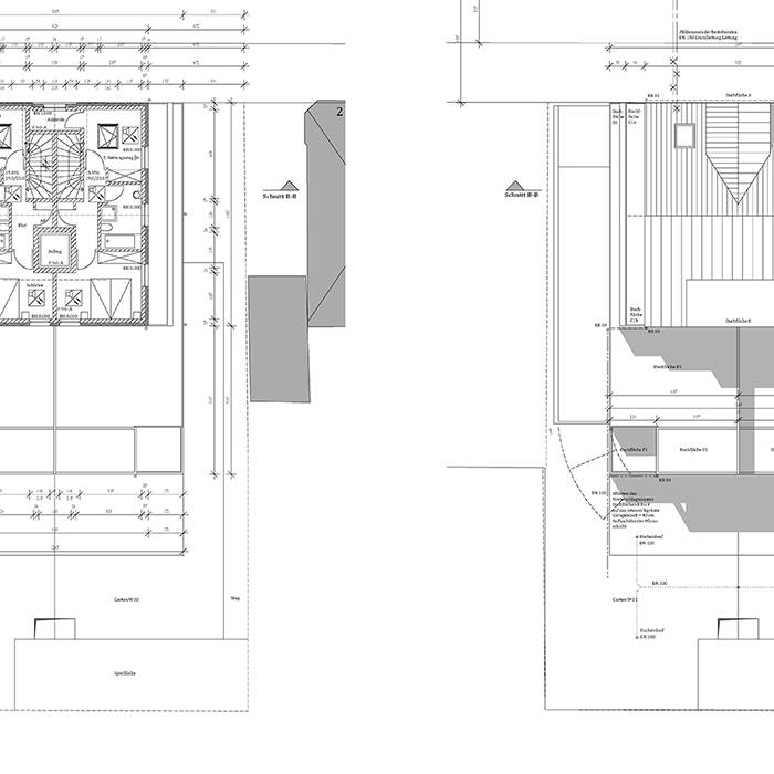
Das Gebäude in strahlendem Weiß und mit anthrazitfarbenen bodentiefen Fenstern wurde in Massivbauweise aus Kalksandstein erstellt und hat zur Steinmetzstraße drei, zum Gartenbereich zwei Vollgeschosse. Das oberste Geschoss erhielt ein Satteldach, das traufständig zur Steinmetzstraße ausgerichtet ist. Im Untergeschoss befinden sich die Kellerräume, gemeinschaftliche Wasch- und Trockenräume sowie ein Fahrradkeller und die Tiefgarage mit neun Einstellplätzen, von denen einer barrierefrei ist. Der Aufzug führt von dort aus bequem in alle Etagen, wobei pro Etage zwei spiegelgleiche Wohneinheiten mit großzügigen Grundrissen integriert sind. Die exklusive Ausstattung reicht von Kunststofffenstern mit dreifacher Wärmeschutzverglasung und elektrisch betriebenen Rollläden über Fußbodenheizung, Bäder mit Badewanne und ebenerdiger Dusche von namhaften Herstellern bis zu hochwertigen Bodenbelägen und einer Gegensprechanlage mit Videoüberwachung. Die dazugehörigen Balkone sind mit Blick ins Grüne ausgerichtet. Besonders reizvoll ist die Maisonettewohnung mit ca. 210 m², die sich durch einen offen gestalteten sehr großen Wohn- und Essbereich sowie eine imposante 65 m² große Dachterrasse mit südlicher Ausrichtung und Pflanzbeet auszeichnet. Zur zeitlos modernen Anmutung tragen die Balkongeländer aus Edelstahl bei, die dem Gebäude zudem eine gewisse Leichtigkeit verleihen. Besonders an die sich ändernden Klimabedingungen ausgerichtet ist die energiesparende und wartungsarme Heizungsanlage, die über eine Sole-Wasser-Wärmepumpe betrieben wird und neben der Heizfunktion auch Kühlung im Sommer ermöglicht.
Fotos:
Architekturbüro Dr. Henkel
(Erschienen in CUBE Ruhrgebiet 02|21)









