Ein Zuhause für Senioren
Ein Wohnhaus in Oer-Erkenschwick berücksichtigt in besonderem Maße die Bedürfnisse Älterer
Wie werden wir im Alter wohnen? Diese Frage beschäftigt viele Menschen. Eine Teilhabe am gesellschaftlichen Leben soll ebenso möglich sein, wie der Wohnraum erschwinglich und die Ausstattung barrierefrei. Bei gefördertem Wohnraum müssen noch zahlreiche weitere Kriterien erfüllt werden, wissen Fabian Bergfort und Sebastian Sehr von der Sustina AG, die das Projekt zusammen mit dem Architekturbüro Lecke entwickelt haben. Beide Münsteraner Unternehmen wurden für ihre gemeinsame Leistung mit einer Anerkennung beim BDA Architekturpreis 2023 gewürdigt.
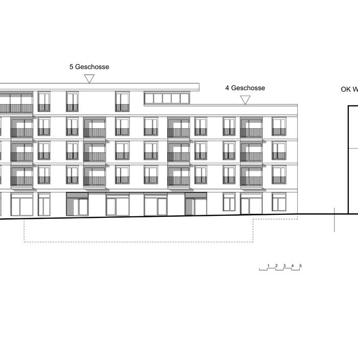
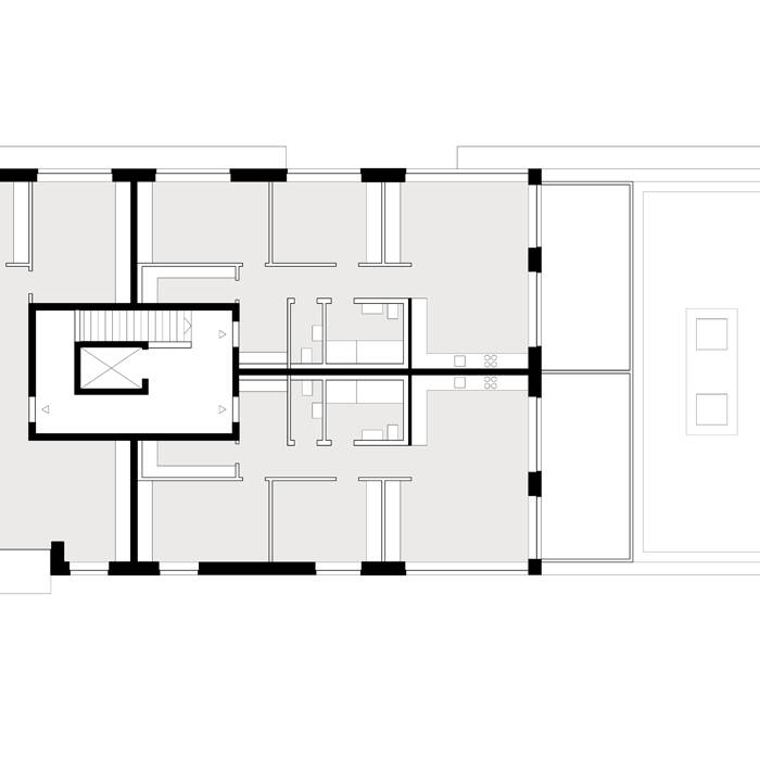
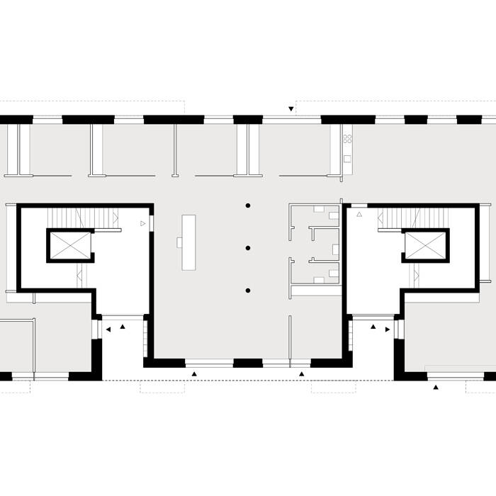
Das neue Mehrfamilienhaus befindet sich in einer jahrzehntealten Baulücke in zentraler Lage gegenüber vom Rathaus, in der Nähe zur Innenstadt und zum Stadtpark sowie in guter Erreichbarkeit zum ÖPNV. In dem Gebäude befinden sich 24 geförderte Zweizimmerwohnungen mit privaten Loggien sowie drei freifinanzierte Penthäuser mit großzügigen Dachterrassen und Blick ins Grüne. Für die Fassade wurde verschiedenfarbiger Klinker eines regionalen Herstellers gewählt. In dem sie sich nach außen unterscheiden, können so unterschiedlichen Nutzungen abgelesen werden. Ein weiteres Plus: Klinker ist widerstandsfähig, langlebig und wartungsarm und passt von der Preisgestaltung, bei Verzicht auf Sonderformate oder Formsteine, zu bezahlbaren Fassaden und somit zu bezahlbarem Wohnraum. Das zum Gebäude gehörende Carport ist mit einem Gründach ausgestattet, für Elektromobilität stehen Einrichtungen im Hof bereit. Erschlossen wird die barrierefreie Immobilie durch zwei großzügige Treppenhäuser, die dank Oberlichtern mit natürlichem Licht versorgt werden. Die Hausflure sind breit und eigenen sich für Rollatoren, die Briefkästen sind zur barrierefreien Nutzung liegend angeordnet. Um für Notfälle gerüstet zu sein, sind alle Aufzüge für den Liegendtransport ausgestattet. Das Erdgeschoss ist als flexible Gewerbefläche geplant, mit Büros für den örtlichen Caritasverband, einem kleinen Café sowie einem Gemeinschaftsraum für alle Bewohner:innen. Die Flächen können bei Bedarf ebenfalls zu Wohnungen umgenutzt werden. Die Wohnungsgrößen wurden bewusst bis maximal 55 m² gewählt, wie Architekt Sebastian Sehr erläutert: „Wenn im geförderten Wohnungsbau ein Paar auf 70 m² lebt und einer verstirbt, muss der zurückbleibende Partner die Wohnung aufgeben, da der Wohnberechtigungsschein in NRW für eine Person nur Wohnungen bis 55 m² zulässt.“ Die Lösung waren kompakte, aber großzügig wirkende und mit bodentiefen Fenstern gestaltete Zweizimmerwohnungen, die diese Grenze einhalten.
www.sustina.ag
www.lecke-architekten.de
Fotos:
Mario Brand
www.mariobrand.net
Fabian Bergfort
(Erschienen in CUBE Ruhrgebiet 02|24)

