Mobilitätsdenkmal mit Hotel

Die einstige Garage wird nun mit Designermöbeln „aufgemöbelt“

15_220713_10_17_10_15_700pixel

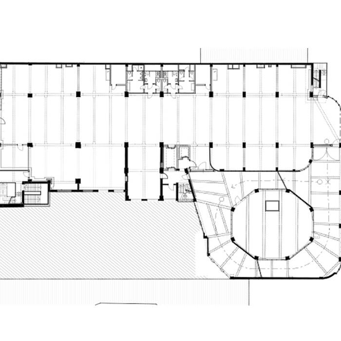
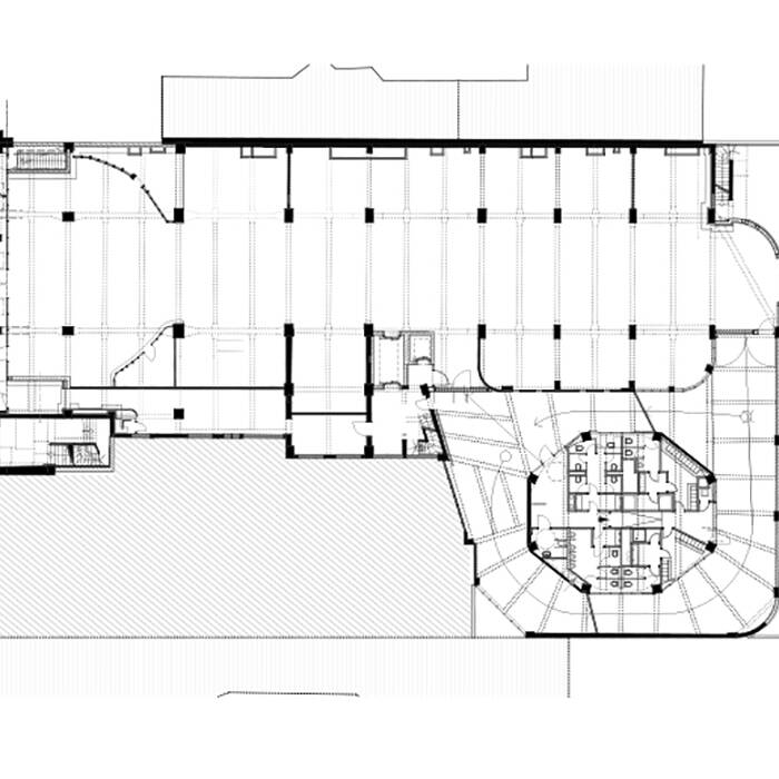
Die Namensgebung „Kant-Garagenpalast“ deutet schon an, dass es sich bei dieser Garage um etwas ganz Besonderes handelt: Sie wurde in der Zwischenkriegszeit von 1920 bis 1929 errichtet. Inzwischen hat sie Denkmalstatus. Wie der Name schon sagt, liegt sie an der Kantstraße in Charlottenburg. Sie ist die älteste erhaltene Hochgarage Europas mit doppelgängiger Wendelrampe und weltweit die einzige Hochgarage mit Vorhangfassade. Oft schon wurde mit der Entscheidung gerungen, diese abzureissen oder zu erhalten, bis der Denkmalstatus verliehen wurde und sich eine Idee für die Umnutzung ergab. Ein Händler von Designmöbeln zeigte Interesse einzuziehen. Die Besucher:innen wandeln nun durch das einstige Parkhaus, und statt der alten Heinrich-Boxen gibt es jetzt Verkaufs- und Ausstellungsflächen. Die Architekten Nalbach & Nalbach konnten für die Umbauarbeiten und den Erhalt der geschichtsträchtigen Fassade gewonnen werden konnte. Das Architektenpaar hat sich den Ruf, mit Sorgfalt und Sachverstand an ihre Bauaufgaben heranzugehen, über Jahrzehnte erworben. Anstelle des alten Werkstattgebäudes nebenan planten sie gleich noch ein Hotel hinzu, das wie die ehemalige Garage von „stilwerk“ betrieben wird. Eines der Hauptanliegen der Architekten war, so wenig wie möglich zu verändern und so viel wie möglich der alten Funktionen ablesbar zu lassen. Neu eingebaut wurden Aufzüge, einer für die Garage und einer für das Hotel. Johanne Nalbach ist stolz auf die Rettung des Gebäudes. Die Doppelhelix nennt sie die „Guggenheim-Rampe“. Ebenso auf die kunstvoll erneuerte vorgehängte Fassade. Dazu wurde die Originalfassade an der Kantstraße komplett ausgebaut, im Werk restauriert und mit transluzentem historischem Drahtglas versehen. Das Filigrane der Einfachverglasung wurde auf diese Weise erhalten. Eine zweite gläserne Fassade im Innern dient dazu, die gesamte für die neue Nutzung erforderliche Technik unterzubringen. Die gewellte historische Vorhangfassade an der Rückseite war leider nicht zu retten. Die Architekten planten eine neue Fassade, die trotz der neuen bautechnischen Anforderungen dem Original ziemlich nahekommt. Das Hotel nebenan orientiert sich an der Traufhöhe der Nachbargebäude mit einem aufgesetzten Schrägdach. Es hat sieben Etagen plus einem Dachgeschoss mit 61 Zimmern. Die Fassade ist mit in verschiedenen Grautönen changierenden Keramik-„Baguettes“ verkleidet, die Bezug auf die Keramikverkleidung der Kantgarage nimmt. Das Dachgeschoss wirkt mit seiner Neigung von 60 Grad wie eine Dachschräge. Ein viergeschossiges Rückgebäude schließt sich im Süden an. Der Hof, mit Sitzgelegenheiten ausgestattet, ergibt einen Garten für die Hotelgäste.

www.johanne-nalbach-architekten.de

Fotografen:

Peter Knaak 

Stefan Josef Müller
stefanjosefmueller.de

(Erschienen in CUBE Berlin 01|23)

 

 

 

Nothing found.

Harmonisch eingefügt

Neubau-Ensemble wahrt den historischen Bezug und entwickelt eigene Identität

Traditionell und Modern

Traditionell und Modern

Massivholzhaus ist der Publikumsliebling beim Rosenheimer Holzbaupreis

Erdverbundene Leichtigkeit

Winkelförmiger Bungalow auf Sockel mit Höfen bildet einen geschützten Gartenbereich

Nothing found.

Ansicht-West_15_700pixel

EIn geknicktes Haus

Zwei Häuser unter einem Dach – zum Wohnen und Arbeiten

IMG_5152_15_700pixel

Jetzt auch in Berlin

Von der Beleuchtung bis zum Bodenbelag: Das Netzwerk Berlin zeigt innovative Raumlösungen

Waldhornweg_06_15_700pixel

Holz in den Wald tragen

Auf einem Waldgrundstück in Potsdam enstanden zwei Holzhäuser

fine-interior-interior-design-cityappartment-1-_15_700pixel

Back to the Future

Vintage ist in – dies macht sich eine Interior Designerin zunutze

ISLA-SCHREIBTISCH8_15_700pixel

Langlebig und natürlich

Nicholas Blears entwirft nachhaltige Möbel in skandinavischem Design

P8053357_15_700pixel

Stadthaus Maxima

Schlichte Eleganz – ein moderner Kubus mit klassischen Anlehnungen

W-J_WALDOW-4_15_700pixel

Drei ungleiche Geschwister

In Reih und Glied: Ein Geschäftsgebäude und zwei Wohnhäuser in Oberschöneweide