Ästhetisch und funktional
Feuerwehr und Bauhof profitieren von Synergieeffekten des gemeinsamen Standorts
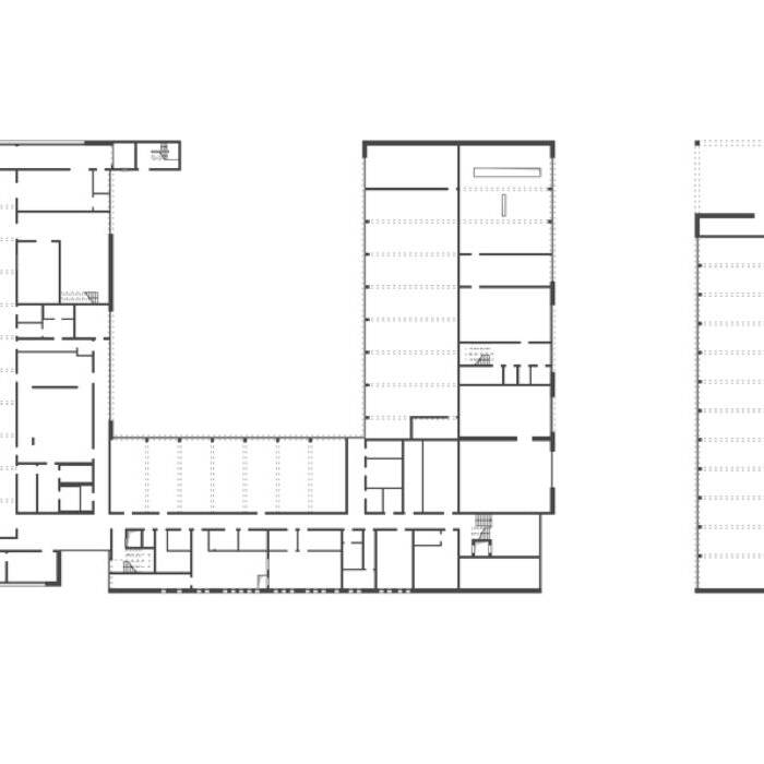
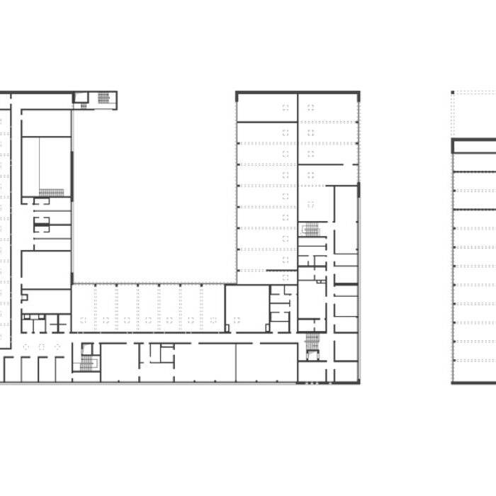
Die von dasch zürn + partner Architekten geplante Anlage besteht aus einem Feuerwehrgebäude und einem Baubetriebshof auf einer Bruttogeschossfläche von 7.165 m². Mit dem Neubau eröffnen sich der Feuerwehr neue Möglichkeiten für die Unterbringung von Material sowie für Übungen und Schulungen – und der Standort gewährleistet die Zehn-Minuten-Hilfsfrist. Das Feuerwehrgebäude nimmt eine Fahrzeughalle für 26 Einsatzwagen, einen Schlauch- und Übungsturm, eine Kfz-Werkstätte und Waschhalle, eine Atemschutzwerkstatt und Funkzentrale sowie Schulungsräume auf. Der Baubetriebshof verfügt über eine Halle für 12 Fahrzeuge sowie eine Schreiner- und eine Schlosserwerkstatt. Initiiert hat die Zusammenlegung an einem Standort der Bauhof, dessen bisherige Räumlichkeiten sanierungsbedürftig waren. Synergieeffekte ergeben sich durch gemeinsam genutzte Räume an den Schnittstellen zwischen Feuerwehr und Bauhof. Dazu gehören sowohl die Waschhalle als auch die Kfz-Werkstatt, ein Besprechungs- und ein Schulungsraum.
Eine bauliche „Fuge“ verdeutlicht nach außen die unterschiedlichen Nutzungen der beiden Gebäudeteile mit Schlauchturm und dem Höhensprung, der aus dem aufsteigenden Gelände resultiert. Über die einheitliche Materialität in Sichtbeton sind sie dennoch zu einer Gesamtanlage verknüpft. Für die 60 Zentimeter starken Wände wurde Dämmbeton verwendet, der das Raumklima auf natürliche Weise reguliert. Diese Materialästhetik wird in den Innenräumen fortgeführt. „Uns hat die Möglichkeit fasziniert, mit Leichtbeton innen und außen fertige Oberflächen zu erhalten, die weder gestalterisch noch bauphysikalisch zusätzlich aufgebracht Schichten benötigen“, sagt Architekt Helmut Dasch. Entstanden ist ein spannungsreiches Wechselspiel von großflächigen geschlossenen Wandflächen mit den Verglasungen der Fenster- und Torflächen. „Wir wollten ein Gebäude schaffen, dessen Erscheinungsbild dem entspricht, was eine Feuerwehr verkörpert: beispielsweise Robustheit, Sicherheit, Verlässlichkeit und handwerkliches Können“, betont Dasch. Der Hangsituation entsprechend ist die Anlage terrassiert und eine Rampe verbindet die beiden Hofebenen miteinander. Feuerwehr und Bauhof haben getrennte Ein- und Ausfahrten. Die Funkzentrale am Kopfende des Gebäudes ermöglicht den direkten Blick in die Fahrzeughalle des 1. Abmarsches sowie auf die Ein- und Ausfahrt und die PKW-Stellplätze. Eine extensive Begrünung auf dem Flachdach dient als mechanischer Schutz der Dachhaut und als Speicher für Regenwasser.
Fotos:
Bernhard Tränkle
www.architekturimbild.de
Henrik Schipper
www.henrikschipper.de
(Erschienen in CUBE Stuttgart 02|24)




