Neue Markenwelt
Neubauten ergänzen den Unternehmensstandort mit Hochhaus zum sinnbildlichen Gebäudeensemble
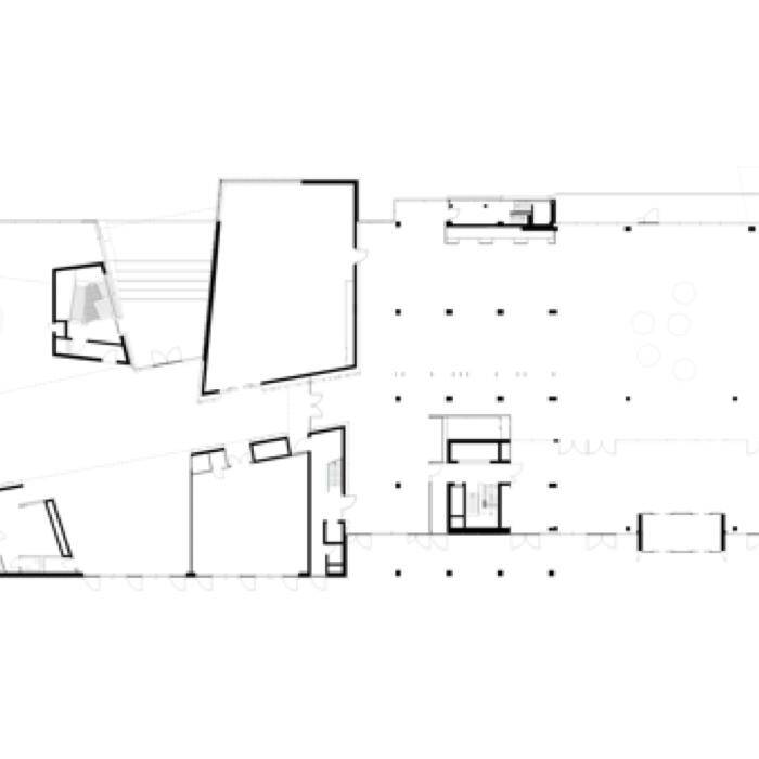
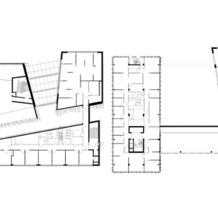
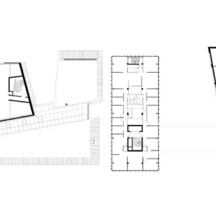
Das Entwurfskonzept der neuen Markenwelt am Stammsitz des weltweit agierenden Unternehmens Stihl basiert auf der Idee, die Hauptfunktionen des Raumprogramms mit Ausstellungs-, Konferenz- und Büroflächen in ablesbaren Baukörpern zu integrieren. Westlich des Hochhauses positioniert, entwickelt sich die Kubatur auf dem Untergeschoss des bisherigen Produktvorführzentrums. Schräg geführte Einschnitte „zersägen“ sinnbildlich den Baukörper, verleihen ihm eine skulpturale Anmutung und verweisen auf das weltbekannte Produkt des Bauherrn. Der große Längsschnitt öffnet eine zentrale Erschließungsachse und leitet Besucher:innen in die Ausstellung. Die Ausstellungsflächen erstrecken sich über drei Ebenen, die an drei tragenden Betonelementen aufgehängt stützenlos zu schweben scheinen. Blickbeziehungen zu den jeweiligen Themenfeldern der Schau erlauben eine gute Orientierung und geben dem Innenraum seine spannungsreiche und unverwechselbare Charakteristik.
Das zu allen Seiten verglaste Erdgeschoss erzeugt einen unmittelbaren Bezug zum Landschaftsraum der Flussaue und des Flussufers. Im Bereich des Cafés und Fanshops verstärkt die dem Geländeverlauf zur Rems folgende Abtreppung der Raumzonen den Eindruck der einfließenden Landschaft. Auch die vorgehängte, hinterlüftete Fassade in patiniertem Messington bettet die Baukörper in den Naturraum des eng geschnittenen Tals. Formgebung und Materialität der Markenwelt finden sich auf der anderen Seite des Hochhauses im zweiten neuen Baukörper mit Büros in den Obergeschossen und dem neuen Betriebsrestaurant im Erdgeschoss wieder. Durch den sich zum Remsufer verbreiternden Gebäudekörper wurden an der attraktiven Uferseite zusätzliche Büroarbeitsplätze geschaffen.
Ergänzt wird das Ensemble der beiden Neubauten durch das Bestandshochhaus aus den 1970er-Jahren, das umfassend saniert wurde. Auf sechs Etagen sind moderne Arbeitsplätze, Besprechungsräume und Aufenthaltsbereiche entstanden. Ein repräsentatives Foyer empfängt Mitarbeitende und Gäste. Vertikale Lamellen prägen die Fassade, die die Farbe und das Material der Markenwelt aufgreift. Durch die Tiefe der Lamellen von 20–40 Zentimetern und deren Anordnung in einem Abstand von ca. 140 Zentimetern erscheint die Fassade in der perspektivischen Ansicht als geschlossene Fläche und bindet das Hochhaus in das Erscheinungsbild des neuen Gebäudeensembles der Markenwelt und des Betriebsrestaurants ein. Da für die Verglasung der Hochhausfassade elektrochromes Glas verwendet wurde, konnte auf einen außenliegenden Sonnenschutz verzichtet werden.
Fotos:
Brigida González
www.brigidagonzalez.de
(Erschienen in CUBE Stuttgart 03|24)




