Mediterraner Flair
Urbanes Stadtquartier ersetzt ehemaliges Gewerbegebiet
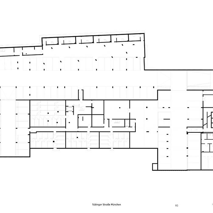
Im eher gewerblich geprägten Stadtteil zwischen Schwanthalerhöhe und Laim entsteht auf einer Industriebrache zwischen Hansa- und Tübinger Straße ein großes Wohnviertel mit einem Bürogebäude und einer Vielzahl an Einzelhandelsflächen. Mit einer Durchwegung und einem innen liegenden Platz wird hierbei ein urbanes Quartier geschaffen, das mit Baukörpern in unterschiedlichster Bauweise nicht einfach eine gleichförmige Siedlung ist, sondern ein gestaltetes Viertel, das individuelle Strukturen aufweist. Der Entwurf für dieses sympathische Konzept der qualifizierten Verdichtung stammt von Meili, Peter Architekten, München, unter der Leitung von Florian Hartmann, Andreas Müsseler, Oliver Noak und Lisa Yamaguchi.
Die Bauarbeiten sind in zwei Bauabschnitte aufgeteilt, von denen der eine an der Hansastraße bereits fertig ist und der zweite, zur Tübinger Straße hin, im Wachsen begriffen ist und 2020 fertig sein soll. Vier Gebäude bilden ein Karree, umfassen mehrere Plätze, Wege und erzeugen so gleichzeitig Grünräume. Die straßenseitige 
Bürobebauung schließt den Blockrand an der Hansastraße. Das sechsgeschossige Gebäude schirmt die Wohnnutzung zur gewerblichen Straße hin ab. Eine mit glänzenden Keramikbändern untergliederte Glasfront bildet den Abschluss, der sich gelungen in die Umgebung integriert. Von hier aus gelangt man in den Innenhof, der freilich mit herkömmlichen Hinterhöfen nichts gemein hat.
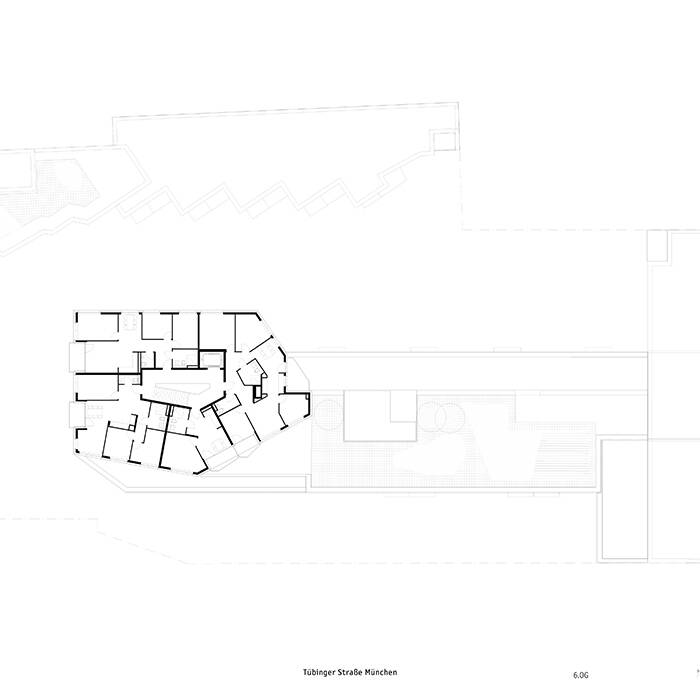
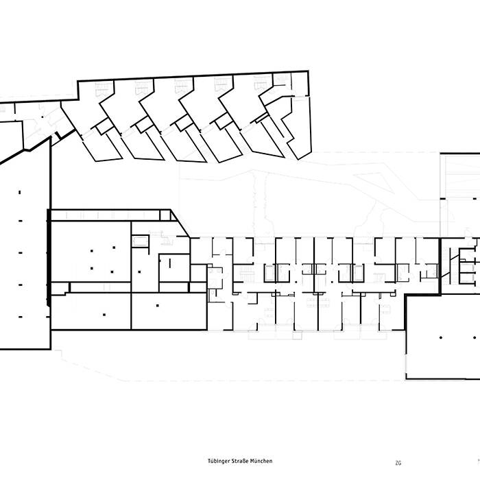
Linker Hand erstreckt sich bis tief in das Gelände des Hofes ein gelb verputztes Wohngebäude, das EOF-Wohnungen, d. h. Wohnungen mit einer einkommensorientierten Förderung, beherbergt. Rechter Hand im Hof, direkt an der Brandwand des Nachbargebäudes, sind im Zickzackkurs aneinandergereihte kleine Townhouses gestaffelt so angeordnet, dass sie sich gegenseitig nicht das Licht streitig machen. Die sechs Häuser liegen mit ihren „offenen Augen“ – wie die Architekten es ausdrücken – in südöstlicher Richtung. Einzelne Putzflächen wechseln sich hier mit dunkelroten Keramikflächen ab. Die Fenster und Türen werden mit warmen Holzelementen und Rahmen ausgebildet. Auch für die noch im Bau befindlichen Gebäude ist Mischnutzung von Wohnen und Einzelhandel vorgesehen. Alle vier Gebäude bilden sogenannte „Köpfe“ aus. Damit sind die siebengeschossigen Häuser beschrieben, welche die urbane Dichte wahrnehmbar machen und nach Fertigstellung den sogenannten „Stadtplatz“ markieren. Weiter südlich, zur Tübinger Straße hin, liegt der „Spanische Platz“, um den herum sich Geschäfte für die Nahversorgung, ein Kindergarten und Gastronomie gruppieren werden.
Fotos:
Florian Holzherr
www.florian-holzherr.com
(Erschienen in CUBE München 01|20)








































