Erweckungsergebnis
Ein großartiges Beispiel für Bauen im Bestand
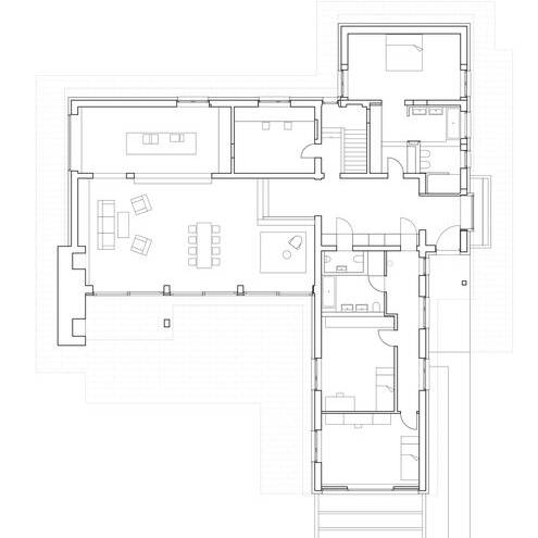
Wer lange sucht, der findet. Das mag im Märchen gelten, aber sicher nicht, was Wohnraum in München anbetrifft. In diesem Fall war das Glück (nach langer Suche) auf Seiten der Bauherren. Mit einer unkonventionellen Suchmethode fanden sie ihr Traumhaus, das wie ein verwunschenes Schloss hinter einem zugewachsenen Garten und in einem verwahrlosten Zustand auf einem großen Grundstück in Pullach stand: Eine klassische Villa aus den 1960er-Jahren, unbewohnt, räumlich und baulich mit hohem Potenzial. Nun musste ein geeigneter Architekt ermittelt werden, der ein Gespür für die „Erlösung“ des Gebäudes aus seinem Dornröschenschlaf hatte. Im Büro Andreas Ferstl Architekten fand die vierköpfige Familie das richtige Team, das es schaffte, das ursrpüngliche Haus 60 Jahre später in ein prachtvolles Eigenheim zu verwandeln. Dazu waren allerdings umfangreiche Eingriffe und Sanierungsmaßnahmen auf dem großzügigen Grundstück samt Swimmingpool im Vorgarten nötig. Ursprünglich war das Anwesen doppelt so groß. Die nördliche Hälfte ist inzwischen bebaut. Als die Villa in den 1960er-Jahren gebaut wurde – der Architekt ist nicht mehr ausfindig zu machen – lag das Grundstück am Stadtrand. Heute ist alles rundum zugebaut. Die als Bungalow geplante Villa hat allerdings ein flaches Satteldach, weil die Baugenehmigung es so vorschrieb. Der nahezu T-förmige Grundriss ist sehr ungewöhnlich: Ein langes rechteckiges Haupthaus wird im Osten durch zwei Flügelbauten ergänzt – der längere nach Süden, der kürzere nach Norden gelegen. Die neuen Besitzer verzichteten zugunsten eines großen Gartens auf den Pool.
Das Haus war mehrfach umgebaut worden und so mussten als Erstes Einbauten, „landhäusliche Verschmückungen“, wie die Architekten es nennen, entfernt werden. Der Eingangsbereich blieb wie ursprünglich im Osten. Rechts gelangt man zum Elternschlafzimmer plus Bad und Ankleide sowie zu einem Arbeitszimmer. Links, im längeren Flügel, liegt der Kindertrakt. Eine Treppe führt ins Untergeschoss, wo sich ein geräumiges Gästeapartment befindet. Das absolute Highlight aber ist der große Wohnbereich mit bodentief verglaster Fensterfront gen Süden. Durch Abriss einer Trennwand, hinter der sich die Küche und das Esszimmer befanden, ist nun alles in einen offenen Raum verwandelt und mit einem neuen Holzboden versehen. Ein mächtiger, mit Granitplatten verkleideter Innen- und Außenkamin, an den sich auf der Westseite das Haus anzulehnen scheint, ist zwar ein robustes, aus einer früheren Zeit stammendes Relikt, das sich aber großartig in das Gesamtbild einfügt.
Fotos:
Florian Holzherr
www.florian-holzherr.com
(Erschienen in CUBE München 03|21)

