Lichtvolle Metamorphose
Ein Altbaubüro wurde in großzügigen und reduzierten Wohnraum transformiert
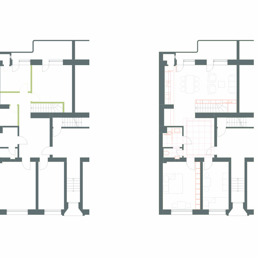
Der große Mehrwert von Gründerzeitbauten liegt nicht nur atmosphärisch in ihrem Altbaucharme – er liegt auch in Raumstrukturen, die sich als besonders flexibel erweisen. So auch im Fall eines denkmalgeschützten gründerzeitlichen Wohnensembles in Düsseldorfer Zentrumslage, in dem eine zweigeschossige Büroeinheit lag, die zu einer großzügigen Wohnung umgenutzt und umgebaut werden sollte. Das junge international geprägte Ehepaar mit Kinderwunsch wollte die kleinteilige Raumaufteilung in eine weiträumige Wohnsituation mit Gemeinschafts-, Arbeits- und Gästeräumen umwandeln – modern, lichtdurchflutet und mit Sichtbezügen in den Gartenhof. Böhme Bertossi Architekten aus Düsseldorf nahmen eine komplette Renovierung und Modernisierung vor. Dabei wurden die Räume in Teilen entkernt und zu einem harmonisch auf die Bedürfnisse des Ehepaars abgestimmten Layout neu geordnet.
Die früheren Büroräumlichkeiten sollten bis auf das höchste Maß als Wohnraum umgenutzt werden, sodass eine maximal nutzbare Wohnfläche gewonnen wird. Die Herausforderung bestand darin – wie bei jedem guten Bestandsumbau – etwas Neues mit Qualität und Charakter entstehen zu lassen. Innerhalb der strukturierenden Außenwände wurde die Wohnungsaufteilung so vorgenommen, dass sie einerseits das Potenzial der Wohnfläche maximiert, andererseits aber auch eine Ausgewogenheit der Räume untereinander entstehen lässt – mit perfekten Bewegungsabläufen. Der unproportionierte Büroraumbestand wurde so überarbeitet, dass fließende Räume mit einem starken Sichtbezug von innen und außen entstehen. Innenliegende frühere Abstellräume wurden für die unterschiedlich zugeschnittenen und ausgestatteten Bäder genutzt: Alle sind mit einer separierten Toilette ausgestattet; das Bad im Souterrain hat zudem in direkter Anbindung an das Elternschlafzimmer ein japanisches Bad mit Wasch- und Duschbereich sowie separierter Badewanne erhalten. Von hier aus ergibt sich auch – für jedes traditionelle japanische Bad unabdingbar – ein Ausblick in den Garten und in die Natur. Aber auch über die Tiefe des Erdgeschosses ergeben sich langgestreckte, weiträumige Sichtperspektiven komplett durch den Wohnraum. Das Tageslicht strömt dabei in die gesamte Wohnung von außen fließend ein. In dem introvertierten Entree, das über keine direkten Fensteröffnungen verfügt, sorgen zudem Lichtvouten an den Decken dafür, dass ein Gefühl von Tageslicht entsteht. Tragende Elemente und separierende Strukturen wurden beim Umbau reduziert und durch Einbauten ergänzt. So wurde die Treppenwand durch ein deckenhohes Regal als Raumtrenner ersetzt. Die dunkel gefasste Struktur wird dabei effektvoll von einer transluzenten Satinglasrückwand hinterleuchtet. Insgesamt ist die Auswahl der verwendeten Materialien bewusst auf wenige Elemente reduziert: Weiße Wände und Decken, beige Feinsteinzeugfliesen italienischer Produktion im Eingangsbereich und in den Bädern wurden mit dunklem Eichenholzparkett kontrastiert und strahlen so Wärme und Wohnlichkeit aus. Nach 16 Monaten Planungs- und Ausführungszeit konnte das Ehepaar sein neues Domizil beziehen.
www.boehme-bertossi.de
Fotos:
Jens Kirchner
www.jens-kirchner.com
(Erschienen in CUBE Düsseldorf 02|22)

