Skulpturales Spiel
Eine Villa besticht durch ihre plastische Komposition und Reduktion
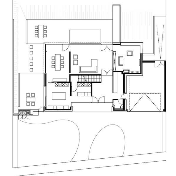
Der Krefelder Stadtteil Bockum ist für seine großzügigen Villenanwesen bekannt. Die Stadt legt großen Wert darauf, diese besondere Lage zu erhalten, die eine herausragende moderne Architektur hervorgebracht hat wie die Museen Haus Esters und Haus Lange. Auch das mit 1.800 m² besonders großzügige Grundstück der Bauherren ist hier gelegen – mit einer schönen Aussicht nach Süd-Westen auf den vorhandenen Baumbestand. Relativ geschlossen und doch gastfreundlich wünschten sie sich die Straßenfront. Die Gartenseite hingegen sollte sich möglichst großzügig öffnen, um einen besonders freien Ausblick aus dem Haus hinein in den Garten zu bieten.
Das beauftragte Krefelder Architekturbüro von Houwald Architekten entwickelte und realisierte einen skulpturalen Entwurf, der dem künstlerischen Verständnis der Bauherren entspricht. Die fehlende Einfriedung des Vorgartens gibt den Blick auf die Straßenfront des Gebäudes ungehindert frei. Der zweigeschossige Baukörper des Hauses und die Doppelgarage fügen sich dabei zu einer gemeinsamen Komposition. Der Rücksprung des Eingangsbereiches, aber auch die horizontal und vertikal über Eck in die Ziegelfassade eingeschnittenen, schmalprofilierten Fensterbänder lassen den Baukörper außerordentlich plastisch wirken. Auch auf der Gartenseite setzt sich dieses Spiel von geöffneten, geschlossenen und zurückspringenden Flächen weiter fort. Die Reduktion auf das Wesentliche zieht sich gleichsam als roter Faden durch das Gebäude. Sowohl die Materialen als auch die Anschlussdetails sind auf ein Minimum reduziert und heben somit die einzelnen Flächen besonders hervor. Für die Fassade wählten Bauherren und Architekt den Klinkerstein Jaco GR 201 aus dem Sortiment des Rheinischen Ringofens der Firma Gillrath. Die im Vergleich zum Normalformat kleinere verwendete Klinkergröße des Dünnformats unterstreicht die Proportionen der Architektur und lässt das Bauwerk lebendig erscheinen. Die in einer Strangpress-Sortierung konfektionierten Ringofenklinker haben eine sehr dichte Brennhaut. Anders als herkömmliche Wasserstrichklinker wirken sie dadurch besonders farbintensiv und glänzend. Den Bauherren gefiel zudem die dunkle Durchfärbung, die allein durch die Art des Brandes mit hohen Temperaturen, starker Kohlezugabe und einer langen Brennzeit erzeugt wird – und nicht etwa durch die Zugabe von künstlichen Engoben, Glasuren oder anderen Farbzusätzen. Ebenso ehrlich wirkt auch der die Fassade prägende, ungewohnte Mauerwerksverband: Es handelt sich um einen Blockverband, bei dem sich eine Reihe Läufer stets mit einer Reihung von Köpfen abwechselt. Damit orientiert sich die Villa an Krefelds langer Klinkertradition, speziell auch den Häusern Esters und Lange von Mies van der Rohe.
Fotos:
Jannik Spatz
(Erschienen in CUBE Düsseldorf 02|21)



