Dreieinheit
Mitte erneuert sich und wächst weiter
Vis-à-vis der berühmten Hackeschen Höfe in Mitte entstand ein stattlicher Neubau beziehungsweise vielmehr eine ganze Häuserzeile, denn der Neubau besteht aus drei Häusern. Der Entwurf stammt von Tchoban Voss Architekten und ist natürlich wohlüberlegt: Drei unterschiedliche Fassaden unterteilen die straßenseitige Vorderfront des Bauwerks – zwei aus Naturstein und eine aus Klinker. So ergeben sich drei Häuser mit gemischten Nutzungen als Büro-, Geschäfts- und Wohngebäude. Überhaupt ist dieser zum Scheunenviertel gehörige Kiez einer der lebendigsten des neuen Nachwende-Berlins. Hier ist der Bär los, wie es umgangssprachlich heißt: Junge Modelabels, unzählige Bars, Kneipen und Restaurants und zwischendurch Kunstgalerien schaffen eine bunte Mischung, die besonders von den jungen Berlinern und von Touristen bevorzugt wird.
In das mittlere und hellste der drei Häuser zog im vergangenen Dezember der zweite Apple Store Berlins ein. Der Store mit großen bodentiefen Schaufenstern und einem riesigen Raum, in dem nur blanke Holztische stehen wie bei Apple am Kurfürstendamm, ist schon einmal ein Paukenschlag für das Dreierensemble. Auch in den Nachbargebäuden finden sich großzügige Ladenflächen im Sockelgeschoss.
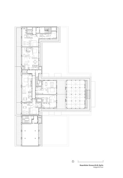
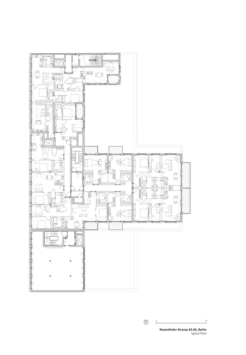
Der dreigliedrige Neubau ist in Stahlbetonbauweise mit sieben oberirdischen und zwei unterirdischen Geschossen errichtet. Ein Staffelgeschoss im 6. Obergeschoss ermöglicht Dachterrassen auf der Vorder- und der Rückseite. In Haus 44 und Haus 45 befinden sich Ein- bis Dreizimmerwohnungen in den oberen Geschossen, wohingegen Haus 43 ein reines Geschäftshaus ist. Insgesamt hat der Bau eine Größe von 15.000 m² Bruttogeschossfläche. Sorgfältig herausgearbeitet sind die drei verschiedenen Fassadenmerkmale, Haus Nr. 43 erhielt eine vertikale grau-braune Natursteinfassade, die mit Stützen und halbrunden Lisenen gegliedert ist. Der Nachbarbau, Nr. 44, ist mit hellen Natursteinplatten im Farbton Moccacream aus Portugal verziert und Haus Nr. 45 hat eine Klinkerfassade. Auf der Rückseite schließt sich ein großer Hof an, zu dem alle Bewohner Zutritt haben.
Fotos:
Stefan Müller
www.stefanjosefmueller.de
Ilya Ivanov
www.photoivanov.com
(Erschienen in CUBE Berlin 03|22)
