Ganz stark, das kleine Haus

In Bochum-Ehrenfeld wurde ein in vielerlei Hinsicht ungewöhnliches Bauprojekt verwirklicht

a-Kleines-Grundstu-ck-Grosses-Haus-_10_700pixel

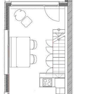
Baugrundstücke in guten Lagen sind rar gesät und aufgrund der großen Nachfrage kennen die Grundstückspreise nur eine Richtung: nach oben. So schien sich auch der Traum von Thomas Stark in Luft aufzulösen, in der Nähe seines Planungsbüros für Architektur und Innenarchitektur in Bochum-Ehrenfeld ein Grundstück für ein kleines Haus zu finden. Doch als „Mann vom Fach“ ließ sich der Bochumer nicht entmutigen und so steht heute in dem beliebten Viertel im Stadtteil Wiemelhausen in Bochums Süden auf einem nur 40 m² großen Grundstück ein Haus mit 60 m² Wohn- und Terrassenfläche.

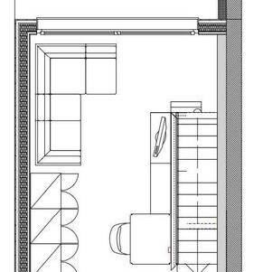
Und so nahm die Geschichte ihren Anfang: Stark Design hat seinen Sitz in einem alten Supermarkt der 1960er-Jahre im Hinterhof des Bochumer Ehrenfelds. Das letzte „Grundstück“, das Thomas Stark ausmachen konnte, war das Garagendach des ehemaligen Lagers. Genau hier plante der Innenarchitekt das kleinste Haus in Ehrenfeld, das mit seinen 3,80 m Breite eine schlanke Figur macht. Das an sich schon ungewöhnliche Projekt entpuppte sich auch in baurechtlicher Hinsicht als Abenteuer. Zum umfangreichen Regelwerk der Landesbauordnung NRW gehören unter anderem eine Stellplatzverordnung, erster und zweiter Rettungsweg sowie Abstandsflächen, die es einzuhalten gilt. Dass die Landesbauverordnung NRW dem Großprojekt letztlich ihren Segen gab, ist nicht zuletzt auch dem Nachbarn der Bebauung, der Bochumer Wohnstätten Genossenschaft, zu verdanken. Diese stimmte zu und war zu drei Baulasten bereit. Da sich der reine Holzbau zudem gut in die große Nachbarschaft der Bochumer Wohnstätten einfügt, war auch hier die letzte Hürde genommen. Erschlossen wird das Tiny House über einen Steg im Erdgeschoss. Dort sind Kochen und Essen kompakt, aber mit 8 m Raumtiefe gut untergebracht. Zum großzügigen Raumerlebnis tragen maßgeblich die Panoramfenster bei, die den Blick auf eine 15 m² große Terrasse ermöglichen. Warmes, dunkles Echtholzparkett ist kombiniert mit weißen Küchenfronten. Platz ist außerdem noch für Charles und Ray Eames La Fonda Chairs aus den 1960er-Jahren sowie eine Ecke für einen Lounge Chair. Ins rechte Licht rücken dies LED Leuchten in Mattschwarz. In das erste Obergeschoss führt eine in Stahl ST 37 gefaltete Treppe. Dort befinden sich ein kleiner Wohnbereich mit Home­office sowie ein Badezimmer. Möbliert wurde mit einem Home Desk von George Nelson und zwei FK 6725 Stühlen von Kastholm und Fabricius. Für stimmungsvolles Licht im Wohnbereich ist eine Bogenlampe von Castiglioni zuständig. Die dritte Ebene ist als Schlafbereich auf die 3,80 m Breite frei eingehangen.

www.stark-design.net

(Erschienen in CUBE Ruhrgebiet 03|20)

Architekten:

Stark Design
www.stark-design.net

Schalter, Steckdosen:

Busch Jaeger
www.busch-jaeger.de

Push Pull Lüfter:

Lunos
www.lunos.de

Beleuchtung:

Nimbus
www.nimbus-lighting.com
Fritz Hansen
www.fritzhansen.com
Flos
www.flos.com

Küche:

Häcker
www.haecker-kuechen.de

Geräte:

Blaupunkt
www.blaupunkt.de

Dusche:

Bette
www.my-bette.com

Badewanne:

Sanibel
www.sanibel.de

Waschtisch:

Ideal Standard
www.idealstandard.de

WC & Spülsystem:

Geberit
www.geberit.de

Fenster:

Innoutic
www.deceuninck.de

Boden:

Scheucher
www.scheucherparkett.at

Möblierung:

Walter Knoll
www.walterknoll.de
Vitra
www.vitra.com

Fotos:

Stark Design
www.stark-design.net

Nothing found.

Farbspektrum

Ein Business Club in Citylage setzt farbenreich auf Exzellenz und Vielfalt

Ein Teil des Waldes

Umbau einer Scheune zu einem modernen Rückzugsort

Passgenau am Bach

Eine geförderte Wohnanlage in Bergisch Gladbach ordnet sich kleinteilig in ihren Kontext ein

Ästhetik in jeder Hinsicht

Das Design einer oralchirurgischen Praxis vermittelt Ruhe, Kompetenz und Wärme

Nothing found.

IMG_3192_19_700pixel

Innen und Außen werden eins

Mediterrane Anmutung und eine klare Formensprache gehen Hand in Hand

THD_Rezeption_15_700pixel

Fit fürs Freizeitvergnügen

Fitnesslounge in Dortmund wurde zu einem Wohlfühlort für Sport und Entspannung umgebaut

Aus zwei wird eins

Ein Logistikunternehmen legt seine Standorte zu einer maßgeschneiderten Bürowelt zusammen

haus-kramer-075_bearb_700pixel

Gestalterische Klarheit

Ein modernes, auf Nachhaltigkeit ausgelegtes Einfamilienhaus

A-S_Kirchplatz-Beelen_2021-08-20_077_15_700pixel

Drei Einheiten – ein Haus

Ein Haus auf dem Land präsentiert sich spannend, modern und historisch geprägt zugleich

IMG_2793A_15_700pixel

„Die Stimmung ist positiv!“

Ein Gespräch mit dem Immobilienexperten Detlef Bloch über den regionalen Wohnungsmarkt

Georg-Pieron_1324_15_700pixel

Vertrauensvolle Atmosphäre

Die neuen Büroräume für eine Anwaltskanzlei in Essen wurden maßgeschneidert

Bredeney_20_302_RE2_15_700pixel

Charmant integriert

Wohnkomplex in Bredeney liefert Beispiel für den smarten Umgang mit bestehenden Bauflächen