Sinnlich ehrlich
Ein Einfamilienhaus in Mönchengladbach verbindet flexible Funktionalität mit klarer Ästhetik
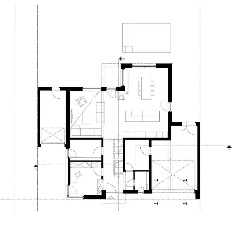
Ein Ort, der sich den wechselnden Bedürfnissen seiner Bewohner:innen anpasst, zugleich aber auch klar strukturiert ist, Geborgenheit ausstrahlt und Wohlfühl-Atmosphäre atmet: All dieses stand auf der langen Wunschliste von Sillmanns Architekten aus Mönchengladbach, die einmal nicht für andere, sondern für sich selbst und ihre Familie ein Haus entwerfen wollten. Das eingeschossige Satteldachhaus mit erhöhtem Kniestock und großem Dachstuhl wirkt nach außen klassisch, aber auch reduziert und modern. Von innen öffnet es sich fließend in den Außenraum und bietet viele sinnliche Licht- und Materialerfahrungen.
Das Wohnviertel im ländlich geprägten Ortsteil Rheindahlen ist durch eine dichte Bebauung geprägt. Entsprechend vorgezeichnet waren das Baufenster und die baurechtlichen Vorgaben nach BGB §34. Um in der relativ kleinteiligen Bebauung dennoch genügend Privatsphäre zu erhalten, trennt das Haus mit einer integrierten Doppelgarage den Garten vom Erschließungsbereich zur Straße klar. Dabei hat der Neubau eine robuste, hochwertige Fassade erhalten: Der verwendete Klinker von Gillrath zeichnet sich durch eine lebendige Wirkung aus, die durch den individuellen Brennvorgang eines jeden einzelnen Steins erzeugt wird. Mit dieser haptischen Fassade erscheint das Gebäude selbstbewusst neben den Nachbarhäusern mit vergleichbarer Kubatur.
Im Inneren beeindruckt die durchgängige Sichtbetondecke im Erdgeschoss durch ihre Helligkeit und Einheitlichkeit. Die Ortbetondecke, frei von Weißpigmenten oder anderen Zusatzstoffen, war eine anspruchsvolle baulogistische Herausforderung: Um Farbunterschiede durch unterschiedliche Mischungen zu vermeiden, mussten alle Betonlieferungen exakt aufeinander abgestimmt werden. Außerdem kamen dabei großformatige Schaltafeln zum Einsatz, mit der eine fugenreduzierte Betonästhetik aus einem Guss entstehen konnte – mit klaren Linien und ruhiger Oberfläche. Zusätzlich erforderte das Lichtkonzept eine millimetergenaue Planung der Elektroauslässe beim Betonieren, sollten alle Leitungen und Einbauorte doch unsichtbar in die Sichtbetondecke integriert werden. Die großzügigen Innenräume des Hauses sind flexibel organisiert, um sowohl offene als auch zonierte Nutzungen zu ermöglichen – mit fließenden Übergängen zwischen Innen und Außen, kommuniativen etagenübergreifenden Bereichen, aber auch Rückzugsorten. Die Materialwahl ist bewusst reduziert und geprägt von natürlichen, rohen Materialien, die in ihrer rohen Sichtigkeit eine ehrliche Ästhetik vermitteln: Sichtbeton für die Decke, Rohstahl für die freistehende Treppe sowie viel Holz prägen das Raumgefühl. Sämtliche Einbauten, vom Waschtischunterschrank bis hin zur minimalistischen Kücheninsel, wurden in enger Zusammenarbeit mit der Schreinerei Zimmermanns geplant und ausgeführt. Die Innenausbauten sind so nicht nur funktional durchdacht, sondern auch wesentlicher Bestandteil des architektonischen Gesamtkonzepts, das den Charakter des Hauses prägt.
Fotos:
Giulio Coscia
www.fotografie-coscia.de
Carlos Albuquerque
www.pixelundkorn.de
(Erschienen in CUBE Düsseldorf 03|25)
