Weniger ist mehr

Reduzierung auf das Wesentliche: Vier Wände und ein Dach

jw1837-0004_700pixel

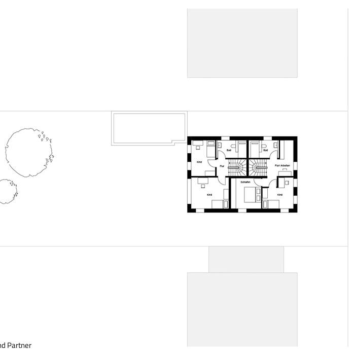
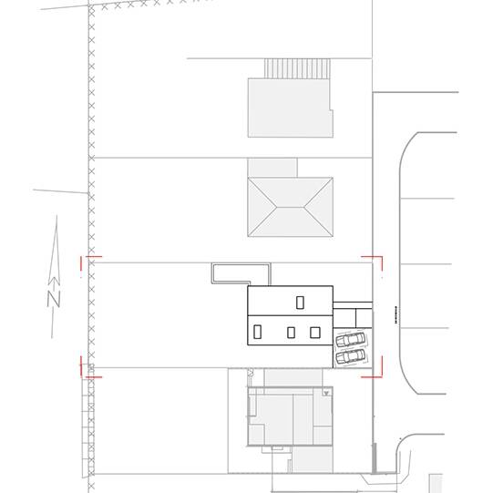
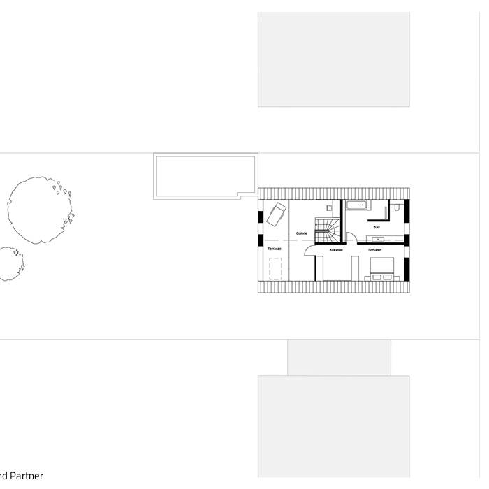
Refrath ist ein Stadtteil von Bergisch Gladbach, der im Westen direkt an Köln grenzt. Das hier gezeigte Haus Sechzehn liegt inmitten eines neu erschlossenen Baugebiets des Stadtteils. Einerseits ein idealer Ort, um sich den Traum vom Einfamilienhaus mit Einliegerwohnung zu erfüllen. Andererseits aber auch ein Ort baulicher Vielfalt, so entstand schnell der Wunsch nach etwas anderem, eindeutigem.

Um der Heterogenität der umgebenden Bebauung etwas entgegen zu setzen, besannen sich Römer Kögeler und Partner Architekten der Ursprungsidee eines Hauses: Vier Wände und ein Dach. Der Verzicht auf jegliche Vor- und Rücksprünge, Erker und Dachgauben, eine zurückhaltende, ruhige Fassadengestaltung bei passgenauer Einfügung in die städtebauliche Maßstäblichkeit der Umgebung waren das Leitbild des Entwurfs.

Die archaisch anmutende Außenhaut des Hauses wird durch den gewählten Backstein erzielt. Der Terca Wasserstrichziegel  Niara von Wienerberger zeigt sich in modernen Hellgrau-Nuancen mit partiellen Dunkelbraun-Schattierungen. Das Dünnformat ist als sogenannte Fußvermauerung ausgeführt, dabei wird die Fußseite, also die Rückseite der Klinker, als Sichtseite vermauert. Reliefartige Faltungen geben jedem Stein seine individuelle, kräftige Oberflächenstruktur. Diese Rauheit verleiht der homogenen Fassade eine geradezu haptische Optik. Ihr spezieller Charakter steht im Kontrast zur modernen Schlichtheit der Gebäudekubatur. Alle Fensteröffnungen des Hauses folgen einem durchgängigen Verhältnis von Länge zu Breite und sind (fast) alle bodentief. Ganzglasbrüstungen dienen dabei als nahezu unsichtbare Absturzsicherungen. Im Dachgeschoss zeichnet eine eingeschnittene Loggia die Gebäudeform nach. Nichts stört die Klarheit der Grundidee des „einfachen Hauses“.

Beide Wohnungen haben eigene Gartenbereiche. Die Reduzierung auf das Wesentliche wird ebenso konsequent in der Außenraumgestaltung fortgesetzt. Boden-Backsteine in Kombination mit Basaltstreifen sowie großformatigen Basaltplatten kennzeichnen den Übergang vom Haus zum Außenraum und Garten mit seinen fein abgestimmten Gräsern und Bodendeckern. Spalierbäume bilden die Abgrenzung zu den Nachbargrundstücken.

www.roemerpartner.com
www.wienerberger.de

(Erschienen in CUBE Köln Bonn 02|20)

Architekten:

Römer Kögeler und Partner
www.roemerpartner.com

Bauunternehmen:

Pack Weisswange Bauunternehmung
www.pack-weisswange.de

Tragwerksplanung:

Tragwerk Bauingenieure
www.tragwerk-bauing.de

Klinkerfassade:

Wasserstrichziegel Terca
www.wienerberger.de
Backstein-Kontor
www.backstein-kontor.de

Metallbau:

fabianundschröder metallbau
www.fabianundschröder.de

Fenster, Türen:

Hera Fenster & Türen aus Holz
www.hera-fenster.de

Leuchten:

ADO Lights by TTC Timmler Technology
www.ado-lights.de

Haustechnik:

Boss Haustechnik
www.boss-haustechnik.de

Garten- und Landschaftsbau:

Kappe Gärtner von Eden
www.kappe-gaerten.de

Fotos:

Jens Willebrand
www.willebrand.com
Meike Menrath

Nothing found.

Neugestaltung eines Neubaus

Nach Umbau entsteht ein maßgeschneidertertes Zuhause in Düsseltal

Farbspektrum

Ein Business Club in Citylage setzt farbenreich auf Exzellenz und Vielfalt

Ein Teil des Waldes

Umbau einer Scheune zu einem modernen Rückzugsort

Passgenau am Bach

Eine geförderte Wohnanlage in Bergisch Gladbach ordnet sich kleinteilig in ihren Kontext ein

Nothing found.

Aussen1_15_700pixeln3mgPFYVSVv5j

Ergänzter Industriebau

In der Neuen Bahnstadt wurde ein Stück Bahngeschichte in ein Bürogebäude transformiert

Offen und doch geschützt

Ein Mehrfamilienhaus in Sülz bietet viel Tageslicht und attraktive Außenbereiche

Diskret erweitert

Ein moderner Anbau bewahrt die Integrität eines sanierten Bungalows und seines Gartens

AntoniterQuartier_trint-kreuder_-C-Christian-Richters_4449-48_30x20cm_15_700pixel

Oase der Platzvielfalt

Das Antoniterquartier besticht durch die subtile Stadtreparatur inmitten zweier Einkaufsstraßen

Stanke-Interiordesign_06_19_700pixel

Spannungsvolle Wandlung

Eine Zahnarztpraxis wurde in eine offene Gartenwohnung umgebaut

Ein Gefühl von Freiheit

Großzügige Villa mit hohem Nachhaltigkeitsanspruch

_0008607-OKE-gras-x_46_700pixel

Im Flow mit der Landschaft

Eine Villa im Bergischen Land überzeugt durch ihre Raumkomposition und die Details

Modular und nachhaltig

Modular und nachhaltig

Zwei Grundschulen in Flittard und Eil sind schnell und ansprechend erweitert worden