Vernetzte Lernlandschaft

Der neue Campus der TH Köln eröffnet mit einem nachhaltigen Lehr- und Laborgebäude

DDC_9715_19_700pixel

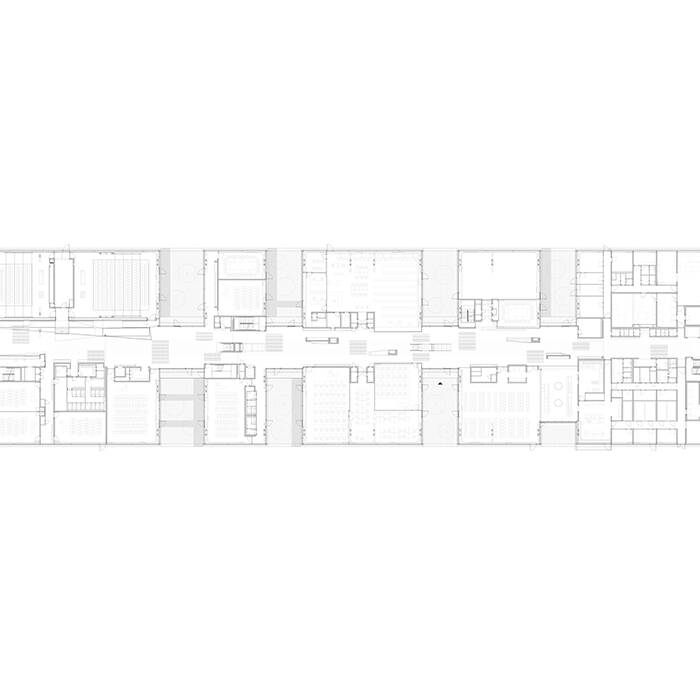
Der Neubau für die Technische Hochschule Köln ist ein erster Baustein einer neuen Zeitschicht auf dem geschichtsträchtigen Campusgelände der „neuen bahnstadt opladen“, dem ehemaligen Bahnausbesserungswerk in Leverkusen. Das Berliner Planungsbüro augustinundfrank/ winkler architekten hat mit dem Lehrraum- und Laborgebäude der Fakultät für Angewandte Naturwissenschaften eine Lernlandschaft geschaffen, die besonders nachhaltig in Energieverbrauch und Nutzung ist.  

Mit einer Hauptnutzfläche von 7.300 Quadratmetern vereint der Neubau unterschiedliche Nutzungen und Räume unter einem Dach: Labore, Hörsäle, Seminarräume und Lernlandschaften, aber auch Büros für die Lehrenden und die Verwaltung sowie Bibliothek, Werkstätten, Mensa und Küche. Mit dem Gebäude werden die Außenräume zwischen der Hochschule und weitere Gebäude, die in den kommenden Jahren noch entstehen, bereits im ersten Bauabschnitt vollständig gefasst und gestalterisch definiert. Der überwiegend zweigeschossige Bau ist durch eine klare Zonierung in eine Lern- und eine Laborwelt aufgeteilt. Seine Grundstruktur ist einfach und nutzungsneutral. Atrien teilen beide Geschosse in tiefe und schmale Grundrisszonen und gliedern sie in funktionale Einheiten. Zugleich ermöglichen sie aus allen Räume im Erdgeschoss einen direkten Ausgang ins Freie. Zusätzliche Rettungswege können damit entfallen. Typologisch beruht der Neubau auf der bewährten Kammstruktur, die zeitgenössisch interpretiert wird: So kann insbesondere an den Fassaden, die zu den begrünten Atrien weisen, der sommerliche Wärmeeintrag erheblich reduziert werden. Für die Nachtauskühlung der Büro- und Erschließungsräume wurde ein Fassadensystem entwickelt. Hinzu kommen eine Betonkernaktivierung und eine hohe Speicherkapazität, die aus den offen in den Räumen geführten Installationen resultiert. Diese Parameter tragen heutigen anspruchsvollen Anforderungen und Standards an Energieeffizienz, Nachhaltigkeit und umweltfreundlichem Bauen Rechnung. Entfluchtung und Erschließung wurden getrennt. Dies lässt im Erdgeschoss eine innere Raumlandschaft mit einer Abfolge von durchlässigen, transparenten Räumen entstehen: Erschließungs-, Aufenthalts- und Lernzonen können sich überlagern und ineinander übergehen. Der dichte Wechsel und die netzartige Struktur von Innen- und Außenräumen führt zu einem komplexen Raumgefüge – im Sinne einer vernetzten Lernwelt. Die Labor- und Arbeitsräume im Obergeschoss liegen innerhalb der industriell anmutenden, transluzenten Hülle aus Polycarbonatplatten introvertiert an kleineren Atrien, die nach außen eine bewegte Dachlandschaft erzeugen. Alle technischen Infrastrukturen sind den unterschiedlichen Raumgruppen auf kurzen Wegen zugeordnet, was für eine hohe Wirtschaftlichkeit sorgt. Ideen einer nachhaltigen Raumorganisation prägen das Gebäude: Auch zukünftige, heute noch nicht bekannte Nutzungsszenarien lassen sich in der Struktur flexibel umsetzen.

www.aufw.net

Fotos:

Andrew Alberts
www.andrewalberts.de

(Erschienen in CUBE Köln Bonn 01|23)

 

 

Nothing found.

Ort der Begegnung

Das neue Pfarrheim Mariä Himmelfahrt in Miesbach prägt ein Kontrast aus Modernität und Tradition

Preziose unterm Dach

Ein Spitzboden in einem Mehrfamilienhaus in Essen-Rüttenscheid wird zum Vorzeigeprojekt

Vergangenheit & Zukunft

Modellprojekt zeigt, wie sakrale Bestandsarchitektur transformiert werden kann

Nothing found.

3_Villa-G-Salon_15_700pixel

Farbklänge für die Kunst

In einer Kunstsammlervilla treten die Räume mit den Werken in einen Dialog

_MGM3527_19_700pixel

Offen und integrierend

Die Generalsanierung einer Sporthalle löst mehr als nur die funktionalen Anforderungen

063_jk010922_19_700pixel

Grossform und Cluster

Der Neubau des Gymnasiums in Lövenich schafft klare Orientierung und Identifikation im Kleinen

Koncept-Hotel-International-Aussenansicht-01_15_700pixel

Außen streng, innen farbenrfroh

Ehemaliges Verwaltungsgebäude verwandelt sich in einen bunten Auszeitort für Reisende

Filigran und behaglich

Eine Augenpraxis in Deutz setzt auf entspannende Raumgestaltung