Minimalistisch vereint

Ein Einfamilienhaus verbindet Tradition und Moderne

Ein moderner Wohnstyle mit großzügigen, fließend ineinander übergehenden Räumen rangiert oft ganz oben auf der Wunschliste von Bauherren. Gerade in gewachsenen Bestandssiedlungen stehen dem oft allerdings baurechtliche Einschränkungen entgegen – sei es durch enge Vorgaben zum Baufenster oder aber auch durch strenge Gestaltungssatzungen. Besonders Letzteres wurde zur Herausforderung bei einem Einfamilienhaus, das Klaus Mäs Architekten aus Bornheim in einer historischen Wohnsiedlung in Leverkusen geplant haben.

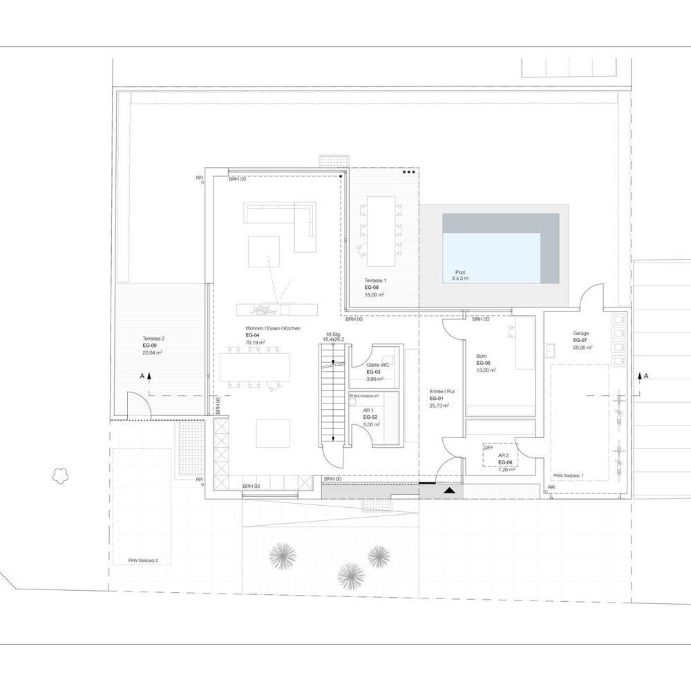
Aus den intensiven Gesprächen mit den Bauherren und der Auseinandersetzung mit den baurechtlichen Rahmenbedingungen entstand ein klares gestalterisches Konzept, das zwei Baukörper miteinander kombiniert: An ein giebelseitig zur Straße platziertes, klar strukturiertes Wohnhaus mit klassischem Satteldachabschluss schließt sich zur Straße ein funktionaler, eingeschossiger Riegel an, der den dahinterliegenden Garten mit Außenpool vor äußeren Einblicken abschirmt. Der leichte Rücksprung des Riegels lässt eine prägnante Eingangssituation entstehen, die einen halbprivaten Übergangsbereich schafft. Optisch akzentuiert wird dieser dabei durch eine filigrane Holzlattung, die sich als wiederkehrendes Gestaltungselement im gesamten Haus wiederfindet, um die gestalterische Einheit des Entwurfes zu betonen. Der Eingangsbereich nimmt das langgestreckte Entrée mit Garderobe auf. Bereits beim Eintreten eröffnet sich eine Durchsicht auf den überdachten Terrassenbereich und den kleinen Garten. Dabei wird einerseits das ebenfalls zum Garten hin geöffnete Büro erschlossen sowie die Garage, die durch einen zwischengeschalteten Abstellraum erreicht wird. Auf der gegenüberliegenden Seite des Entrées schließt sich ein zentral platzierter Kubus an. Dieser nimmt sowohl ein Gäste-WC als auch zusätzlichen Stauraum auf und stellt die vertikale Treppenverbindung im Haus her – in den Keller wie auch auf die beiden oberen Geschosse. Mit der Treppe öffnet sich der Kubus in den langgestreckten Wohnbereich, in dem Kochen, Essen und Wohnen fließend ineinander übergehen. Der eigentliche Wohnbereich ist dabei über eine großzügige, raumhohe Schiebetürfront zum Garten hin orientiert und wird durch einen raumgliedernden Kamin subtil vom Ess- und Kochbereich separiert. Die Küche selbst, die in eine massive Wand eingelassen ist, orientiert sich zur Straße. Im Obergeschoss teilen sich zwei Kinderzimmer ein gemeinsames Bad. Während diese zur Straße orientiert sind, öffnet sich der Masterbereich der Eltern mit Schlafzimmer, separater Ankleide und eigenem Badezimmer hin zu Garten und Pool.

www.klausmaes.de

Fotos:
Philip Kistner
www.philipkistner.com

(Erschienen in CUBE Köln 02|25)

Nothing found.

Lichtdurchflutete Arbeitswelt

Hocheffizientes Bürogebäude in der Maxvorstadt

Gelungene Überführung

Der Umbau eines ehemaligen Wochenendhauses begeistert die Bauherrin

Individualität im System

Grundschule verbindet Planungs- und Fertigungseffizienz mit zeitgemäßer Gestaltung

Harmonie mit Liebe zum Detail

Farbkonzepte und Kunstobjekte für ansprechende Praxisräume in Moabit

Nothing found.

Koncept_Hotel_Josefine-7-_15_700pixel

Kontrastreich und nachhaltig

Ein Hotel im Clouth-Quartier setzt auf starke Farben und „Fairesponsibility“

Aussen-2_19_700pixel

In Clustern lernen

Die neue Willy-Brandt-Gesamtschule in Köln-Höhenhaus ist lang und doch kleinteilig strukturiert

Clara-Rllinghoff_DSC0098_15_700pixel

Herausforderung Hanggarten meistern

Hanggrundstücke sind beliebt zum Bauen. Gärtnerisch brauchen sie eine Meisterhand

Koncept-Hotel-International-Aussenansicht-01_15_700pixel

Außen streng, innen farbenrfroh

Ehemaliges Verwaltungsgebäude verwandelt sich in einen bunten Auszeitort für Reisende

02_Foto_BA-rogebN-ude-Triotop_15_700pixel

Aufstrebend gerastert

Geradlinig liegt ein Bürogebäude zwischen Natur und markanter Brücke

DSC_8944-Grad-_15_700pixel

Erneuertes Himmelshaus

Das Gemeindezentrum der Christengemeinschaft in Lindenthal wurde modernisiert und umgebaut

1411-p-190512_knauf-aussen-9965_19_700pixel

Kommunikativer Ring

Die neue Deutschlandzentrale eines Chemiekonzerns besticht durch kurze Wege und flache Hierarchien

Pickartz-Architektur-Marmagen035_700pixel

Respektvoller Dialog

Eine modernisierte Denkmal-Villa in der Eifel verbindet Alt und Neu harmonisch