Raum für die Kunst
Endlich erhält die HFBK die dringend benötigten Atelierräume für Masterstudierende
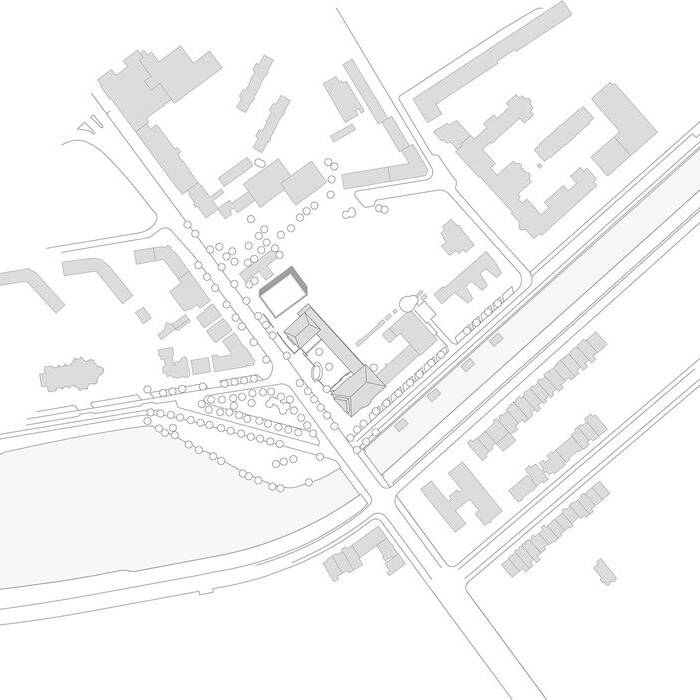
Den Erweiterungsbau der Hochschule für bildende Künste Hamburg HFBK haben Winking Froh Architekten nach gewonnenem Wettbewerb fertiggestellt und am 11. Februar an die Nutzer übergeben. Das Atelierhaus entstand als freistehender Kubus neben dem Hauptgebäude von Fritz Schumacher von 1913 und erfährt durch seine Ausrichtung zum Lerchenfeld eine baukörperliche Eigenständigkeit. Die Klinkerfassade überzieht das Haus wie ein beschwingtes Gewebe. In ihrer Schichtung erzeugen die gegenläufig angeordneten, schräg eingeschnittenen Fensterlaibungen ein spannungsreiches Bild. In Körnung und Materialität bezieht sich der Neubau auf den denkmalgeschützten Nachbarn. Haupteingang und Haupttreppenhaus sind seitlich zum Hauptgebäude angeordnet. Das Erdgeschoss dient als Galerie für Ausstellungen und stellt mit einem großen „Schaufenster“ die Verbindung zur urbanen Öffentlichkeit an der belebten Straße Lerchenfeld her.
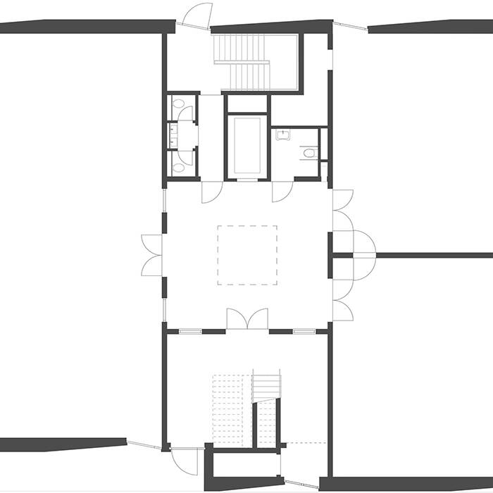
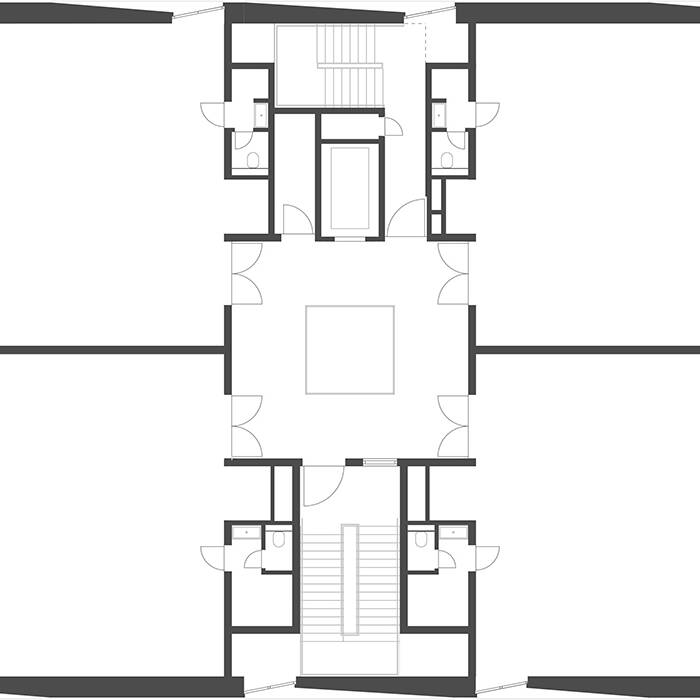
Die wesentlichen Materialien des Bestandsbaus sind Ziegel sowie glasierte Fassaden-Terrakotten. Die Fassaden des Neubaus nehmen die Materialien auf, es wurde jedoch ein hartgebrannter Wittmunder Klinker mit leichten Sinterungen gewählt, welcher gegenüber dem leicht matten Ziegel des Bestandes eine Nuance bläulicher und metallischer erscheint. Die Innenräume sind als robust veredelter Rohbau gestaltet. Der statisch aussteifende Kern mit den Treppenhäusern ist aus Stahlbeton in Sichtbetonqualität ausgeführt. Dieser stellt in seiner Offenheit und Materialität eine Analogie zu der offenen, in scharriertem Beton errichteten Haupttreppe des Bestandsgebäudes dar.
Das Erdgeschoss teilt sich in drei Galerieräume, die über das Foyer großzügig miteinander verbunden und als Gesamtheit zu nutzen sind. Die offene Haupttreppe mit Luftraum im Bereich der Zwischenpodeste führt in die Ateliergeschosse. Ein rechteckiges, über alle Geschosse führendes Luftauge mit Oberlicht lässt Tageslicht in das Gebäudeinnere. Geschossübergreifende Kunstobjekte und Installationen können hier aufgestellt werden. Die drei Obergeschosse beherbergen jeweils vier gleichwertige Ateliers, die so konzipiert sind, dass große zusammenhängende Wandflächen für die Kunst entstehen, die durch die Anordnung der Fenster nicht zerschnitten werden.
Fotos:
Stefan Josef Müller
www.stefanjosefmueller.de
(Erschienen in CUBE Hamburg 01|22)
